Upplýsingar
Verðsaga
Byggt 2022
165,6 m²
4 herb.
1 baðherb.
3 svefnh.
Þvottahús
Bílskúr
Sérinngangur
Lýsing
Árborgir fasteignasala kynnir
Snyrtileg og vel staðsett raðhús í byggingu rétt við Stekkjarskóla áSelfossi.
Húsið er byggt úr timri, klætt að utan með plexipoly járni, litað járn er á þaki.
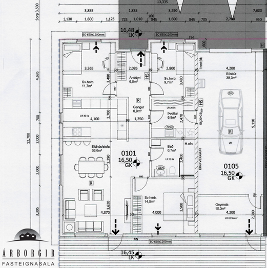
Eignin er 165,5m2 að stærð og er sambyggður bílskúr 38,3m2 þar af.
Að innan skiptist eignin í forstofu, baðherbergi, þvottahús, 3 svefnherbergi, stofu og eldhús auk geymslu í enda bílskúrs. (getur verið fjórða herbergið)
Flísar eru á gófli í forstofu og á þvottahúsi, í þvottahúsi er vaskskápur og lúga uppá geymsluloft.
Parket er á gólfi í herbergjunum.
Baðherbergi er flísalagt bæði gólf og veggir, þar er gólfsturta og innrétting.
Stór innrétting er í eldhúsi, parket er á gólfi.
Stofan er parketlögð og þar er hurð út á baklóð.
Bílskúr er klæddur og málaður geymsla með góðum glugga er í enda hans og er mögulegt að nota það sem auka herbergi.
Nánari upplýsingar og bókið skoðun á skrifstofu Árborga
Snyrtileg og vel staðsett raðhús í byggingu rétt við Stekkjarskóla áSelfossi.
Húsið er byggt úr timri, klætt að utan með plexipoly járni, litað járn er á þaki.
Eignin er 165,5m2 að stærð og er sambyggður bílskúr 38,3m2 þar af.
Að innan skiptist eignin í forstofu, baðherbergi, þvottahús, 3 svefnherbergi, stofu og eldhús auk geymslu í enda bílskúrs. (getur verið fjórða herbergið)
Flísar eru á gófli í forstofu og á þvottahúsi, í þvottahúsi er vaskskápur og lúga uppá geymsluloft.
Parket er á gólfi í herbergjunum.
Baðherbergi er flísalagt bæði gólf og veggir, þar er gólfsturta og innrétting.
Stór innrétting er í eldhúsi, parket er á gólfi.
Stofan er parketlögð og þar er hurð út á baklóð.
Bílskúr er klæddur og málaður geymsla með góðum glugga er í enda hans og er mögulegt að nota það sem auka herbergi.
Nánari upplýsingar og bókið skoðun á skrifstofu Árborga
Ár
Fasteignamat
Kaupverð
Stærð
Fermetraverð
21. okt. 2021
6.710.000 kr.
48.800.000 kr.
165.6 m²
294.686 kr.
Byggt á upplýsingum úr Þjóðskrá Íslands frá 2006-2026