Upplýsingar
Verðsaga
Byggt 2007
113,5 m²
3 herb.
1 baðherb.
2 svefnh.
Þvottahús
Sameiginl. inngangur
Bílastæði
Lyfta
Lýsing
Hraunhamar kynnir sérlega fallega íbúð fjórðu hæð í eftirsóttu húsi við Reykjavíkurveg 52B í Hafnarfirði fyrir 50 ára og eldri, Íbúðin er 113,5 fermetrar með geymslu auk þess er bílastæði í lokaðri bílageymslu. Yfirbyggðar svalir.
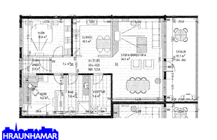
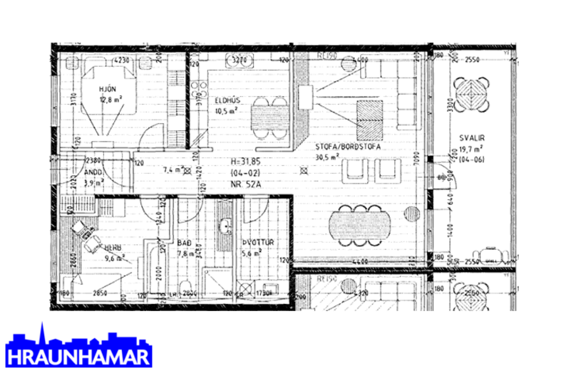
Skipting eignarinnar: Forstofa, hol, tvö svefnherbergi, stofa, borðstofa, eldhús, baðherbergi, þvottahús, geymsla og bílastæði í lokaðri bílageymslu. Auk reglubundinnar sameignar.
Nánari lýsing:
Forstofa með fataskápum.
Gott hol.
Hjónaherbergi með rúmgóðum fataskápum.
Svefnherbergi með fataskáp.
Eldhús með sérlega smekklegri innréttingu, granít á borðum.
Rúmgóð stofa og borðstofa, þaðan er utangengt út á rúmgóðar yfirbyggðar svalir.
Rúmgott flísalagt baðherbergi með sturtuklefa og innréttingu. Þvottahús með innréttingu.
Í kjallara er geymsla og sérstæði í bílageymslu, þvottaaðstaða fyrir bíla þar.
Gólfefni er parket og flísar. Allar innréttingar eru frá Fagus, tæki frá AEG.
Stutt í alla þjónustu.
Nánari upplýsingar veita :
Valgerður Ása Gissurardóttir löggiltur fasteignasali s. 791-7500, vala@hraunhamar.is
Hlynur Halldórsson löggilur fasteignasali s. 698-2603, hlynur@hraunhamar.is
Gjöld sem kaupandi þarf að standa straum af vegna kaupanna:
1. Stimpilgjald af kaupsamningi, fyrstu kaup (0,4%), almenn kaup (0,8%), lögaðilar (1,6%) af heildarfasteignamati.
2. Þinglýsingargjald af kaupsamningi, veðskuldabréfi, mögulegu veðleyfi o.fl. – 2.700 kr. af hverju skjali.
3. Lántökugjald lánastofnunar er skv. verðskrá viðkomandi lánastofnunar.
4. Umsýslugjald til fasteignasölu skv. þjónustusamningi
Hraunhamar er elsta fasteignasala Hafnarfjarðar, stofnuð 1983.
Hraunhamar, í fararbroddi í rúm 40 ár – Hraunhamar.is
Smelltu hér til að fá frítt söluverðmat.
Skipting eignarinnar: Forstofa, hol, tvö svefnherbergi, stofa, borðstofa, eldhús, baðherbergi, þvottahús, geymsla og bílastæði í lokaðri bílageymslu. Auk reglubundinnar sameignar.
Nánari lýsing:
Forstofa með fataskápum.
Gott hol.
Hjónaherbergi með rúmgóðum fataskápum.
Svefnherbergi með fataskáp.
Eldhús með sérlega smekklegri innréttingu, granít á borðum.
Rúmgóð stofa og borðstofa, þaðan er utangengt út á rúmgóðar yfirbyggðar svalir.
Rúmgott flísalagt baðherbergi með sturtuklefa og innréttingu. Þvottahús með innréttingu.
Í kjallara er geymsla og sérstæði í bílageymslu, þvottaaðstaða fyrir bíla þar.
Gólfefni er parket og flísar. Allar innréttingar eru frá Fagus, tæki frá AEG.
Stutt í alla þjónustu.
Nánari upplýsingar veita :
Valgerður Ása Gissurardóttir löggiltur fasteignasali s. 791-7500, vala@hraunhamar.is
Hlynur Halldórsson löggilur fasteignasali s. 698-2603, hlynur@hraunhamar.is
Gjöld sem kaupandi þarf að standa straum af vegna kaupanna:
1. Stimpilgjald af kaupsamningi, fyrstu kaup (0,4%), almenn kaup (0,8%), lögaðilar (1,6%) af heildarfasteignamati.
2. Þinglýsingargjald af kaupsamningi, veðskuldabréfi, mögulegu veðleyfi o.fl. – 2.700 kr. af hverju skjali.
3. Lántökugjald lánastofnunar er skv. verðskrá viðkomandi lánastofnunar.
4. Umsýslugjald til fasteignasölu skv. þjónustusamningi
Hraunhamar er elsta fasteignasala Hafnarfjarðar, stofnuð 1983.
Hraunhamar, í fararbroddi í rúm 40 ár – Hraunhamar.is
Smelltu hér til að fá frítt söluverðmat.
Ár
Fasteignamat
Kaupverð
Stærð
Fermetraverð
2. des. 2021
50.950.000 kr.
71.900.000 kr.
113.5 m²
633.480 kr.
4. okt. 2007
12.520.000 kr.
33.500.000 kr.
113.5 m²
295.154 kr.
Byggt á upplýsingum úr Þjóðskrá Íslands frá 2006-2025