Upplýsingar
132,8 m²
1 herb.
Lýsing
Nýtt og glæsilegt geymslu- og atvinnuhúsnæði við Dveghellu 3 í Hafnarfirði.
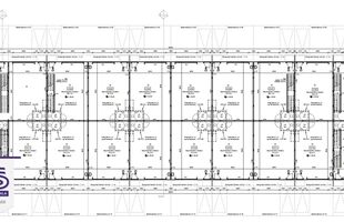
Húsnæðið skilast fullfrágengið með lokaúttekt (B.stig 7/ Matstig 4) og skiptist í 19 einingar í mismunandi stærðum, bæði einni og tveimur hæðum.
Stærð: 65 - 194,4 fm.
Verð: 34,5 - 84,5 mkr.
Lofthæð: ca. 6,5m við útvegg og ca. 7,5m við mæni.
Innkeyrsluhurð: 3,25m x 3,60m (HxB) frá Hörmann.
Áætluð afhending: Júní 2026
Smelltu hér til að skoða laus bil í húsinu.
Nánari lýsing:
- Burðargrind úr límtré, klædd með PIR Quad Core samlokueiningum frá Kingspan.
- Gólf járnbent, staðsteypt og vélslípuð.
- 2. hæð byggð upp úr berandi stálbitum og klædd með 12cm þykkum límtrés einingum.
- Stigi á milli hæða þar sem við á úr límtrés þrepum.
- Húsnæðið hitað upp með gólfhita.
- Sérrafmangstafla og 3ja fasa tengill í öllum bilum.
- Frárennslislagnir til staðar fyrir möguleika á salerni í öllum bilum.
- Ræstivaskur í öllum bilum.
- Lóð skilast fullfrágengin skv. afstöðumynd með malbikuðu bílaplani.
Verktaki verkefnisins er traustur verktaki til margra ára, KB verk.
Allar nánari upplýsingar veita sölumenn Ás s. 520-2600 / as@as.is eða:
Arnór Daði Eiríksson, löggiltur fasteignasali s. 777-0939 / arnor@as.is
Aron Freyr Eiríksson, löggiltur fasteignasali s. 772-7376 / aron@as.is
Stefán Rafn Sigurmannsson, löggiltur fasteignasali s. 655-7000 / stefan@as.is
Ás fasteignasala er rótgróið fyrirtæki sem hefur veitt alla almenna þjónustu í fasteignaviðskiptum frá árinu 1988.
www.facebook.com/asfasteignasala
www.instagram.com/as_fasteignasala
www.as.is
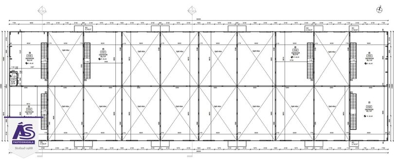
Húsnæðið skilast fullfrágengið með lokaúttekt (B.stig 7/ Matstig 4) og skiptist í 19 einingar í mismunandi stærðum, bæði einni og tveimur hæðum.
Stærð: 65 - 194,4 fm.
Verð: 34,5 - 84,5 mkr.
Lofthæð: ca. 6,5m við útvegg og ca. 7,5m við mæni.
Innkeyrsluhurð: 3,25m x 3,60m (HxB) frá Hörmann.
Áætluð afhending: Júní 2026
Smelltu hér til að skoða laus bil í húsinu.
Nánari lýsing:
- Burðargrind úr límtré, klædd með PIR Quad Core samlokueiningum frá Kingspan.
- Gólf járnbent, staðsteypt og vélslípuð.
- 2. hæð byggð upp úr berandi stálbitum og klædd með 12cm þykkum límtrés einingum.
- Stigi á milli hæða þar sem við á úr límtrés þrepum.
- Húsnæðið hitað upp með gólfhita.
- Sérrafmangstafla og 3ja fasa tengill í öllum bilum.
- Frárennslislagnir til staðar fyrir möguleika á salerni í öllum bilum.
- Ræstivaskur í öllum bilum.
- Lóð skilast fullfrágengin skv. afstöðumynd með malbikuðu bílaplani.
Verktaki verkefnisins er traustur verktaki til margra ára, KB verk.
Allar nánari upplýsingar veita sölumenn Ás s. 520-2600 / as@as.is eða:
Arnór Daði Eiríksson, löggiltur fasteignasali s. 777-0939 / arnor@as.is
Aron Freyr Eiríksson, löggiltur fasteignasali s. 772-7376 / aron@as.is
Stefán Rafn Sigurmannsson, löggiltur fasteignasali s. 655-7000 / stefan@as.is
Ás fasteignasala er rótgróið fyrirtæki sem hefur veitt alla almenna þjónustu í fasteignaviðskiptum frá árinu 1988.
www.facebook.com/asfasteignasala
www.instagram.com/as_fasteignasala
www.as.is