Upplýsingar
Verðsaga
Byggt 2022
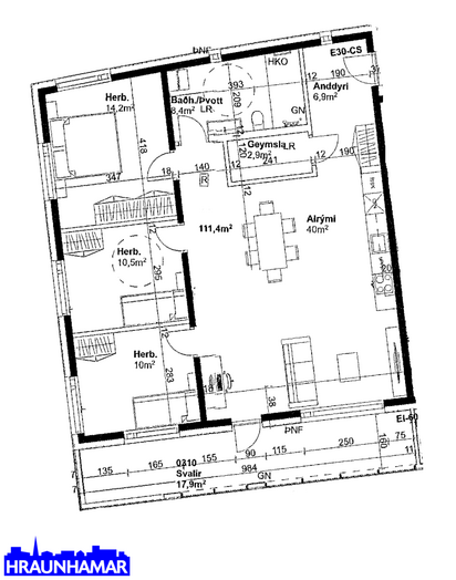
111,4 m²
4 herb.
3 svefnh.
Sameiginl. inngangur
Lyfta
Lýsing
Hraunhamar fasteignasala kynnir: Bjarta og vel skipulagða fjögurra herbergja endaíbúð á efstu hæð í nýlegu lyftufjölbýli vel staðsett í Hamranesinu í Hafnarfirði.
Íbúðin er skráð 111,4 fm skv. FMR
Nánari lýsing:
Rúmgóð flísalögð forstofa með fataskáp.
Geymsla inn af forstofu.
Opið alrými sem samanstendur af eldhúsi, stofu og borðstofu.
Góð innrétting í eldhúsi með innbyggðum ísskáp og uppþvottavél. Bakaraofn í vinnuhæð.
Frá stofu er útgengt á rúmgóðar 17,9 fm svalir.
Rúmgott hjónaherbergi með fataskáp.
Tvö barnaherbergi með fataskápum.
Flísalagt baðherbergi, innrétting, walk in sturta og upphengt salerni. Handklæða ofn. Tengi fyrir þvottavél og þurrkara á baðherbergi. Gluggi.
Harðparket og flísar á gólfum.
Sameiginleg hjóla og vagnageymsla.
Húsið er klætt að utan með álklæðningu og ál/tré gluggar.
Frágengin sameiginleg lóð með leiktækjum.
Frábær staðsetning í Hamraneshverfinu í nálægð við skóla, leikskóla, matvörubúðir og náttúruna.
Allar nánari upplýsingar veitir:
Glódís Helgadóttir, löggiltur fasteignasali í s. 659-0510 glodis@hraunhamar.is
Skoðunarskylda:
Í lögum um fasteignakaup nr. 40/2002 er kveðið á um ríka skoðunarskyldu kaupenda á fasteignum. Hraunhamar fasteignasala vill benda væntanlegum kaupendum á að kynna sér vel ástand fasteigna fyrir kauptilboðsgerð og ef þurfa þykir að leita til sérfræðinga fyrir nánari ástandsskoðun.
Gjöld sem kaupandi þarf að standa straum af vegna kaupanna:
1. Stimpilgjald af kaupsamningi, fyrstu kaup (0,4%), almenn kaup (0,8%), lögaðilar (1,6%) af heildarfasteignamati.
2. Þinglýsingargjald af kaupsamningi, veðskuldabréfi, mögulegu veðleyfi o.fl. – 3.800 kr. af hverju skjali.
3. Lántökugjald lánastofnunar er skv. verðskrá viðkomandi lánastofnunar.
4. Umsýslugjald til fasteignasölu skv. þjónustusamningi
Hraunhamar er elsta fasteignasala Hafnarfjarðar, stofnuð 1983.
Hraunhamar, í fararbroddi í rúm 40 ár. – Hraunhamar.is
Smelltu hér til að fá frítt söluverðmat.
Smelltu hér til að fá söluyfirlit sent strax.
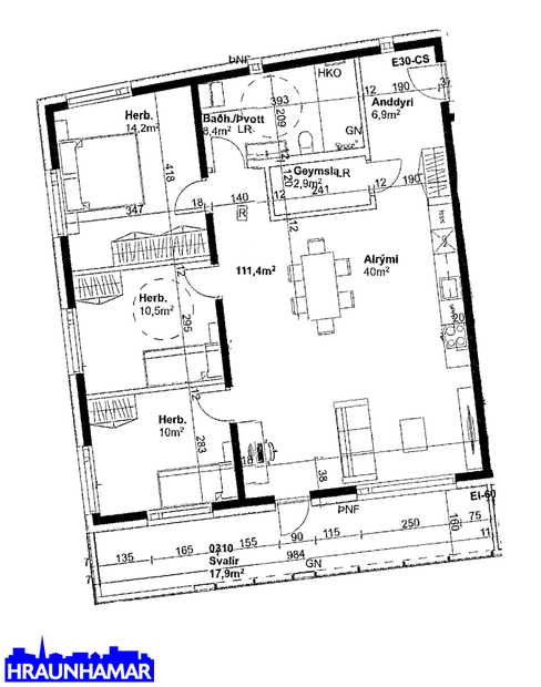
Íbúðin er skráð 111,4 fm skv. FMR
Nánari lýsing:
Rúmgóð flísalögð forstofa með fataskáp.
Geymsla inn af forstofu.
Opið alrými sem samanstendur af eldhúsi, stofu og borðstofu.
Góð innrétting í eldhúsi með innbyggðum ísskáp og uppþvottavél. Bakaraofn í vinnuhæð.
Frá stofu er útgengt á rúmgóðar 17,9 fm svalir.
Rúmgott hjónaherbergi með fataskáp.
Tvö barnaherbergi með fataskápum.
Flísalagt baðherbergi, innrétting, walk in sturta og upphengt salerni. Handklæða ofn. Tengi fyrir þvottavél og þurrkara á baðherbergi. Gluggi.
Harðparket og flísar á gólfum.
Sameiginleg hjóla og vagnageymsla.
Húsið er klætt að utan með álklæðningu og ál/tré gluggar.
Frágengin sameiginleg lóð með leiktækjum.
Frábær staðsetning í Hamraneshverfinu í nálægð við skóla, leikskóla, matvörubúðir og náttúruna.
Allar nánari upplýsingar veitir:
Glódís Helgadóttir, löggiltur fasteignasali í s. 659-0510 glodis@hraunhamar.is
Skoðunarskylda:
Í lögum um fasteignakaup nr. 40/2002 er kveðið á um ríka skoðunarskyldu kaupenda á fasteignum. Hraunhamar fasteignasala vill benda væntanlegum kaupendum á að kynna sér vel ástand fasteigna fyrir kauptilboðsgerð og ef þurfa þykir að leita til sérfræðinga fyrir nánari ástandsskoðun.
Gjöld sem kaupandi þarf að standa straum af vegna kaupanna:
1. Stimpilgjald af kaupsamningi, fyrstu kaup (0,4%), almenn kaup (0,8%), lögaðilar (1,6%) af heildarfasteignamati.
2. Þinglýsingargjald af kaupsamningi, veðskuldabréfi, mögulegu veðleyfi o.fl. – 3.800 kr. af hverju skjali.
3. Lántökugjald lánastofnunar er skv. verðskrá viðkomandi lánastofnunar.
4. Umsýslugjald til fasteignasölu skv. þjónustusamningi
Hraunhamar er elsta fasteignasala Hafnarfjarðar, stofnuð 1983.
Hraunhamar, í fararbroddi í rúm 40 ár. – Hraunhamar.is
Smelltu hér til að fá frítt söluverðmat.
Smelltu hér til að fá söluyfirlit sent strax.
Ár
Fasteignamat
Kaupverð
Stærð
Fermetraverð
9. jún. 2023
63.100.000 kr.
76.400.000 kr.
111.4 m²
685.817 kr.
Byggt á upplýsingum úr Þjóðskrá Íslands frá 2006-2026