Upplýsingar
Verðsaga
Byggt 2001
232,6 m²
5 herb.
2 baðherb.
4 svefnh.
Þvottahús
Bílskúr
Útsýni
Sérinngangur
Lýsing
Fasteignasalan TORG kynnir: Glæsilegt einbýlishús á tveimur hæðum við Ólafsgeisla 101 í Grafarholtinu. Eignin í heild er skráð 232,6 fm, þar af er bílskúrinn 49,7 fm skv. Þjóðskrá Íslands. Eignin skiptist í anddyri, hol, tvöfaldan innbyggðan bílskúr, eldhús, rúmgóða stofu, opið sjónvarpsrými, 4 svefnherbergi, 2 baðherbergi, þvottahús og geymslu. Auk þess eru 45 óskráðir fm, þar sem búið er að koma fyrir geymslu, búri, vinnuherbergi, gufu og sturtu. Möguleiki á að bæta við svefnherbergjum.
Nánari upplýsingar veitir Sigurður Gunnlaugsson, fasteignasali í GSM: 898-6106 eða sigurdur@fstorg.is
Sækja söluyfirlit HÉR
NÁNARI LÝSING:
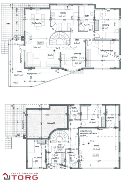
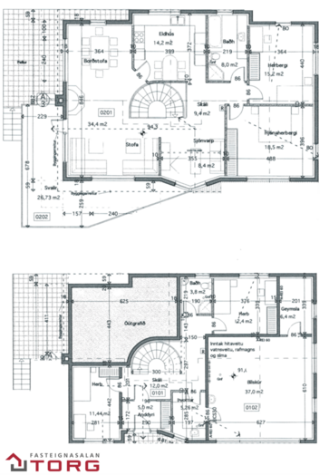
Eignin skiptist í rúmgott anddyri, hol, tvöfaldan innbyggðan bílskúr, eldhús, stofu, borðstofu, opið sjónvarpsrými, 5 svefnherbergi, tvö baðherbergi og geymslu. Auk þess eru 45 óskráðir fm, þar sem búið er að koma fyrir geymslu, búri, vinnuherbergi, gufu og sturtu. Möguleiki á að bæta við svefnherbergjum.
Neðri hæð:
Forstofa: Marmari á gólfi og góðir skápar sem ná upp í loft.
Forstofuherbergi: Rúmgott svefnherbergi með fataskáp. Parket á gólfi.
Hol: Tengir saman rými neðri hæðar og þaðan er stigi upp á efri hæð. Marmari á gólfi.
Baðherbergi: Snyrtilegt baðherbergi með handlaug, salerni og sturtuklefa. Flísar á gólfi og veggjum. Gluggi á baðherbergi.
Garður: Garðurinn er gróinn og hellulagður. Aðkoma að húsinu er glæsileg.
Bílskúr: Innangengt frá forstofu í snyrtilegan bílskúr. Fyrir framan hann og húsið er hellulagt plan með hitalögn.
Efri hæð:
Stofa: Rúmgóð og björt stofa og borðstofa. Marmari á gólfi. Útgengt úr stofu út á yfirbyggða verönd.
Eldhús: Mjög rúmgott, opið eldhús. Innrétting með góðu skápaplássi, eldhústækjum, granít á borðum. Marmari á gólfi.
Herbergi: Rúmgott með fataskápum. Parket á gólfi.
Hjónaherbergi: Rúmgott herbergi með fataskápum. Parket á gólfi.
Herbergi: Rúmgott með fataskáp. Parket á gólfi.
Sjónvarpshol: Rúmgott opið sjónvarpshol. Marmari á gólfi.
Þvottahús: Snyrtilegt með vaski og borði. Tengi fyrir þvottavél og þurrkara. Flísar á gólfi og veggjum.
Baðherbergi: Flísalagt í hólf og gólf. Falleg innrétting, sturta og baðkar. Gluggi á baðherbergi.
Glæsilegt, rúmgott fjölskylduhús einbýlishús á rólegum og góðum stað í Grafarholti, steinsnar frá golfvellinum. Húsið stendur ofan við götu og er útsýnið glæsilegt.Stutt í leiksvæði, þjónustu, verslanir, skóla og stofnbraut.
Nánari upplýsingar veitir Sigurður Gunnlaugsson, fasteignasali í GSM: 898-6106 eða sigurdur@fstorg.is
Gjöld sem kaupandi þarf að greiða vegna kaupa á fasteign:
1. Stimpilgjald af fasteignamati fasteignar er 0.8%, en 0,4% fyrir fyrstu kaup og 1,6% fyrir lögaðila.
2. Þinglýsingargjald kr. 3.800.- kr. af hverju skjali.
3. Lántökukostnaður lánastofnunar - mismunandi eftir lánastofnunum.
4. Umsýslugjald til fasteignasölu skv. samningi.
Skoðunarskylda kaupanda:
Í lögum um fasteignakaup nr. 40/2002 er kveðið á um ríka skoðunarskyldu kaupenda á fasteignum. Fasteignasala bendir væntanlegum kaupendum á að kynna sér vel ástand fasteigna við skoðun og fyrir tilboðsgerð og ef þurfa þykir að leita til sérfræðinga um nánari ástandsskoðun.
Forsendur söluyfirlits:
Söluyfirlit er samið af fasteignasala í samræmi við ákvæði laga nr. 70/2015. Þær upplýsingar sem fram koma í söluyfirliti þessu eru sóttar í opinberar skrár, til seljanda sjálfs og eftir atvikum til húsfélags. Seljandi veitir upplýsingar um eign í samræmi við upplýsingaskyldu laga um fasteignakaup nr. 40/2002. Fasteignasali sanneynir að þær upplýsingar séu réttar með sjónskoðun á eigninni. Fasteignasali getur ekki fullyrt um ástand og eiginleika þeirra hluta fasteigna sem ekki eru aðgengilegir og sjást ekki berum augum, t.d. lagnir, dren, skólp og þak.
Nánari upplýsingar veitir Sigurður Gunnlaugsson, fasteignasali í GSM: 898-6106 eða sigurdur@fstorg.is
Sækja söluyfirlit HÉR
NÁNARI LÝSING:
Eignin skiptist í rúmgott anddyri, hol, tvöfaldan innbyggðan bílskúr, eldhús, stofu, borðstofu, opið sjónvarpsrými, 5 svefnherbergi, tvö baðherbergi og geymslu. Auk þess eru 45 óskráðir fm, þar sem búið er að koma fyrir geymslu, búri, vinnuherbergi, gufu og sturtu. Möguleiki á að bæta við svefnherbergjum.
Neðri hæð:
Forstofa: Marmari á gólfi og góðir skápar sem ná upp í loft.
Forstofuherbergi: Rúmgott svefnherbergi með fataskáp. Parket á gólfi.
Hol: Tengir saman rými neðri hæðar og þaðan er stigi upp á efri hæð. Marmari á gólfi.
Baðherbergi: Snyrtilegt baðherbergi með handlaug, salerni og sturtuklefa. Flísar á gólfi og veggjum. Gluggi á baðherbergi.
Garður: Garðurinn er gróinn og hellulagður. Aðkoma að húsinu er glæsileg.
Bílskúr: Innangengt frá forstofu í snyrtilegan bílskúr. Fyrir framan hann og húsið er hellulagt plan með hitalögn.
Efri hæð:
Stofa: Rúmgóð og björt stofa og borðstofa. Marmari á gólfi. Útgengt úr stofu út á yfirbyggða verönd.
Eldhús: Mjög rúmgott, opið eldhús. Innrétting með góðu skápaplássi, eldhústækjum, granít á borðum. Marmari á gólfi.
Herbergi: Rúmgott með fataskápum. Parket á gólfi.
Hjónaherbergi: Rúmgott herbergi með fataskápum. Parket á gólfi.
Herbergi: Rúmgott með fataskáp. Parket á gólfi.
Sjónvarpshol: Rúmgott opið sjónvarpshol. Marmari á gólfi.
Þvottahús: Snyrtilegt með vaski og borði. Tengi fyrir þvottavél og þurrkara. Flísar á gólfi og veggjum.
Baðherbergi: Flísalagt í hólf og gólf. Falleg innrétting, sturta og baðkar. Gluggi á baðherbergi.
Glæsilegt, rúmgott fjölskylduhús einbýlishús á rólegum og góðum stað í Grafarholti, steinsnar frá golfvellinum. Húsið stendur ofan við götu og er útsýnið glæsilegt.Stutt í leiksvæði, þjónustu, verslanir, skóla og stofnbraut.
Nánari upplýsingar veitir Sigurður Gunnlaugsson, fasteignasali í GSM: 898-6106 eða sigurdur@fstorg.is
Gjöld sem kaupandi þarf að greiða vegna kaupa á fasteign:
1. Stimpilgjald af fasteignamati fasteignar er 0.8%, en 0,4% fyrir fyrstu kaup og 1,6% fyrir lögaðila.
2. Þinglýsingargjald kr. 3.800.- kr. af hverju skjali.
3. Lántökukostnaður lánastofnunar - mismunandi eftir lánastofnunum.
4. Umsýslugjald til fasteignasölu skv. samningi.
Skoðunarskylda kaupanda:
Í lögum um fasteignakaup nr. 40/2002 er kveðið á um ríka skoðunarskyldu kaupenda á fasteignum. Fasteignasala bendir væntanlegum kaupendum á að kynna sér vel ástand fasteigna við skoðun og fyrir tilboðsgerð og ef þurfa þykir að leita til sérfræðinga um nánari ástandsskoðun.
Forsendur söluyfirlits:
Söluyfirlit er samið af fasteignasala í samræmi við ákvæði laga nr. 70/2015. Þær upplýsingar sem fram koma í söluyfirliti þessu eru sóttar í opinberar skrár, til seljanda sjálfs og eftir atvikum til húsfélags. Seljandi veitir upplýsingar um eign í samræmi við upplýsingaskyldu laga um fasteignakaup nr. 40/2002. Fasteignasali sanneynir að þær upplýsingar séu réttar með sjónskoðun á eigninni. Fasteignasali getur ekki fullyrt um ástand og eiginleika þeirra hluta fasteigna sem ekki eru aðgengilegir og sjást ekki berum augum, t.d. lagnir, dren, skólp og þak.
Ár
Fasteignamat
Kaupverð
Stærð
Fermetraverð
28. nóv. 2014
58.500.000 kr.
62.000.000 kr.
232.6 m²
266.552 kr.
23. mar. 2007
46.730.000 kr.
66.000.000 kr.
232.6 m²
283.749 kr.
Byggt á upplýsingum úr Þjóðskrá Íslands frá 2006-2026