Löggiltir fasteignasalar innan Félags fasteignasala:
Stefán Ólafsson
Friðrik Halldór Brynjólfsson
Vista
svg

2917

svg

2753  Skoðendur

svg

Skráð  22. apr. 2024

einbýlishús

Sunnubraut 5

540 Blönduós

44.800.000 kr.

288.474 þ.kr./m2
Fasteignanúmer

F2337631

Fasteignamat

10.550.000 kr.

Brunabótamat

0 kr.

Áhvílandi

0 kr.

Arion banki – Reikna lán
Upplýsingar
svg
Byggt 2018
svg
155,3 m²
svg
3 herb.
svg
1 baðherb.
svg
3 svefnh.
svg
Þvottahús

Lýsing

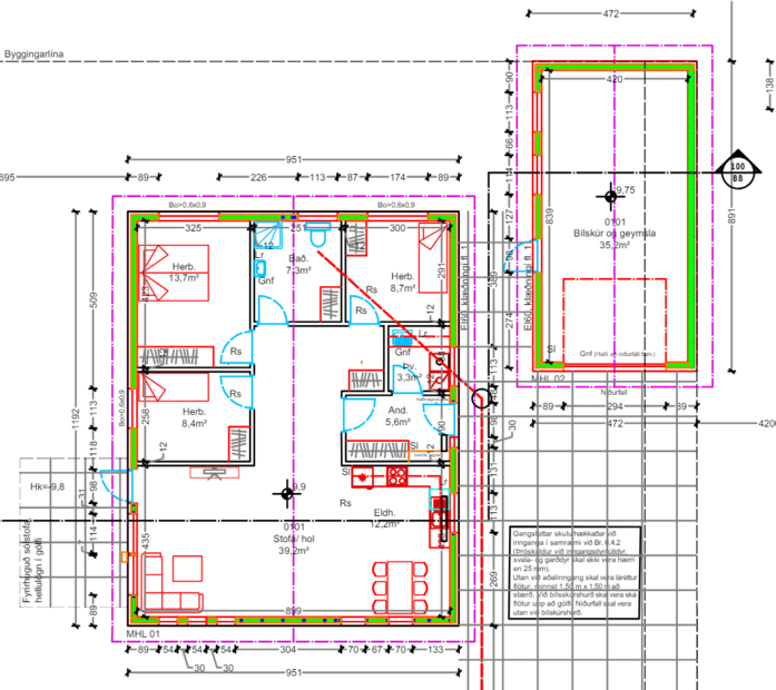
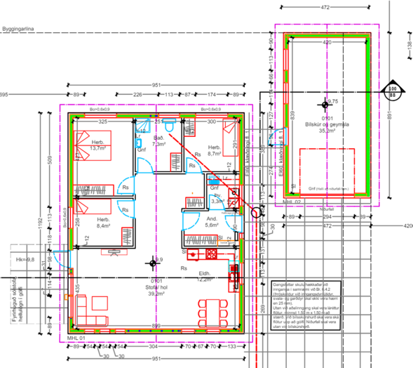
Domus Fasteignasala hefur til sölu einbýlishúsið Sunnubraut 5, 540 Blönduósi. Húsið er 155,3 fm að stærð, Annars vegar 113,3 fm hús og hins vegar 42 fm bílskúr. 

Teikningar gera ráð fyrir eldhúsi, stofu, þvottahúsi, þremur svefnherbergjum, baðherbergi og forstofu. Lóð er 780 fm. 

Húsið er enn á byggingarstigi en mun skilast tilbúið að utan, klætt með gráu bandsöguðu efni og hvítum gluggum. Að innan mun húsið verða plastað og einangrað. Húsið verður með járn á þaki og lóðin grófjöfnuð. Við afhendingu verður bílskúr fullbúinn að utan og plastaður og einangraður að innan. 

Einbýlishús sem býður upp á mikla möguleika, góð staðsetning og stutt í alla þjónustu. 

Upplýsingar veita Friðrik Halldór Brynjólfsson löggiltur fasteignasali s 662-8034 fridrikhalldor@budubetur.is 
eða Stefán Ólafsson hrl. löggiltur fasteignasali s 891-9425 stefano@domus.is

img
Friðrik Halldór Brynjólfsson
Lögg.fasteignasali innan félags fasteignasala
Domus Fasteignasala
Þverbraut 1, 540 Blönduósi
Domus Fasteignasala

Domus Fasteignasala

Þverbraut 1, 540 Blönduósi
phone
img

Friðrik Halldór Brynjólfsson

Þverbraut 1, 540 Blönduósi
Domus Fasteignasala

Domus Fasteignasala

Þverbraut 1, 540 Blönduósi
phone

Friðrik Halldór Brynjólfsson

Þverbraut 1, 540 Blönduósi