Löggiltir fasteignasalar innan Félags fasteignasala:
Daníel Rúnar Elíasson
Vista
fjölbýlishús

Holtsflöt 6 íbúð 402

300 Akranes

62.200.000 kr.

561.372 þ.kr./m2
Fasteignanúmer

F2286100

Fasteignamat

66.050.000 kr.

Brunabótamat

60.400.000 kr.

Áhvílandi

0 kr.

Arion banki – Reikna lán
Upplýsingar
Verðsaga
svg
Byggt 2007
svg
110,8 m²
svg
3 herb.
svg
1 baðherb.
svg
2 svefnh.
svg
Þvottahús
svg
Sameiginl. inngangur
svg
Lyfta

Lýsing

HÁKOT fasteignasala sími: 431-4045 / 899-4045 auglýsir *

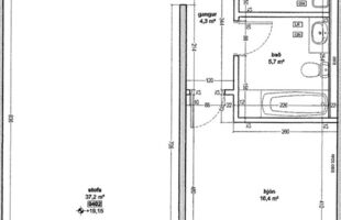
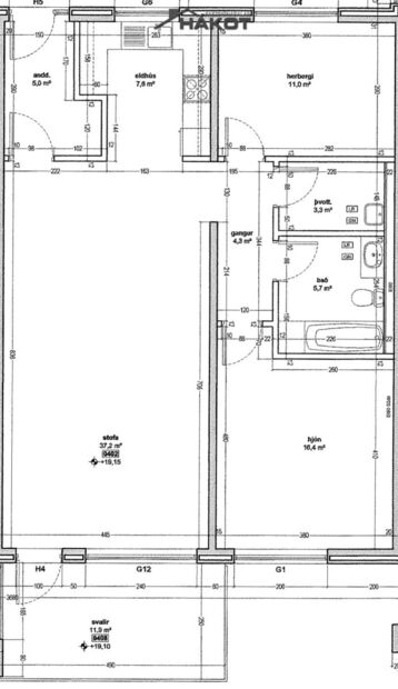
* HOLTSFLÖT 6 * 3ja herbergja íbúð (103.2 fm) á 4. hæð til vinstri ásamt sérgeymslu (7.2 fm) í kjallara = 110.4 fm - LYFTUBLOKK .

 
Forstofa (flísar, fataskápar).
Hol (parket).
Herbergi (parket, skápur).
Þvottahús (flísar, vaskborð, ekki gluggi).
Eldhús (parket, ljós viðarinnrétting, helluborð, ofn, háfur og uppþvottavél, opið inn í stofu).
Baðherbergi (flísar, flísar á vegg, ljós viðarinnrétting, baðkar m/sturtu, upphengt wc, ekki gluggi).
Svefnherbergi (parket, fataskápar).
Stofa (harðparket, útgangur út á Svalir).
 
Sérgeymsla í kjallara (málað gólf).
 
ANNAÐ: Húsið byggt 2007. Sameiginleg hjólageymsla í kjallara. Lyftuhús. Frágengin lóð og gangstéttar. Malbikað plan. Forsteyptar einingar. Sorpskýli á bílastæði. Staðsett í hliðargötu við innkeyrsluna í bæinn.

Stutt í leikskóla og þjónustu. 

 

************
Um skoðunar- og aðgæsluskyldu:
Í lögum um fasteignakaup nr. 40/2002 er kveðið á um ríka skoðunarskyldu kaupenda á fasteignum. Fasteignasalan Hákot bendir væntanlegum kaupendum á að kynna sér vel ástand fasteigna við skoðun og fyrir tilboðsgerð og ef þurfa þykir að leita til sérfræðinga um nánari ástandsskoðun.

Forsendur söluyfirlits: 
Söluyfirlit er samið af fasteignasala í samræmi við ákvæði laga nr. 70/2015. Þær upplýsingar sem fram koma í söluyfirliti þessu eru sóttar í opinberar skrár, til seljanda sjálfs og eftir atvikum til húsfélags. Seljandi veitir upplýsingar um eign í samræmi við upplýsingaskyldu laga um fasteignakaup nr. 40/2002. Fasteignasali metur eignina með sjónskoðun.
Fasteignasali getur ekki fullyrt um ástand og eiginleika þeirra hluta fasteigna sem ekki eru aðgengilegir og sjást ekki berum augum, t.d. lagnir, dren, skólp og þak.

Gjöld sem kaupandi þarf að standa straum af vegna kaupanna:  
1. Stimpilgjald af kaupsamningi - 0.8% af heildar fasteignamati / 1.6% fyrir lögaðila, (0.4% við fyrstu kaup einstaklinga).
2. Þinglýsingagjald af kaupsamningi, afsali, veðskuldabréfi, umboði, veðleyfi o.fl.- kr. 2.700 af hverju skjali.
3. Umsýslugjald kr. 49.600 (m/vsk).
4. Lántökugjald veðskuldabréfa samkvæmt gjaldskrá lánveitenda.
5. Ef um nýbyggingu er að ræða greiðir kaupandi skipulagsgjald, 0,3% af brunabótamáti, þegar það er lagt á

Fasteignasalan Hákot

Fasteignasalan Hákot

Kirkjubraut 12 (jarðhæð)300 Akranesi
phone
Ár
Fasteignamat
Kaupverð
Stærð
Fermetraverð
8. jan. 2021
40.100.000 kr.
35.000.000 kr.
110.8 m²
315.884 kr.
Byggt á upplýsingum úr Þjóðskrá Íslands frá 2006-2026
Fasteignasalan Hákot

Fasteignasalan Hákot

Kirkjubraut 12 (jarðhæð)300 Akranesi
phone