Upplýsingar
Verðsaga
Byggt 1971
90,6 m²
4 herb.
1 baðherb.
3 svefnh.
Útsýni
Laus strax
Lýsing
Fasteignasalan Hvammur 466-1600
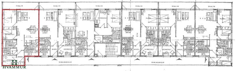
Skarðshlíð 29 íbúð 301 - Björt og vel skipulögð 4ra herbergja íbúð á 3ju hæð, efstu í austur enda - stærð 90,6 m²
Eignin skiptist í forstofu, gang, eldhús og stofu í opnu rými, þrjú svefnherbergi, baðherbergi og geymslu.
Forstofa er með flísum á gólfi.
Eldhús, flísar á gólfi og snyrtileg hvít sprautulökkuð innrétting með nýlegri bekkplötu og flísum milli skápa. AEG ofn og helluborð.
Stofa og eldhús eru í opnu rými. Í stofu er ljóst plast parket á gólfi og úr stofunni er hurð út á steyptar suður svalir með svalalokunarkerfi.
Svefnherbergin eru þrjú, öll með ljósu plast parketi á gólfi og fataskápum.
Baðherbergi er með flísum á gólfi og hluta veggja, hvítri innréttingu, wc, baðkari með sturtutækjum og opnanlegum glugga. Tengi eru inn á baðherberginu fyrir þvottavél og þurrkara.
Tvær geymslur fylgja íbúðinni, önnur innan íbúðar með hillum og hin er í kjallaranum, með lökkuðu gólfi og hillum.
Annað
- Búið er að taka inn ljósleiðara
- Stórar suður svalir með svalalokun
- Búið er að endurnýja rafmagnstengla.
Um skoðunar- og aðgæsluskyldu:
Í lögum um fasteignakaup nr. 40/2002 er kveðið á um ríka skoðunarskyldu kaupenda á fasteignum. Fasteignasalan Hvammur skorar því á væntanlega kaupendur að kynna sér vel ástand fasteigna fyrir kauptilboðsgerð og leita til þar til bærra sérfræðinga um nánari skoðun ef með þarf.
Forsendur söluyfirlits:
Söluyfirlit er samið af fasteignasala í samræmi við ákvæði laga nr. 70/2015. Þær upplýsingar sem fram koma í söluyfirliti þessu eru sóttar í opinberar skrár, til seljanda sjálfs og eftir atvikum til húsfélags. Seljandi veitir upplýsingar um eign í samræmi við upplýsingaskyldu laga um fasteignakaup nr. 40/2002. Fasteignasali sannreynir að þær upplýsingar séu réttar með sjónskoðun á eigninni.
Fasteignasali getur ekki fullyrt um ástand og eiginleika þeirra hluta fasteigna sem ekki eru aðgengilegir og sjást ekki berum augum, t.d. lagnir, dren, skólp og þak.
Skarðshlíð 29 íbúð 301 - Björt og vel skipulögð 4ra herbergja íbúð á 3ju hæð, efstu í austur enda - stærð 90,6 m²
Eignin skiptist í forstofu, gang, eldhús og stofu í opnu rými, þrjú svefnherbergi, baðherbergi og geymslu.
Forstofa er með flísum á gólfi.
Eldhús, flísar á gólfi og snyrtileg hvít sprautulökkuð innrétting með nýlegri bekkplötu og flísum milli skápa. AEG ofn og helluborð.
Stofa og eldhús eru í opnu rými. Í stofu er ljóst plast parket á gólfi og úr stofunni er hurð út á steyptar suður svalir með svalalokunarkerfi.
Svefnherbergin eru þrjú, öll með ljósu plast parketi á gólfi og fataskápum.
Baðherbergi er með flísum á gólfi og hluta veggja, hvítri innréttingu, wc, baðkari með sturtutækjum og opnanlegum glugga. Tengi eru inn á baðherberginu fyrir þvottavél og þurrkara.
Tvær geymslur fylgja íbúðinni, önnur innan íbúðar með hillum og hin er í kjallaranum, með lökkuðu gólfi og hillum.
Annað
- Búið er að taka inn ljósleiðara
- Stórar suður svalir með svalalokun
- Búið er að endurnýja rafmagnstengla.
Um skoðunar- og aðgæsluskyldu:
Í lögum um fasteignakaup nr. 40/2002 er kveðið á um ríka skoðunarskyldu kaupenda á fasteignum. Fasteignasalan Hvammur skorar því á væntanlega kaupendur að kynna sér vel ástand fasteigna fyrir kauptilboðsgerð og leita til þar til bærra sérfræðinga um nánari skoðun ef með þarf.
Forsendur söluyfirlits:
Söluyfirlit er samið af fasteignasala í samræmi við ákvæði laga nr. 70/2015. Þær upplýsingar sem fram koma í söluyfirliti þessu eru sóttar í opinberar skrár, til seljanda sjálfs og eftir atvikum til húsfélags. Seljandi veitir upplýsingar um eign í samræmi við upplýsingaskyldu laga um fasteignakaup nr. 40/2002. Fasteignasali sannreynir að þær upplýsingar séu réttar með sjónskoðun á eigninni.
Fasteignasali getur ekki fullyrt um ástand og eiginleika þeirra hluta fasteigna sem ekki eru aðgengilegir og sjást ekki berum augum, t.d. lagnir, dren, skólp og þak.
Ár
Fasteignamat
Kaupverð
Stærð
Fermetraverð
30. júl. 2024
39.200.000 kr.
45.000.000 kr.
10301 m²
4.369 kr.
21. des. 2017
17.650.000 kr.
27.000.000 kr.
90.6 m²
298.013 kr.
14. okt. 2014
14.100.000 kr.
18.600.000 kr.
90.6 m²
205.298 kr.
15. ágú. 2011
12.850.000 kr.
11.500.000 kr.
90.6 m²
126.932 kr.
Byggt á upplýsingum úr Þjóðskrá Íslands frá 2006-2026