Upplýsingar
0 m²
0 herb.
Lýsing
Gullið tækifæri fyrir þá sem vilja friðsæld í dreifbýli en nálægð við þéttbýli - dreymir þig um lóð steinsnar frá Egilsstöðum?
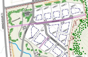
Þrettán íbúðarhúsalóðir (má vera með lögheimili) ca. 6 km frá allri þjónustu á Egilsstöðum. Lóðirnar vísa allar til suðurs og vesturs og ættu því að vera ákjósanlegur og spennandi byggingarstaður sem nýtur sólar frá morgni til kvölds.
Lóðirnar seljast allar saman í einum pakka.
Á hverri lóð er heimilt að reisa allt að 300 m² íbúðarhús á einni eða tveimur hæðum.
Á þessum þrettán lóðum er hugsunin að um verði að ræða litla byggð í dreifbýli sem þó er, eins og áður sagði, einungis um 6 km frá Egilsstöðum.
Flestar lóðirnar eru á grunnu svæði og stutt niður á fast.
Nánari upplýsingar hjá INNI fasteignasölu.
Lóðarstærð er sem hér segir:
Stekkjarflöt 1 - 1984 m²
Stekkjarflöt 2 - 2940 m²
Stekkjarflöt 3 - 2056 m²
Stekkjarflöt 4 - 2610 m²
Stekkjarflöt 5 - 2136 m²
Stekkjarflöt 6 - 2855 m²
Stekkjarflöt 7 - 2122 m²
Stekkjarflöt 8 - 2139 m²
Stekkjarflöt 9 - 2520 m²
Stekkjarflöt 10 - 2282 m²
Stekkjarflöt 12 - 2095 m²
Stekkjarflöt 14 - 2050 m²
Stekkjarflöt 16 - 2596 m²
Ath. að lóðirnar eru í staðfestingarferli hjá sveitarfélaginu og HMS - fastanúmer er því ekki komið á lóðirnar.
Þrettán íbúðarhúsalóðir (má vera með lögheimili) ca. 6 km frá allri þjónustu á Egilsstöðum. Lóðirnar vísa allar til suðurs og vesturs og ættu því að vera ákjósanlegur og spennandi byggingarstaður sem nýtur sólar frá morgni til kvölds.
Lóðirnar seljast allar saman í einum pakka.
Á hverri lóð er heimilt að reisa allt að 300 m² íbúðarhús á einni eða tveimur hæðum.
Á þessum þrettán lóðum er hugsunin að um verði að ræða litla byggð í dreifbýli sem þó er, eins og áður sagði, einungis um 6 km frá Egilsstöðum.
Flestar lóðirnar eru á grunnu svæði og stutt niður á fast.
Nánari upplýsingar hjá INNI fasteignasölu.
Lóðarstærð er sem hér segir:
Stekkjarflöt 1 - 1984 m²
Stekkjarflöt 2 - 2940 m²
Stekkjarflöt 3 - 2056 m²
Stekkjarflöt 4 - 2610 m²
Stekkjarflöt 5 - 2136 m²
Stekkjarflöt 6 - 2855 m²
Stekkjarflöt 7 - 2122 m²
Stekkjarflöt 8 - 2139 m²
Stekkjarflöt 9 - 2520 m²
Stekkjarflöt 10 - 2282 m²
Stekkjarflöt 12 - 2095 m²
Stekkjarflöt 14 - 2050 m²
Stekkjarflöt 16 - 2596 m²
Ath. að lóðirnar eru í staðfestingarferli hjá sveitarfélaginu og HMS - fastanúmer er því ekki komið á lóðirnar.