Löggiltir fasteignasalar innan Félags fasteignasala:
Ástþór Reynir Guðmundsson
Vigdís R. S. Helgadóttir
Guðbjörg Helga Jóhannesdóttir
Gylfi Jens Gylfason
Sigrún Matthea Sigvaldadóttir
Sveinn Gíslason
Páll Guðmundsson
Þórarinn Arnar Sævarsson
Berglind Hólm Birgisdóttir
Þorsteinn Gíslason
Guðrún Lilja Tryggvadóttir
Brynjar Ingólfsson
Guðný Þorsteinsdóttir
Bjarni Blöndal
Þorsteinn Ólafs
Þórdís Björk Davíðsdóttir
Jóhann Kristinn Jóhannesson
Bjarný Björg Arnórsdóttir
Salvör Þóra Davíðsdóttir
Magga Sigríður Gísladóttir
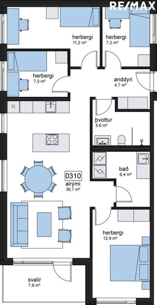
Upplýsingar
128 m²
5 herb.
4 svefnh.
Sameiginl. inngangur
Lyfta
Lýsing
RE/MAX og REIRVERK kynna í einkasölu:
Vel skipulagðar og vandaðar íbúðir á flottum stað í Vogabyggð. Stefnisvogur 3, 104 Reykjavík.
Fjármögnunarmöguleiki í gegnum REIR20
REIR20 er ný lausn fyrir kaupendur á eignum REIR verk.
Þú leggur fram að lágmarki 10% af kaupverði fasteignar – REIR20 leggur til allt að 20% á móti.
Fjárfestum saman í þinni framtíð. Sjá allar frekari upplýsingar á heimasíðu www.Reir20.is
Íbúðir skilast fullbúnar með gólfefnum og eru allar innréttingar sérsmíðaðar hjá GerHer í Litháen. Um er að ræða vandaða framleiðslu úr hágæða harðplasti sem er sérstaklega endinga gott og slit sterkt. Vönduð heimilistæki, innfeld tæki, ísskápur, frystir og uppþvottavél.
Gólfhiti er í öllum íbúðum með sér dreifikistu fyrir hverja íbúð. Sjálfstæð loftræsti samstaða er fyrir hverja íbúð með inn- og útkasti á lofti.
Byggingaraðili er Reir verk ehf.
Nánar um eign: Íbúð nr. 310, Stefnisvogur 3
Eignin er fimm herbergja íbúð á 3. hæð, birt stærð 109,5 fm. Eigninni tilheyrir geymsla í kjallara, birt stærð 18,5 fm.
Birt heildarstærð séreignar er 128 fm.
Sjá má skilalýsingu, verðlista og nánari upplýsingar um íbúðirnar inn á heimasíðu verkefnisins: https://stefnisvogur.is/
Upplýsingar um Stefnisvog 3
Húsið skilast fullbúið að utan. Húsið er steinsteypt, einangrað og klædd að utan með áli. Þak er viðsnúið, steypt með halla, tvöfalt lag er af eldsoðnum tjörupappa, einangrað ofan á plötu og ferging. Svalahandrið eru úr heitgalvanhúðuðu stáli eða álkerfi. Yfirborð á svalagólfum er klætt.Gluggakerfi íbúða er ál-tré. Inngangshurðir í stigaganga eru álhurðir. Sameiginleg lóð verður fullfrágengin skv. teikningum lóðahönnuða. Snjóbræðsla er lögð að inngangi hússins og í gangstéttar utan við hús. Húsið er 4 hæða lyftu fjölbýlishús með samtals 15 íbúðum. Öllum íbúðum fylgir geymsla auk afnotaréttar af hjóla- og vagnageymslu. Anddyri er með uppsettum póstkössum og mynddyrasíma. Teppi á stigum og stigapöllum er frá Álfaborg. Gólf í anddyri er flísalagt með gráum flísum. Lyftur eru af gerðinni Kone.
Að verkinu standa eftirtaldir aðilar:
Byggingaraðili hússins er Reir verk ehf.
Arkitekt og aðalhönnuður er Arkþing Nordic ehf.
Sigma sá um hönnun á burðarvirki
Lagnahönnun var í umsjá Pascal
Cowi sá um hljóðhönnun.
Brunahönnun sá um brunahönnun.
Raflagnahönnun, Raflax sá um raflagna- og lýsingahönnun.
Nánari upplýsingar veita:
Guðný Þorsteinsdóttir löggiltur fasteignasali í síma 771-5211 / gudnyth@remax.is
Bjarný Björg Arnórsdóttir löggiltur fasteignasali í síma 694-2526 / bjarny@remax.is
Magnús Már Lúðvíksson löggiltur fasteignasali í síma 862-2010 / maggi@remax.is
Guðlaugur J. Guðlaugsson löggiltur fasteignasali í síma 661-6056 / gulli@remax.is
Gjöld sem kaupandi þarf að standa straum af vegna kaupanna:
1. Stimpilgjald af kaupsamningi er almennt 0,8%, en 0,4% ef um fyrstu kaup er að ræða og 1.6% ef um lögaðila er að ræða. Miðast af heildar fasteignamati.
2. Þinglýsingargjald af kaupsamningi, veðskuldabréfi, mögulegu veðleyfi o.fl. - kr. 2.700 af hverju skjali.
3. Lántökugjald lánastofnunar - Nánari upplýsingar á heimasíðum lánastofnana.
4. Umsýslugjald til fasteignasölu kr. 69.900.-
Vel skipulagðar og vandaðar íbúðir á flottum stað í Vogabyggð. Stefnisvogur 3, 104 Reykjavík.
Fjármögnunarmöguleiki í gegnum REIR20
REIR20 er ný lausn fyrir kaupendur á eignum REIR verk.
Þú leggur fram að lágmarki 10% af kaupverði fasteignar – REIR20 leggur til allt að 20% á móti.
Fjárfestum saman í þinni framtíð. Sjá allar frekari upplýsingar á heimasíðu www.Reir20.is
Íbúðir skilast fullbúnar með gólfefnum og eru allar innréttingar sérsmíðaðar hjá GerHer í Litháen. Um er að ræða vandaða framleiðslu úr hágæða harðplasti sem er sérstaklega endinga gott og slit sterkt. Vönduð heimilistæki, innfeld tæki, ísskápur, frystir og uppþvottavél.
Gólfhiti er í öllum íbúðum með sér dreifikistu fyrir hverja íbúð. Sjálfstæð loftræsti samstaða er fyrir hverja íbúð með inn- og útkasti á lofti.
Byggingaraðili er Reir verk ehf.
Nánar um eign: Íbúð nr. 310, Stefnisvogur 3
Eignin er fimm herbergja íbúð á 3. hæð, birt stærð 109,5 fm. Eigninni tilheyrir geymsla í kjallara, birt stærð 18,5 fm.
Birt heildarstærð séreignar er 128 fm.
Sjá má skilalýsingu, verðlista og nánari upplýsingar um íbúðirnar inn á heimasíðu verkefnisins: https://stefnisvogur.is/
Upplýsingar um Stefnisvog 3
Húsið skilast fullbúið að utan. Húsið er steinsteypt, einangrað og klædd að utan með áli. Þak er viðsnúið, steypt með halla, tvöfalt lag er af eldsoðnum tjörupappa, einangrað ofan á plötu og ferging. Svalahandrið eru úr heitgalvanhúðuðu stáli eða álkerfi. Yfirborð á svalagólfum er klætt.Gluggakerfi íbúða er ál-tré. Inngangshurðir í stigaganga eru álhurðir. Sameiginleg lóð verður fullfrágengin skv. teikningum lóðahönnuða. Snjóbræðsla er lögð að inngangi hússins og í gangstéttar utan við hús. Húsið er 4 hæða lyftu fjölbýlishús með samtals 15 íbúðum. Öllum íbúðum fylgir geymsla auk afnotaréttar af hjóla- og vagnageymslu. Anddyri er með uppsettum póstkössum og mynddyrasíma. Teppi á stigum og stigapöllum er frá Álfaborg. Gólf í anddyri er flísalagt með gráum flísum. Lyftur eru af gerðinni Kone.
Að verkinu standa eftirtaldir aðilar:
Byggingaraðili hússins er Reir verk ehf.
Arkitekt og aðalhönnuður er Arkþing Nordic ehf.
Sigma sá um hönnun á burðarvirki
Lagnahönnun var í umsjá Pascal
Cowi sá um hljóðhönnun.
Brunahönnun sá um brunahönnun.
Raflagnahönnun, Raflax sá um raflagna- og lýsingahönnun.
Nánari upplýsingar veita:
Guðný Þorsteinsdóttir löggiltur fasteignasali í síma 771-5211 / gudnyth@remax.is
Bjarný Björg Arnórsdóttir löggiltur fasteignasali í síma 694-2526 / bjarny@remax.is
Magnús Már Lúðvíksson löggiltur fasteignasali í síma 862-2010 / maggi@remax.is
Guðlaugur J. Guðlaugsson löggiltur fasteignasali í síma 661-6056 / gulli@remax.is
Gjöld sem kaupandi þarf að standa straum af vegna kaupanna:
1. Stimpilgjald af kaupsamningi er almennt 0,8%, en 0,4% ef um fyrstu kaup er að ræða og 1.6% ef um lögaðila er að ræða. Miðast af heildar fasteignamati.
2. Þinglýsingargjald af kaupsamningi, veðskuldabréfi, mögulegu veðleyfi o.fl. - kr. 2.700 af hverju skjali.
3. Lántökugjald lánastofnunar - Nánari upplýsingar á heimasíðum lánastofnana.
4. Umsýslugjald til fasteignasölu kr. 69.900.-