Upplýsingar
Verðsaga
Byggt 1961
99 m²
4 herb.
1 baðherb.
3 svefnh.
Þvottahús
Útsýni
Sérinngangur
Lýsing
Falleg, björt og vel skipulögð 4 herbergja efri hæð í góðu tvíbýlishúsi við Njarðargötu 12 í Reykjanesbæ.
Bókið skoðun, sjón er sögu ríkari.
* 3 svefnherbergi
* Gott viðhald á húsinu
* Sérinngangur
* Góð staðsetning
Nánari upplýsingar veita:
Inga Reynis Lgf í síma nr 820-1903 eða inga@palssonfasteignasala.is
www.eignavakt.is
www.verdmat.is
Góð ráð fyrir kaupendur / seljendur
Eignin er skráð samkvæmt Þjóðskrá Íslands 99m2
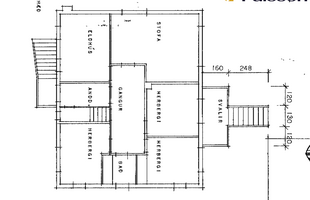
Eignin skiptist í anddyrir, hol, stofu/borðustofu, 3 svefnherbergi, baðherbergi, sameiginlegt þvottahús og geymslu í sameign.
Nánari lýsing;
Anddyri er með fatageymslu. Flísar á gólfum..
Hol er með parket á gólfum.
Stofa/borðstofa er björt og rúmgóð. Parketi á gólfum.
Eldhús er með fallegri eikarinnréttingu og flísum á milli skápa, bakaraofn, helluborð og viftu.
Svefnherbergi I er rúmgott með góðum fataskáp og glugga á tvo vegu. Parket á gólfum.
Svefnherbergi II er með góðum fataskáp og útgengt út á viðarverönd. Parket á gólfum.
Svefnherbergi III er með glugga á tvo vegu. Parket á gólfum.
Baðherbergi er flísalagt í hólf og gólf, baðkar, vegghengt wc, handlaug og hvít innrétting.
Sameiginlegt þvottahús, aðstaða fyrir þvottavél og þurrkara er á fyrstu hæð ásamt geymslu.
Framkvæmdir síðustu ár:
Húsið sprunguviðgert og málað allt að utan 2024.
Allir gluggar málaðir og yfirfarnir að utan 2024.
Skipt um hluta af þaki 2024 ásamt rennum og niðurföll þrifin og yfirfarin.
Nýtt stigahandrið 2020.
Steyptar nýjar tröppur 2019.
Mjög vel staðsett eign þar sem stutt er í leikskólann Hjallaholt, Reykjaneshöllina, íþróttaakademíuna í Reykjanesbæ, veitingastaði, verslanir og aðra þjónustu.
Nánari upplýsingar veita:
Inga Reynis Lgf í síma nr 820-1903 eða inga@palssonfasteignasala.is
Gjöld sem kaupandi þarf að standa straum af vegna kaupanna:
1. Stimpilgjald af kaupsamningi - 0.8% af heildarfasteignamati / 1.6% fyrir lögaðila. (0.4% við fyrstu kaup einstaklinga).
2. Þinglýsingagjald af kaupsamningi, veðskuldabréfi, veðleyfi o.fl.- kr. 2.700 af hverju skjali.
3. Lántökugjald lánastofnunar - samanber gjaldskrá viðkomandi lánastofnunar.
4. Umsýsluþóknun til fasteignasölu, sbr.kauptilboð.
Um skoðunarskyldu:
Í lögum um fasteignakaup nr. 40/2002 er kveðið á um ríka skoðunarskyldu kaupenda á fasteignum. Pálsson fasteignasala bendir væntanlegum kaupendum á að kynna sér vel ástand fasteigna við skoðun og fyrir tilboðsgerð og ef þurfa þykir að leita til sérfræðinga um nánari ástandsskoðun.
Bókið skoðun, sjón er sögu ríkari.
* 3 svefnherbergi
* Gott viðhald á húsinu
* Sérinngangur
* Góð staðsetning
Nánari upplýsingar veita:
Inga Reynis Lgf í síma nr 820-1903 eða inga@palssonfasteignasala.is
www.eignavakt.is
www.verdmat.is
Góð ráð fyrir kaupendur / seljendur
Eignin er skráð samkvæmt Þjóðskrá Íslands 99m2
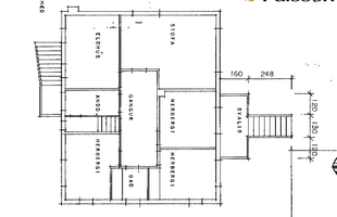
Eignin skiptist í anddyrir, hol, stofu/borðustofu, 3 svefnherbergi, baðherbergi, sameiginlegt þvottahús og geymslu í sameign.
Nánari lýsing;
Anddyri er með fatageymslu. Flísar á gólfum..
Hol er með parket á gólfum.
Stofa/borðstofa er björt og rúmgóð. Parketi á gólfum.
Eldhús er með fallegri eikarinnréttingu og flísum á milli skápa, bakaraofn, helluborð og viftu.
Svefnherbergi I er rúmgott með góðum fataskáp og glugga á tvo vegu. Parket á gólfum.
Svefnherbergi II er með góðum fataskáp og útgengt út á viðarverönd. Parket á gólfum.
Svefnherbergi III er með glugga á tvo vegu. Parket á gólfum.
Baðherbergi er flísalagt í hólf og gólf, baðkar, vegghengt wc, handlaug og hvít innrétting.
Sameiginlegt þvottahús, aðstaða fyrir þvottavél og þurrkara er á fyrstu hæð ásamt geymslu.
Framkvæmdir síðustu ár:
Húsið sprunguviðgert og málað allt að utan 2024.
Allir gluggar málaðir og yfirfarnir að utan 2024.
Skipt um hluta af þaki 2024 ásamt rennum og niðurföll þrifin og yfirfarin.
Nýtt stigahandrið 2020.
Steyptar nýjar tröppur 2019.
Mjög vel staðsett eign þar sem stutt er í leikskólann Hjallaholt, Reykjaneshöllina, íþróttaakademíuna í Reykjanesbæ, veitingastaði, verslanir og aðra þjónustu.
Nánari upplýsingar veita:
Inga Reynis Lgf í síma nr 820-1903 eða inga@palssonfasteignasala.is
Gjöld sem kaupandi þarf að standa straum af vegna kaupanna:
1. Stimpilgjald af kaupsamningi - 0.8% af heildarfasteignamati / 1.6% fyrir lögaðila. (0.4% við fyrstu kaup einstaklinga).
2. Þinglýsingagjald af kaupsamningi, veðskuldabréfi, veðleyfi o.fl.- kr. 2.700 af hverju skjali.
3. Lántökugjald lánastofnunar - samanber gjaldskrá viðkomandi lánastofnunar.
4. Umsýsluþóknun til fasteignasölu, sbr.kauptilboð.
Um skoðunarskyldu:
Í lögum um fasteignakaup nr. 40/2002 er kveðið á um ríka skoðunarskyldu kaupenda á fasteignum. Pálsson fasteignasala bendir væntanlegum kaupendum á að kynna sér vel ástand fasteigna við skoðun og fyrir tilboðsgerð og ef þurfa þykir að leita til sérfræðinga um nánari ástandsskoðun.
Ár
Fasteignamat
Kaupverð
Stærð
Fermetraverð
8. des. 2017
16.550.000 kr.
24.000.000 kr.
99 m²
242.424 kr.
31. mar. 2016
15.350.000 kr.
16.800.000 kr.
99 m²
169.697 kr.
Byggt á upplýsingum úr Þjóðskrá Íslands frá 2006-2026