Löggiltir fasteignasalar innan Félags fasteignasala:
Kristján Baldursson
Guðbjörg G. Sveinbjörnsdóttir
Sólveig Regína Biard
Kristín María Stefánsdóttir
Viktoría Rannveig Larsen
Aðalsteinn Jón Bergdal
Hallgrímur Óli Hólmsteinsson
Vista
svg

1621

svg

1478  Skoðendur

svg

Skráð  4. mar. 2025

fjölbýlishús

Arkarvogur 8

104 Reykjavík

96.900.000 kr.

783.981 þ.kr./m2
Fasteignanúmer

F2511100

Fasteignamat

89.150.000 kr.

Brunabótamat

77.100.000 kr.

Áhvílandi

0 kr.

Arion banki – Reikna lán
Upplýsingar
Verðsaga
svg
Byggt 2022
svg
123,6 m²
svg
4 herb.
svg
1 baðherb.
svg
3 svefnh.
svg
Þvottahús
svg
Sameiginl. inngangur
svg
Bílastæði
svg
Lyfta

Lýsing

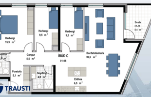
Trausti fasteignasala og ÞG Verk kynna með stolti: Nýja og glæsilega 4ra herbergja útsýnisíbúð á 1. hæð við Arkarvog 8 í Vogabyggð, 104 Reykjavík. Óhindrað útsýni yfir sámbátahöfnina og út á sundin. Bílastæði fylgir eigninni og er í rúmgóðum bílakjallara og er innangengt úr bílakjallara í lyftu- og stigahús. Þvottahús er innan íbúðar.  Séreignageymsla í kjallara.  Afhending er við kaupsamning.

Eignin er skráð skv. Þjóðskrá Íslands alls 123,6fm. og þar af er geymsla 9fm. Bílastæði í bílakjallara er ekki inn í fermetratölu eignarinnar.  

Sýnum samdægus, bókið skoðun hjá: Guðbjörgu G. Sveinbjörnsdóttur, lögg. fasteignasali í síma 899-5949 eða á netfanginu gudbjorg@trausti.is

                                                                  Aðalsteinn Jón Bergdal, lögg. fasteignasali í síma 767-0777 eða á netfanginu alli@trausti.is

Nánari lýsing: Íbúðin skiptist í anddyri/forstofu, eldhús opið við alrými/stofu, 3 svefnherbergi, stofu, baðherbergi og þvottahús innan íbúðar. Útgengt er út á svalir úr stofu. 

Dýrahald er leyfilegt í Arkarvogi 2-8 samkvæmt eignaskiptasamningi.

Allar nánari upplýsingar á heimasíðu verkefnisins: smelltu hér til að fara á heimasíðu ÞG-Verk

Ath. Myndir í auglýsingum eru sumar úr sambærilegri sýningaríbúð til þess að átta sig á innréttingum.

Vogabyggð er skjólsæl perla á höfuðborgarsvæðinu í nálægð við hafið og náttúruna. Frábær kostur fyrir þá sem kjósa að búa í umhverfi sem býður bæði upp á borgarbrag og í senn sterka tengingu við náttúruna. Hjóla- og göngustígar liggja meðfram ströndinni sem og upp í Elliðaárdal. Þá er Laugardalurinn innan seilingar.

ÞG Verk hafa yfir 25 ára reynslu á byggingarmarkaði. Fyrirtækið leggur áherslu á vandaðar íbúðir, góða þjónustu og skil íbúða á réttum tíma. Áreiðanleiki, gæði og notagildi eru einkunnarorð ÞG verks og fyrirtækið kappkostar að eiga gott samstarf við viðskiptavini sína. 

ALLAR NÁNARI UPPLÝSINGAR VEITA:
Guðbjörg G. Sveinbjörnsdóttir lgfs. í s: 899-5949 / gudbjorg@trausti.is og Aðalsteinn Jón Bergdla lgfs. í s: 767-0777 / alli@trausti.is


Húsið er steinsteypt og útveggir einangraðir að utan, klæddir með báru-álklæðningum eða sléttum-álklæðningum sem tryggir lágmarks viðhald húsanna. Gluggar eru ál/tré kerfi og glerjaðir með K-gleri. Innveggir aðrir en steyptir eru úr hleðslusteini.

Innréttingar: Í eldhúsum og baðherbergjum eru frá þýska framleiðandanum Nobilia og fataskápar frá GKS smíðaverkstæði. Eldhúsinnréttingar eru mismunandi útfærðar eftir íbúðum. Lýsing undir efri skápum í eldhúsum. Speglaskápar eru á aðalbaðherbergjum. 

Eldhústæki: Íbúðunum fylgja eldhústæki af gerðinni AEG. Íbúðum er skilað með span helluborði, innbyggðum kæliskáp, innbyggðri uppþvottavél, blástursofni og viftu eða lofthengdum eyjuháfi þar sem það á við.

Hreinlætistæki: Salernisskál er vegghengd með innbyggðum vatnskassa. Sturtur eru með flísalögðum botni og hertu sturtugleri. Hreinlætistæki eru frá Grohe, hitastýrð eða einnar handar. Þvottahús eru ýmist innan baðherbergja eða í sér rými.

Kaupandi greiðir skipulagsgjald sem nemur 0,3% af brunabótamati þegar það er lagt á.

Heimild seljanda til að breyta eignaskiptasamning sé þess þörf án þess þó að rýra eignarrétt kaupanda. Innréttingateikningar eru þær sem gilda ef misræmi er milli arkitektateikninga og innréttingateikninga og eru þær áritaðar og hluti samningsins.

Eignin afhendist skv nánari skilalýsingu. 

Forsendur söluyfirlits: 
Söluyfirlit er samið af fasteignasala í samræmi við ákvæði laga nr. 70/2015. Þær upplýsingar sem fram koma í söluyfirliti þessu eru sóttar í opinberar skrár, til seljanda sjálfs og eftir atvikum til húsfélags. Seljandi veitir upplýsingar um eign í samræmi við upplýsingaskyldu laga um fasteignakaup nr. 40/2002. Fasteignasali sannreynir að þær upplýsingar séu réttar með sjónskoðun á eigninni. Fasteignasali getur ekki fullyrt um ástand og eiginleika þeirra hluta fasteigna sem ekki eru aðgengilegir og sjást ekki berum augum, t.d. lagnir, dren, skólp og þak. 

Skoðunarskylda: 
Í lögum um fasteignakaup nr. 40/2002 er kveðið á um ríka skoðunarskyldu kaupenda á fasteignum. Vill Trausti fasteignasala því benda væntanlegum kaupendum á að kynna sér vel ástand fasteigna fyrir kauptilboðsgerð og leita til þar til bærra sérfræðinga um nánari skoðun ef þurfa þykir.

Gjöld sem kaupandi þarf að standa straum af vegna kaupanna:
1. Stimpilgjald af kaupsamningi, fyrstu kaup (0,4%), almenn kaup (0,8%), lögaðilar (1,6%) af heildarfasteignamati.
2. Þinglýsingargjald af kaupsamningi, veðskuldabréfi, mögulegu veðleyfi o.fl. - kr. 2.700 af hverju skjali.
3. Lántökugjald lánastofnunar er skv. verðskrá viðkomandi lánastofnunar. Nánari upplýsingar á t.d. heimasíðu lánastofnana.
4. Umsýslugjald til fasteignasölu skv. kauptilboði.

img
Guðbjörg G. Sveinbjörnsdóttir
Lögg.fasteignasali innan félags fasteignasala
Trausti fasteignasala
Vegmúla 4, 108 Reykjavík
Trausti fasteignasala

Trausti fasteignasala

Vegmúla 4, 108 Reykjavík
phone
img

Guðbjörg G. Sveinbjörnsdóttir

Vegmúla 4, 108 Reykjavík
Ár
Fasteignamat
Kaupverð
Stærð
Fermetraverð
30. sep. 2025
89.150.000 kr.
95.000.000 kr.
30108 m²
3.155 kr.
Byggt á upplýsingum úr Þjóðskrá Íslands frá 2006-2026
Trausti fasteignasala

Trausti fasteignasala

Vegmúla 4, 108 Reykjavík
phone

Guðbjörg G. Sveinbjörnsdóttir

Vegmúla 4, 108 Reykjavík