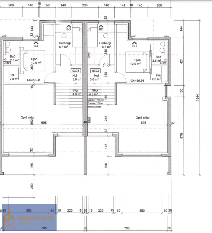
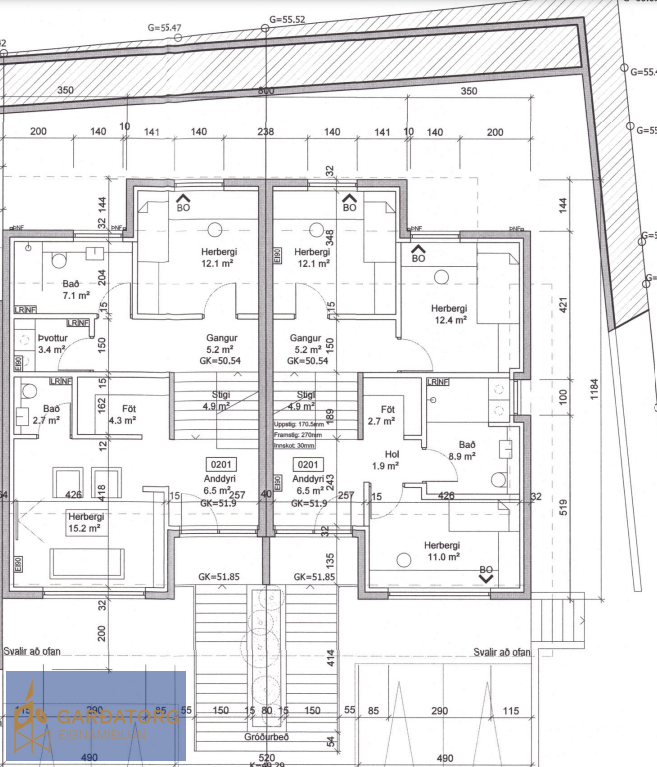
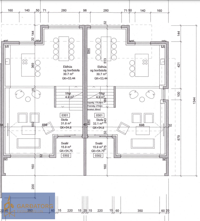
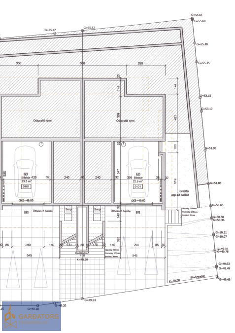
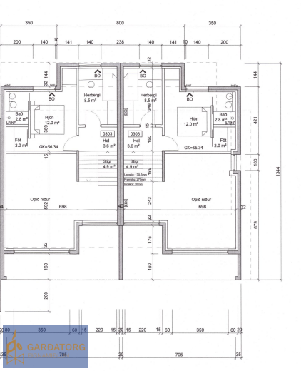
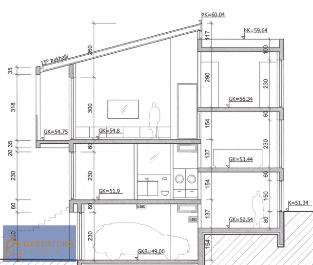
Keldugata, 210 Garðabær