Upplýsingar
Byggt 2023
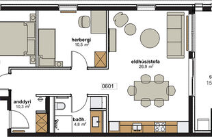
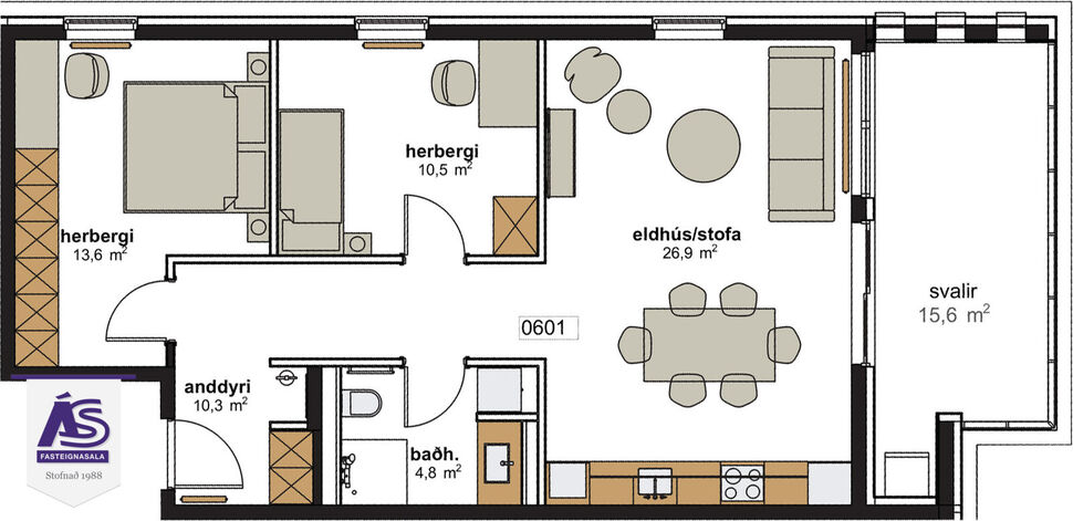
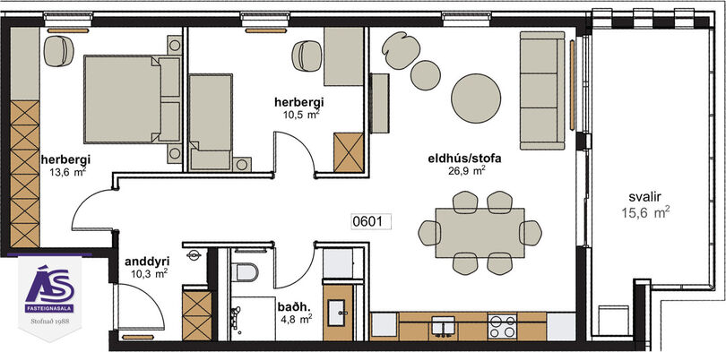
80,6 m²
3 herb.
2 svefnh.
Bílastæði
Lyfta
Opið hús: 18. mars 2026
kl. 17:30
til 18:00
Opið hús við Hringhamar 13-19 á miðvikudaginn þann 18. mars frá kl. 17:30 til 18:00. Allir velkomnir!
Lýsing
Glæsilegar 2ja, 3ja og 4ra herbergja íbúðir, flestar með sér stæði í lokaðri bílageymslu í nýju fimm hæða lyftufjölbýli við Hringhamar 13-15 í Hamranesinu, Hafnarfirði.
Íbúðirnar skilast fullbúnar án megingólfefna. Baðherbergi og þvottahús verða flísalögð.
Stærðir: 58,2 - 135,0 fm
Herbergi: 2ja, 3ja og 4ra herbergja
Afhending: Nóvember 2024
Smelltu hér til að skoða sölusíðu íbúðanna
Hefðbundin hjóla- og vagnageymsla í kjallara.
- Innréttingar frá Axis.
- Eldhústæki að gerðinni AEG eða sambærilegt frá Bræðrunum Ormsson
- Flísar frá Parka
- Geymslur fylgja öllum íbúðum.
- Sér stæði í bílageymslu flestum íbúðum.
- Útveggir staðsteyptir, húsið einangrað að utan og klætt með álklæðningu fyrir utan kalda veggi sem verða pússaðir og málaðir í ljósum lit.
- Timbur-álgluggakerfi frá Byko
Hamranesið er nýtt og glæsilegt hverfi þar sem stutt er í alla helstu þjónstu, s.s. verslanir, grunn- og leikskóla, útibú tónlistarskóla Hafnarfjarðar, íþróttasvæði Hauka, sundlaugar, líkamsræktarstöðvar, apótek og falleg útivistarsvæði.
Byggingaraðili er traustur verktaki til fjölda ára: MótX
Bókið skoðun og fáið nánari upplýsingar hjá sölumönnum Ás fasteignasölu:
Stefán Rafn Sigurmannsson löggiltur fasteignasali s. 655-7000 / stefan@as.is
Arnór Daði Eiríksson aðsoðarmaður fasteignasala s. 777-0939 / arnor@as.is
Svala Haraldsdóttir löggiltur fasteignasali s. 820-9699 / svala@as.is
Aron Freyr Eiríksson löggiltur fasteignasali s. 772-7376 / aron@as.is
Eiríkur Svanur Sigfússon löggiltur fasteignasali í s. 862-3377 / eirikur@as.is
Frábær staðsetning þar sem stutt er í helstu þjónustu og falleg útivistarsvæði.
Ás fasteignasala er rótgróið fyrirtæki sem hefur veitt alla almenna þjónustu í fasteignaviðskiptum frá árinu 1988.
www.facebook.com/asfasteignasala
www.instagram.com/as_fasteignasala
www.as.is
Íbúðirnar skilast fullbúnar án megingólfefna. Baðherbergi og þvottahús verða flísalögð.
Stærðir: 58,2 - 135,0 fm
Herbergi: 2ja, 3ja og 4ra herbergja
Afhending: Nóvember 2024
Smelltu hér til að skoða sölusíðu íbúðanna
Hefðbundin hjóla- og vagnageymsla í kjallara.
- Innréttingar frá Axis.
- Eldhústæki að gerðinni AEG eða sambærilegt frá Bræðrunum Ormsson
- Flísar frá Parka
- Geymslur fylgja öllum íbúðum.
- Sér stæði í bílageymslu flestum íbúðum.
- Útveggir staðsteyptir, húsið einangrað að utan og klætt með álklæðningu fyrir utan kalda veggi sem verða pússaðir og málaðir í ljósum lit.
- Timbur-álgluggakerfi frá Byko
Hamranesið er nýtt og glæsilegt hverfi þar sem stutt er í alla helstu þjónstu, s.s. verslanir, grunn- og leikskóla, útibú tónlistarskóla Hafnarfjarðar, íþróttasvæði Hauka, sundlaugar, líkamsræktarstöðvar, apótek og falleg útivistarsvæði.
Byggingaraðili er traustur verktaki til fjölda ára: MótX
Bókið skoðun og fáið nánari upplýsingar hjá sölumönnum Ás fasteignasölu:
Stefán Rafn Sigurmannsson löggiltur fasteignasali s. 655-7000 / stefan@as.is
Arnór Daði Eiríksson aðsoðarmaður fasteignasala s. 777-0939 / arnor@as.is
Svala Haraldsdóttir löggiltur fasteignasali s. 820-9699 / svala@as.is
Aron Freyr Eiríksson löggiltur fasteignasali s. 772-7376 / aron@as.is
Eiríkur Svanur Sigfússon löggiltur fasteignasali í s. 862-3377 / eirikur@as.is
Frábær staðsetning þar sem stutt er í helstu þjónustu og falleg útivistarsvæði.
Ás fasteignasala er rótgróið fyrirtæki sem hefur veitt alla almenna þjónustu í fasteignaviðskiptum frá árinu 1988.
www.facebook.com/asfasteignasala
www.instagram.com/as_fasteignasala
www.as.is