Löggiltir fasteignasalar innan Félags fasteignasala:
Hannes Steindórsson
Bogi Molby Pétursson
Guðrún Antonsdóttir
Heimir Hallgrímsson
Hrafnkell P. H. Pálmason
Viðar Marinósson
Elías Haraldsson
Kristján Þórir Hauksson
Albert Bjarni Úlfarsson
Ragnar Þorsteinsson
Þórey Ólafsdóttir
Andri Freyr Halldórsson
Vista
svg

3317

svg

2667  Skoðendur

svg

Skráð  18. jún. 2025

fjölbýlishús

Andarhvarf 7

203 Kópavogur

139.500.000 kr.

753.240 þ.kr./m2
Fasteignanúmer

F2292239

Fasteignamat

105.050.000 kr.

Brunabótamat

92.830.000 kr.

Áhvílandi

0 kr.

Arion banki – Reikna lán
Upplýsingar
Verðsaga
svg
Byggt 2011
svg
185,2 m²
svg
5 herb.
svg
2 baðherb.
svg
4 svefnh.
svg
Þvottahús
svg
Bílskúr
svg
Útsýni
svg
Sérinngangur

Lýsing





****EIGNIN ER SELD MEÐ FYRIRVARA****





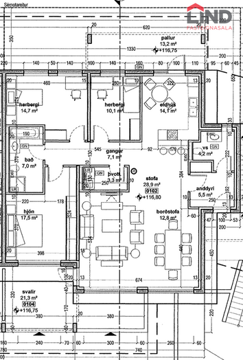
Hér er á ferðinni vel skipulögð, björt og rúmgóð eign á frábærum stað í Vatnsendahverfi Kópavogs.
Eignin er með aukinni lofthæð, stórum svölum með útsýni yfir Elliðavatn og 55fm verönd með útgengi úr eldhúsi.   
Eigninni fylgir 28,0 fm bílskúr með geymslu.

Góð fjarlægð er í nærliggjandi hús og því óhindrað útsýni og náttúru til beggja átta.
Staðsetningin er mjög góð þar sem stutt er í skóla, verslun, íþróttasvæði og samgöngur.

Nánari upplýsingar og bóka skoðun:
Hrafnkell P. H. Pálmason Löggiltur fasteignasali / 690 8236 / hrafnkell@fastlind.is

Fyrirhugað fasteignamat 2026 er kr. 114.700.000-.


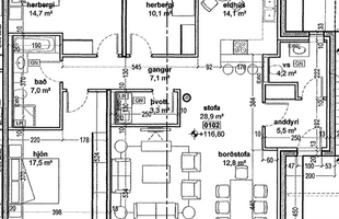
Nánari lýsing eignar:
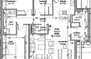
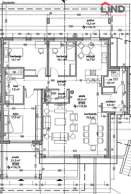
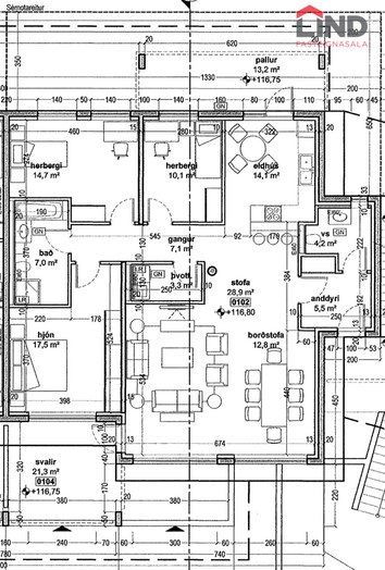
Anddyrið er rúmgótt með flísum á gólfi, innfelldum fataskáp, opnu fatahengi, fallegri stálsmíðaðri rennihurð og sérsmíðuðum bekk.
 
Gestasnyrtingin er inn af anddyrinu með flísum á gólfi, upphengdu salerni, sturtu og glugga með opnanlegu fagi.
Stofan og borðstofan mynda opið og bjart alrými með parket á gólfi og einstöku útsýni. Útgengt á svalirnar sem einnig skarta fallegu útsýni til norðausturs.
Eldhúsið er mjög rúmgott með góðum eldhúskrók, niðurteknu lofti og útgengi á veröndina að aftan. 
Falleg sérsmíðuð innrétting með miklu skápaplássi og vinnurými, tveir innbyggðir Siemens bakaraofnar í góðri vinnuhæð, Bora span helluborð með innbyggðri viftu, innbyggður kæliskápur og uppþvottavél. 
Parket á gólfi og Kvarts steinn frá Granítsmiðjunni á borðum.
Baðherbergið er flísalagt í hólf og gólf með fallegri innréttingu. Kvarts steinn frá Granítsmiðjunni á borðum, innfelld lýsing, speglaskápur, innbyggður handklæðaofn, upphengt salerni og rúmgóð walk-in sturta.

Svefnherbergi I er rúmgott með parket á gólfi, stórum innfelldum fataskápum og stálsmíðaðri rennihurð. Gluggi til norðausturs.
Svefnherbergi II er með parket á gólfi og opnum fataskáp. Gluggi til suðvesturs.
Svefnherbergi III er með parket á gólfi og fataskáp. Gluggi til suðvesturs.
Svefnherbergi IV er með parket á gólfi og glugga til suðvesturs.
Þvottahúsið er með flísum á gólfi, hillum og rými fyrir þvottavél og þurrkara.
Bílskúrinn er 28,0 fm. og er snyrtilegur með epoxy málningu á gólfi, hurðaopnara og vask.
Geymsla 9,3 fm. er í enda bílskúrsins.
Svalirnar 21,3 fm. skv. FMR og eru með skyggni yfir og snúa til norðausturs með fallegu útsýni.
Verönd/pallur um 55 fm. (14,0 fm. skv. teikningu) og snýr til suðvesturs með ósnortinni náttúru fyrir framan.

Birt stærð eignar er alls 185,2 og skiptist í íbúð 147,9 fm, bílskúr 28,0 fm. og geymsla 9,3 fm. skv. Þjóðskrá Íslands.
ATH að meðfylgjandi teikningar endurspegla ekki að fullu skipulag eignar í dag þar sem breyting var gerð við bað og herbergi. Eignin endurskipulögð 2020. Bætt við fjórða svefnherberginu á svefnherbergisganginum.


Nýleg glerlokun í stigauppgangi sem minnkar veður og snjó.
Ruslaskýli er smekklega frágengið þar sem byggt er yfir það og klætt að utan. Eign sem er í sérflokki á þessum fallega stað með útsýni yfir Bláfjöll, Elliðavatn og nágrenni.
Ekki verður byggt á reitnum fyrir aftan húsið.
Stutt er í upplýstar gönguleiðir og alla helstu þjónustu.
Sjón er sögu ríkari!


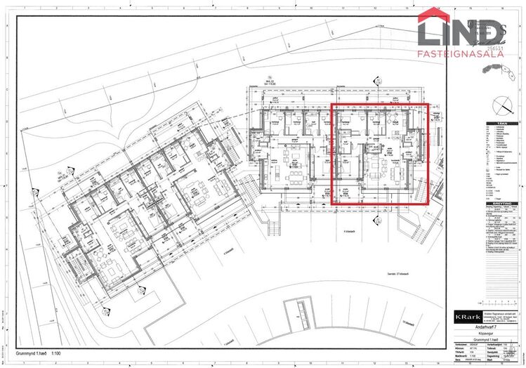
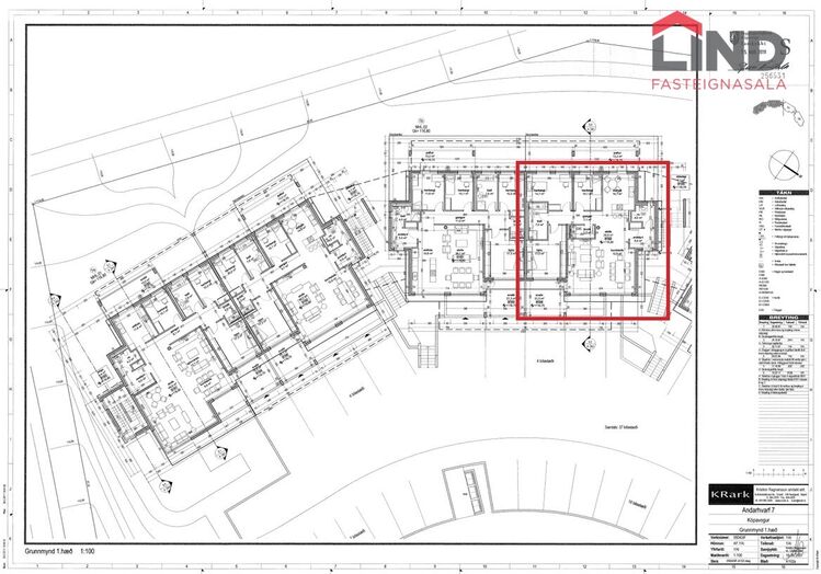
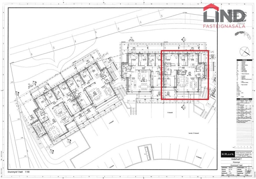
Andarhvarf 7B samanstendur af 4 íbúðum og 4 bílskúrum. Tvær íbúðir á hæð.
Tilheyrir heildarhúsinu Andarhvarf 7A - 7D þá 4 matshlutum á lóð. Bílastæði fyrir framan hvern bílskúr.
Hlutfallstala í húsi 24,84% og lóð og heildarhúsi 5,97%.

Andarhvarf 7, 203 Kópavogur, nánar tiltekið eign merkt 01-02, fastanúmer 229-2239 ásamt öllu því sem eigninni fylgir, þar með talið tilheyrandi lóðar og sameignarréttindi.
Eignin Andarhvarf 7 er skráð sem hér segir hjá FMR: Eign 229-2239, birt stærð 185.2 fm.

Nánari upplýsingar veitir Hrafnkell P. H. Pálmason Löggiltur fasteignasali, í síma 690 8236, tölvupóstur hrafnkell@fastlind.is.

-----------------------------------------------------------------------
Gjöld sem kaupandi þarf að standa straum af vegna kaupanna: 
1. Stimpilgjald af kaupsamningi - 0.8% af heildarfasteignamati / 1.6% fyrir lögaðila 
    Fyrstu kaup - 0,4% af heildarfasteignamati
2. Þinglýsingagjald af kaupsamningi, veðskuldabréfi, veðleyfi o.fl.- kr. 2.700 af hverju skjali.
3. Lántökugjald lánastofnunar
4. Umsýsluþóknun til fasteignasölu, sbr.kauptilboð.

img
Hrafnkell P. H. Pálmason
Lögg.fasteignasali innan félags fasteignasala
Lind fasteignasala ehf.
Bæjarlind 4, 201 Kópavogur
Lind fasteignasala ehf.

Lind fasteignasala ehf.

Bæjarlind 4, 201 Kópavogur
phone
img

Hrafnkell P. H. Pálmason

Bæjarlind 4, 201 Kópavogur
Ár
Fasteignamat
Kaupverð
Stærð
Fermetraverð
10. jún. 2011
15.300.000 kr.
28.900.000 kr.
185.2 m²
156.048 kr.
Byggt á upplýsingum úr Þjóðskrá Íslands frá 2006-2026
Lind fasteignasala ehf.

Lind fasteignasala ehf.

Bæjarlind 4, 201 Kópavogur
phone

Hrafnkell P. H. Pálmason

Bæjarlind 4, 201 Kópavogur