Upplýsingar
Byggt 2025
83,1 m²
3 herb.
1 baðherb.
2 svefnh.
Þvottahús
Útsýni
Sameiginl. inngangur
Hjólastólaaðgengi
Bílastæði
Lyfta
Lýsing
Háborg fasteignasala og Bestla byggingarfélag kynna: Garðabraut 1 Akranesi – í nýju og glæsilegu íbúðarhverfi. Húsið er lyftuhús með bílageymslu.
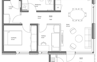
Íbúð 409 – Þriggja herbergja íbúð á 4.hæð, staðsett í nýju og glæsilegu íbúðarhverfi. Að stærð 83,1 fm þar af er geymsla 14,7 fm, eigninni fylgir einnig stæði í bílakjallara. Íbúðin skipar forstofu, hol, hjónaherbergi, baðherbergi með aðstöðu fyrir þvottavél/þurrkara, auka barnaherbergi og alrými opið með eldhúsi hannað í L, borðstofu og stofu. Útgengt út á svalir úr stofu að stærð 6,8 fm ásamt auka geymslu á svölum 0,9 fm.
Íbúðin skilast fullbúin án megin gólfefna, nema í votrými eru flísar. Áætluð afhending í september 2025.
Helstu kostir íbúðar.
Heimasíða Garðabraut 1
Allar upplýsingar um eignina veita: Katla Hanna Steed löggiltur fasteignasali í síma 822 1661 eða katla@haborg.is, Jórunn Skúladóttir löggiltur fasteignasali í síma 845 8958 eða jorunn@haborg.is, Þórunn Pálsdóttir löggiltur fasteignasali í síma 773 6000 eða thorunn@haborg.is og Kristín Rós Magnadóttir löggiltur fasteignasali í síma 860-2078 eða kristin@haborg.is.
Almennt Fjölbýlishúsið að Garðabraut er staðsett í nýju og glæsilegu íbúðarhverfi á Akranesi. Tvö stigahús eru í byggingunni, hvort með lyftu og kjallara. Byggingin er 4 og 7 hæðir með samtals 50 íbúðum af mismunandi stærðum – tveggja, þriggja og fjögurra herbergja. Í kjallara er bílageymsla með merktum stæðum fyrir flestar íbúðir. Aðgengi að sérgeymslum, hjóla- og vagnageymslu, ásamt tæknirýmum. Aðalinngangur hússins er á 1. hæð. Flestar íbúðir eru með aukinni lofthæð og allar með svölum eða sérafnotareit. Úr mörgum íbúðum er fallegt útsýni og þakíbúðir bjóða upp á stórar þaksvalir með möguleika á rafmagnspotti. Flestum íbúðum fylgir stæði í bílakjallara og stærri íbúðum fylgja tvö stæði.
Á Lóð eru hellulögð svæði og hitalagnir í gönguleiðum og bílastæðum fyrir hreyfihamlaða. Undirbúið er fyrir rafhleðslustöðvar og djúpgámar eru staðsettir á lóðinni.
Eldhús eru með innréttingum frá GKS/Nobilia í ljósgráum lit. Efri skápar eru vegghengdir með LED-lýsingu undir. Borðplötur eru úr HPL. Eldhústæki frá AEG fylgja – spanhelluborð og bakarofn með innbyggðum hitamæli. Gufugleypir er annaðhvort innbyggður í efri skáp eða sem eyju-/veggháfur frá Airforce/Elica. Gert er ráð fyrir innbyggðum kæli, frysti og uppþvottavél og fylgja hurðaforstykki í stíl. Blöndunartæki frá Grohe eru hitastýrð og vaskur úr stáli er límdur ofan á borðplötuna.
Baðherbergi eru flísalögð, gólf eru flísalögð með 60x60 cm flísum og hluti veggja flísalagður upp í loft. Innréttingar eru í ljósgráum lit með slitsterkri HPL borðplötu og hvítum vaski. Grohe blöndunartæki eru hitastýrð og sturtan afmörkuð með gleri. Salerni er vegghengt með innbyggðum vatnskassa.
Þvottahús Í sumum íbúðum er sér þvottaaðstaða, annars er hún inn af baðherbergi. Tengi eru fyrir þvottavél og barkalausan þurrkara með rakaþétti. Gólf er flísalagt.
Hita- og loftræstikerfi. Íbúðir og sameign eru hitaðar með ofnakerfi samkvæmt teikningum. Allar íbúðir eru með loftræstikerfi með varmaendurvinnslu, þar sem loft er sogið úr eldhúsi og baðherbergi og ferskt loft dælt inn í önnur rými. Kerfið endurvinnur allt að 85% varma og síar loftið, sem dregur úr svifryki og frjókornum. Loftræstisamstæður eru staðsettar á svölum.
Allar nánari upplýsingar veita Katla Hanna Steed löggiltur fasteignasali í síma 822 1661 eða katla@haborg.is, Jórunn Skúladóttir löggiltur fasteignasali í síma 845 8958 eða jorunn@haborg.is og Þórunn Pálsdóttir löggiltur fasteignasali í síma 773 6000 eða thorunn@haborg.is og Kristín Rós Magnadóttir löggiltur fasteignasali í síma 860-2078 eða kristin@haborg.is.
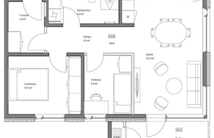
Íbúð 409 – Þriggja herbergja íbúð á 4.hæð, staðsett í nýju og glæsilegu íbúðarhverfi. Að stærð 83,1 fm þar af er geymsla 14,7 fm, eigninni fylgir einnig stæði í bílakjallara. Íbúðin skipar forstofu, hol, hjónaherbergi, baðherbergi með aðstöðu fyrir þvottavél/þurrkara, auka barnaherbergi og alrými opið með eldhúsi hannað í L, borðstofu og stofu. Útgengt út á svalir úr stofu að stærð 6,8 fm ásamt auka geymslu á svölum 0,9 fm.
Íbúðin skilast fullbúin án megin gólfefna, nema í votrými eru flísar. Áætluð afhending í september 2025.
Helstu kostir íbúðar.
- Aukin lofthæð
- Svalir
- Innrétting í eldhúsi frá GKS/Nobilia
- Eldhúsið með HPL borðplötu og tækjum frá AEG.
- Votrými flísalögð
- Birtugæði og loftgæði
- Nýtt glæsilegt íbúðarhverfi
- Vandaður verktaki
Heimasíða Garðabraut 1
Allar upplýsingar um eignina veita: Katla Hanna Steed löggiltur fasteignasali í síma 822 1661 eða katla@haborg.is, Jórunn Skúladóttir löggiltur fasteignasali í síma 845 8958 eða jorunn@haborg.is, Þórunn Pálsdóttir löggiltur fasteignasali í síma 773 6000 eða thorunn@haborg.is og Kristín Rós Magnadóttir löggiltur fasteignasali í síma 860-2078 eða kristin@haborg.is.
Almennt Fjölbýlishúsið að Garðabraut er staðsett í nýju og glæsilegu íbúðarhverfi á Akranesi. Tvö stigahús eru í byggingunni, hvort með lyftu og kjallara. Byggingin er 4 og 7 hæðir með samtals 50 íbúðum af mismunandi stærðum – tveggja, þriggja og fjögurra herbergja. Í kjallara er bílageymsla með merktum stæðum fyrir flestar íbúðir. Aðgengi að sérgeymslum, hjóla- og vagnageymslu, ásamt tæknirýmum. Aðalinngangur hússins er á 1. hæð. Flestar íbúðir eru með aukinni lofthæð og allar með svölum eða sérafnotareit. Úr mörgum íbúðum er fallegt útsýni og þakíbúðir bjóða upp á stórar þaksvalir með möguleika á rafmagnspotti. Flestum íbúðum fylgir stæði í bílakjallara og stærri íbúðum fylgja tvö stæði.
Á Lóð eru hellulögð svæði og hitalagnir í gönguleiðum og bílastæðum fyrir hreyfihamlaða. Undirbúið er fyrir rafhleðslustöðvar og djúpgámar eru staðsettir á lóðinni.
Eldhús eru með innréttingum frá GKS/Nobilia í ljósgráum lit. Efri skápar eru vegghengdir með LED-lýsingu undir. Borðplötur eru úr HPL. Eldhústæki frá AEG fylgja – spanhelluborð og bakarofn með innbyggðum hitamæli. Gufugleypir er annaðhvort innbyggður í efri skáp eða sem eyju-/veggháfur frá Airforce/Elica. Gert er ráð fyrir innbyggðum kæli, frysti og uppþvottavél og fylgja hurðaforstykki í stíl. Blöndunartæki frá Grohe eru hitastýrð og vaskur úr stáli er límdur ofan á borðplötuna.
Baðherbergi eru flísalögð, gólf eru flísalögð með 60x60 cm flísum og hluti veggja flísalagður upp í loft. Innréttingar eru í ljósgráum lit með slitsterkri HPL borðplötu og hvítum vaski. Grohe blöndunartæki eru hitastýrð og sturtan afmörkuð með gleri. Salerni er vegghengt með innbyggðum vatnskassa.
Þvottahús Í sumum íbúðum er sér þvottaaðstaða, annars er hún inn af baðherbergi. Tengi eru fyrir þvottavél og barkalausan þurrkara með rakaþétti. Gólf er flísalagt.
Hita- og loftræstikerfi. Íbúðir og sameign eru hitaðar með ofnakerfi samkvæmt teikningum. Allar íbúðir eru með loftræstikerfi með varmaendurvinnslu, þar sem loft er sogið úr eldhúsi og baðherbergi og ferskt loft dælt inn í önnur rými. Kerfið endurvinnur allt að 85% varma og síar loftið, sem dregur úr svifryki og frjókornum. Loftræstisamstæður eru staðsettar á svölum.
Allar nánari upplýsingar veita Katla Hanna Steed löggiltur fasteignasali í síma 822 1661 eða katla@haborg.is, Jórunn Skúladóttir löggiltur fasteignasali í síma 845 8958 eða jorunn@haborg.is og Þórunn Pálsdóttir löggiltur fasteignasali í síma 773 6000 eða thorunn@haborg.is og Kristín Rós Magnadóttir löggiltur fasteignasali í síma 860-2078 eða kristin@haborg.is.