Löggiltir fasteignasalar innan Félags fasteignasala:
Guðlaugur H Guðlaugsson
Halldór Magnússon
Vista
svg

274

svg

245  Skoðendur

svg

Skráð  7. nóv. 2025

fjölbýlishús

Pósthússtræti 9, 104

230 Reykjanesbær

71.900.000 kr.

814.270 þ.kr./m2
Fasteignanúmer

F2537225

Fasteignamat

3.710.000 kr.

Brunabótamat

0 kr.

Áhvílandi

0 kr.

Arion banki – Reikna lán
Upplýsingar
svg
88,3 m²
svg
3 herb.
svg
1 baðherb.
svg
2 svefnh.
svg
Þvottahús
svg
Sameiginl. inngangur
svg
Lyfta

Lýsing

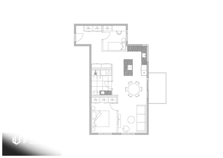
Stuðlaberg fasteignasala kynnir glæsilegar íbúðir við sjávarsíðuna í Reykjanesbæ að Pósthússtræti 9. Um er að ræða íbúðir sem mikið er lagt í er horft er til gæða íbúða í nýbyggingum í dag og má þar m.a nefna aukin lofthæð, þrefalt gler, loftskipti kerfi, sérstaklega vönduð sameign og stæði í bílakjallara fyrir hluta íbúða. Eigninar afhendast fullbúnar án megin gólfefna en flísar eru frá Parka í votrýmum. Virkilega vandaðar sérsmíðaðar innréttingar frá Parka með Mistery White kvartsstein frá Granítsmiðjunni. Hágæða Siemens heimilstæki frá Smith og Norland, hluti íbúða hefur span helluborð með gufugleypi. Vönduð blöndunartæki frá Grohe og eru þau innbyggð á baðherbergjum. Gólfhiti með Danfoss stýringum. 

Eignin er þriggja herbergja íbúð á fyrstu hæð hússins (0104), birt stærð er 83,5m2. Eigninni fylgir geymsla (0005) birt stærð 4,8m2, ásamt svölum.

Nánari upplýsingar veita starfsmenn fasteignasölunnar í síma 420-4000 og eða á tölvupósti studlaberg@studlaberg.is

 

Stuðlaberg Fasteignasala

Stuðlaberg Fasteignasala

Hafnargata 20, 230 Keflavík
Stuðlaberg Fasteignasala

Stuðlaberg Fasteignasala

Hafnargata 20, 230 Keflavík