Löggiltir fasteignasalar innan Félags fasteignasala:
Guðrún Hulda Ólafsdóttir
Ólafía Ólafsdóttir
Vista
svg

328

svg

302  Skoðendur

svg

Skráð  2. sep. 2025

lóð

Hvannalundur 9

806 Selfoss

24.900.000 kr.

830.000 þ.kr./m2
Fasteignanúmer

F2209141

Fasteignamat

792.000 kr.

Brunabótamat

0 kr.

Áhvílandi

0 kr.

Arion banki – Reikna lán
Upplýsingar
Verðsaga
svg
30 m²
svg
0 herb.

Lýsing

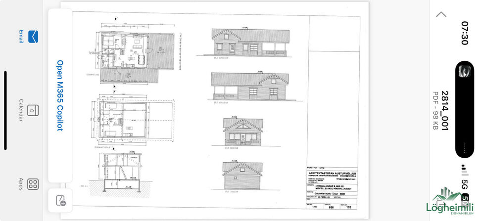
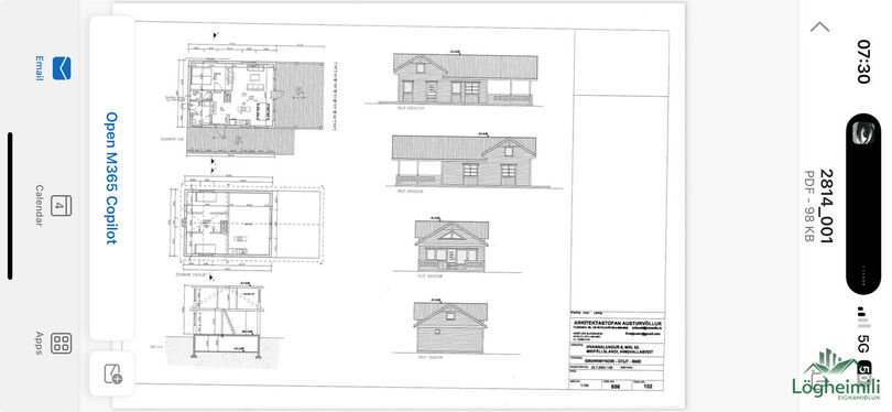
Glæsileg eignarlóð 2.215 fm við Þingvallavatn.  Lóðin stendur við Hvannalund 9 (Veiðilundur - lokað svæði) til sölu.  Steyptur kjallari ca 30 fm að sögn seljanda.  Pallurinn er um 215fm.  Rafmagn og rafmagnstafla komin.  Ledljós í kjallara.  Samþykktar teikningar fylgja.  Gólfhiti í plötunni sjá samþykktar teikningar.
Planið hefur verið malarfyllt, rotþró til samræmis við nýleg vatnsverndunarlög verið komið fyrir auk frárennslis  fyrir aukahús og heitum potti auk verandar í kring sbr. myndir.

Byggingarleyfi þarf almennt að endurnýja við eigendaskipti.  Allt tilbúið til að reisa hús á grunninum.


Allar nánari upplýsingar og skoðun:
Guðrún Hulda Ólafsdóttir lögmaður og löggiltur fasteignasali s 845 7445 


 

img
Guðrún Hulda Ólafsdóttir
Lögg.fasteignasali innan félags fasteignasala
Lögheimili Eignamiðlun ehf
Hlíðasmára 2. 201 Kópavogur og Skólabraut 26, 300 Akranes
Lögheimili Eignamiðlun ehf

Lögheimili Eignamiðlun ehf

Hlíðasmára 2. 201 Kópavogur og Skólabraut 26, 300 Akranes
img

Guðrún Hulda Ólafsdóttir

Hlíðasmára 2. 201 Kópavogur og Skólabraut 26, 300 Akranes
Ár
Fasteignamat
Kaupverð
Stærð
Fermetraverð
16. mar. 2022
11.050.000 kr.
18.000.000 kr.
38.3 m²
469.974 kr.
23. apr. 2012
4.875.000 kr.
2.250.000 kr.
38.3 m²
58.747 kr.
Byggt á upplýsingum úr Þjóðskrá Íslands frá 2006-2025
Lögheimili Eignamiðlun ehf

Lögheimili Eignamiðlun ehf

Hlíðasmára 2. 201 Kópavogur og Skólabraut 26, 300 Akranes

Guðrún Hulda Ólafsdóttir

Hlíðasmára 2. 201 Kópavogur og Skólabraut 26, 300 Akranes