Löggiltir fasteignasalar innan Félags fasteignasala:
Óskar Rúnar Harðarson
Jason Guðmundsson
Þröstur Þórhallsson
Ólafur Finnbogason
Kjartan Ísak Guðmundsson
Gústaf Adolf Björnsson
Viðar Böðvarsson
Rakel Viðarsdóttir
Vala Georgsdóttir
Ragnheiður Pétursdóttir
Böðvar Þ. Eggertsson
Vista
fjölbýlishús

Áshamar 56 (301)

221 Hafnarfjörður

72.500.000 kr.

792.350 þ.kr./m2
Fasteignanúmer

F2526714

Fasteignamat

2 kr.

Brunabótamat

1 kr.

Áhvílandi

0 kr.

Arion banki – Reikna lán
Upplýsingar
svg
Byggt 2025
svg
91,5 m²
svg
4 herb.
svg
1 baðherb.
svg
3 svefnh.
svg
Sameiginl. inngangur
svg
Lyfta

Lýsing

Miklaborg kynnir: Vel skipulagðar og bjartar 3ja til fimm herbergja íbúðir í þremur húsum á fallegum stað í Hamraneshverfinu í Hafnarfirði. Ný Ásvallabraut veitir greiða samgönguleið til og frá svæðinu. Hamraneshverfi er vel staðsett hverfi í mikilli uppbyggingu með skóla, leikskóla og falleg útivistarsvæði í í næsta nágrenni.

- Flestar íbúðir falla undir hlutdeildarlán HMS

- Fullbúnar íbúðir án megingólfefna

- Gólfhiti er í öllum íbúðum

- Áætluð afhending í september


Nánari upplýsingar veitir:

Ingimundur Ingimundarson löggiltur fasteignasali í síma 867-4540 eða ingimundur@miklaborg.is

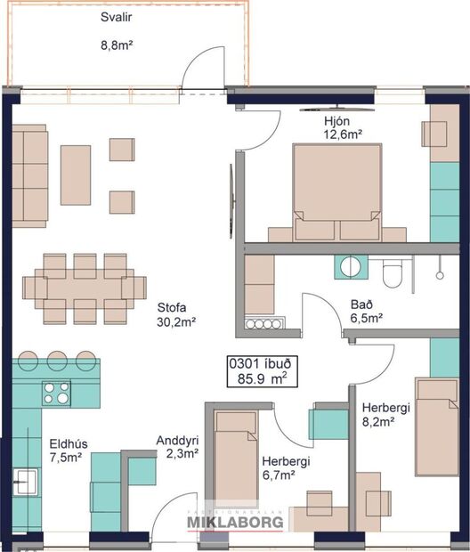
Íbúð 301 björt og vel skipulögð 91,5 fm, fjögurra herbergja íbúð á 3. hæð.

Nánari lýsing.

Eignin skiptist skiptist í anddyri með fataskáp. Þaðan er gengið inn í alrými. Eldhús með fallegri innréttingu frá AXIS og vönduðum tækjum frá AEG. Eldhús er opið inn í bjarta stofu með útgengi á svalir.

Hjónaherbergi með góðum fataskáp. Tvö góð barnaherbergi með skápum. Baðherbergi með flísum á gólfi veggjum að hluta, sturtu, fallegri innréttingu og góðri þvottaaðstöðu.

Gólfhiti er í öllum íbúðum.

Nánari upplýsingar má finna á heimasíðunni

GG verk var stofnað árið 2006 og er í dag eitt af stærstu byggingafyrirtækjum á íslandi og hafa byggt yfir 1500 íbúðir og atvinnurými. GG verk hefur það að markmiði að byggja vandað íbúðarhúsnæði af framúrskarandi fagmennsku.

Nánari upplýsingar veita:

Ingimundur Ingimundarson löggiltur fasteignasali í síma 867-4540 eða ingimundur@miklaborg.is

Steinn Andri Viðarsson löggiltur fasteignasli í síma 775-1477 eða steinn@miklaborg.is

Stefán Jóhann Stefánsson löggiltur fasteignasali í síma 659-2634 eða stefan@miklaborg.is

Jón Rafn Valdimarsson löggiltur fasteignasali í síma 695-5520 eða jon@miklaborg.is

Óskar Sæmann Axelsson löggiltur fasteignasali í síma 691-2312 eða osa@miklaborg.is

Ólafur Finnbogason löggiltur fasteignasali í síma 823-2307 eða olafur@miklaborg.is

Miklaborg fasteignasala

Miklaborg fasteignasala

Lágmúli 4, 108 Reykjavík
Miklaborg fasteignasala

Miklaborg fasteignasala

Lágmúli 4, 108 Reykjavík