Upplýsingar
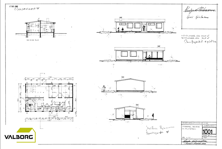
Byggt 1969
158,8 m²
4 herb.
2 baðherb.
3 svefnh.
Þvottahús
Bílskúr
Sérinngangur
Lýsing
VALBORG fasteignasala kynnir í einkasölu Dynskóga 4, Hveragerði.
Fallegt einbýlishús með þremur svefnherbergjum og tveimur baðherbergjum á skjólgóðum stað stutt frá Hamrinum.
Garðurinn er virkilega fallegur verðlaunagarður, mjög skjólgóður með fjölda blóma og trjáa, heitur pottur og skjólgóð verönd.
Eignin er samtals 158,8 m² að stærð samkvæmt skráningu Þjóðskrár Íslands.
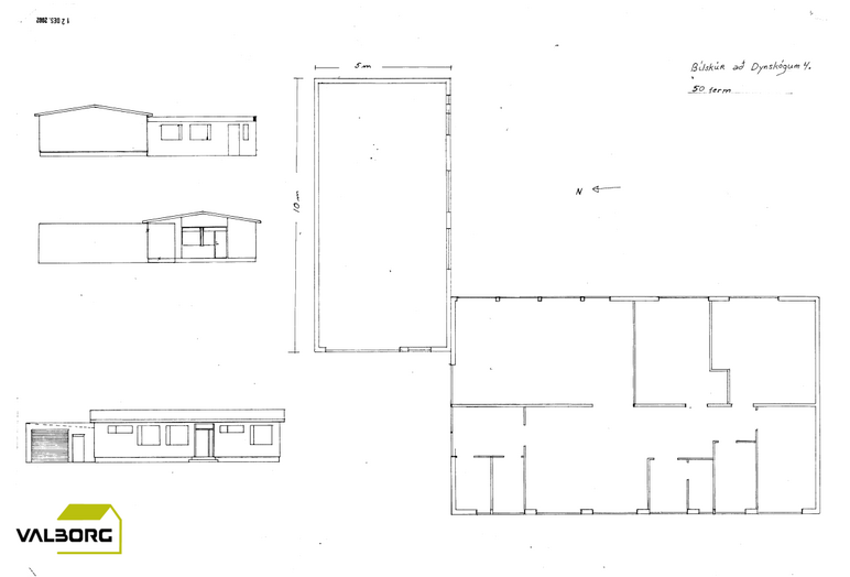
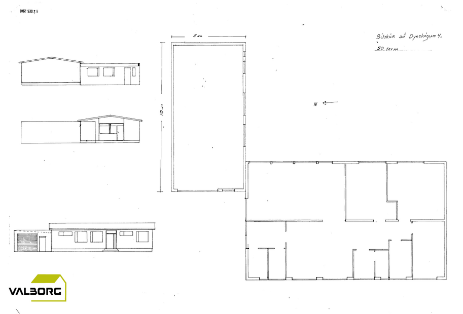
Þar af er íbúðin 108,8 m² og bílskúrinn 50,0 m².
Eignin telur forstofu, stofu, eldhús, þrjú svefnherbergi, tvö baðherbergi, geymslu, búr, þvottahús og bílskúr.
Þá er einnig geymsluskúr á lóðinni.
Nánari upplýsingar veita:
Elínborg María Ólafsdóttir, löggiltur fasteignasali, í síma 861-6866, tölvupóstur elinborg@valborgfs.is.
Gunnar Biering Agnarsson, löggiltur fasteignasali, í síma 823-3300, tölvupóstur gunnar@valborgfs.is.
Lýsing eignar:
Forstofa: komið er inn í forstofu með flísum á gólfi, þar er fatahengi.
Stofa: björt stofa með parketi á gólfi og útgengt frá henni út á baklóð. Lóðin er mjög stór með skjólgóðum trjám og fallegum gróðri.
Eldhús: með fallegri innréttingu, efri og neðri skápum, bakarofn í vinnuhæð og innbyggð uppþvottavél. Frá eldhúsi er innangengt í þvottahús, geymslu og auka salerni.
Svefnherbergin eru þrjú.
Hjónaherbergi: er með góðum fataskápum og parket á gólfi
Svefnherbergi I: parket á gólfi og fataskápur.
Svefnherbergi II: parket á gólfi.
Baðherbergi I: er flísalagt í hólf og gólf. Þar er innrétting með handlaug, skúffum og skápum, upphengt salerni, baðkar og handklæðaofn.
Baðherbergi II: er flísalögð í hólf og gólf. Þar er lítil innrétting með handlaug, sturtuklefi og upphengt salerni.
Þvottahús: flísar á gólfi, innrétting fyrir þvottavél og þurrkara, hillupláss og skolvaskur.
Bílskúr: er stór eða 50m² með geymslu innst. Rafdrifin bílskúrshurð og tvær gönguhurðar. Ein fyrir framan og ein á hliðinni er snýr út í garð.
Geymsla/búr: búr er innan eignar við þvottahúsið og geymsla er innst í bílskúr.
Lóðin: er mjög stór eða 1084,8 m². Virkilega fallegur garður með fjölda plantna og trjáa. Garðurinn hefur hlotið viðurkenningu frá Hveragerðisbæ en hann er virkilega skjólsæll og bjartur.
Á lóðinni er einnig geymsluskúr sem er fín geymsla fyrir garðverkfæri og fleira. Einnig skjólgóður pallur og heitur pottur.
Um er að ræða vandað, steypt einbýlishús á skjólgóðum stað í bænum. Ástand hússins er gott en viðhaldi á eigninni hefur alltaf verið vel sinnt og útlitið gott.
Skipt hefur verið um járn og pappa á þaki en einnig voru vindskeiðar og rennur endurnýjaðar, að sögn seljanda.
Þá var einnig farið í skolp og kaldavatnslagnir og það endurnýjað, að sögn seljanda.
Hellulagt er fyrir framan bílskúr og að húsi, einnig er hellulagt fyrir aftan hús.
Gólfefni: eru parket og flísar.
Nánari upplýsingar veita:
Elínborg María Ólafsdóttir, löggiltur fasteignasali, í síma 861-6866, tölvupóstur elinborg@valborgfs.is.
Gunnar Biering Agnarsson, löggiltur fasteignasali, í síma 823-3300, tölvupóstur gunnar@valborgfs.is.
Forsendur söluyfirlits:
Söluyfirlit er samið af fasteignasala í samræmi við ákvæði laga nr. 70/2015. Þær upplýsingar sem fram koma í söluyfirliti þessu eru sóttar í opinberar skrár, til seljanda sjálfs og eftir atvikum til húsfélags. Seljandi veitir upplýsingar um eign í samræmi við upplýsingaskyldu laga um fasteignakaup nr. 40/2002. Fasteignasali sannreynir að þær upplýsingar séu réttar með sjónskoðun á eigninni. Fasteignasali getur ekki fullyrt um ástand og eiginleika þeirra hluta fasteigna sem ekki eru aðgengilegir og sjást ekki berum augum, t.d. lagnir, dren, skólp og þak.
Um skoðunar- og aðgæsluskyldu:
Í lögum um fasteignakaup nr. 40/2002 er kveðið á um ríka skoðunarskyldu kaupenda á fasteignum. Valborg ehf. fasteignasala bendir væntanlegum kaupendum á að kynna sér vel ástand fasteigna við skoðun og fyrir tilboðsgerð og ef þurfa þykir að leita til sérfræðinga um nánari ástandsskoðun.
Gjöld sem kaupandi þarf að standa straum af vegna kaupanna:
1. Stimpilgjald af kaupsamningi sem er hlutfall af fasteignamati. Stimpilgjald er 0,8% fyrir einstaklinga (0,4% við fyrstu kaup) og 1,6% fyrir lögaðila.
2. Þinglýsingargjald af kaupsamningi, veðskuldabréfum, veðleyfum o.fl. Þinglýsingargjald er kr. 2.700,- fyrir hvert skjal.
3. Lántökugjald lánastofnunar. Um lántökugjald vísast í gjaldskrá viðkomandi lánveitanda.
4. Umsýsluþóknun fasteignasölu skv. gjaldskrá.
5. Ef um nýbyggingu er að ræða greiðir kaupandi skipulagsgjald, 0,3% af brunabótamáti, þegar það er lagt á.
Fallegt einbýlishús með þremur svefnherbergjum og tveimur baðherbergjum á skjólgóðum stað stutt frá Hamrinum.
Garðurinn er virkilega fallegur verðlaunagarður, mjög skjólgóður með fjölda blóma og trjáa, heitur pottur og skjólgóð verönd.
Eignin er samtals 158,8 m² að stærð samkvæmt skráningu Þjóðskrár Íslands.
Þar af er íbúðin 108,8 m² og bílskúrinn 50,0 m².
Eignin telur forstofu, stofu, eldhús, þrjú svefnherbergi, tvö baðherbergi, geymslu, búr, þvottahús og bílskúr.
Þá er einnig geymsluskúr á lóðinni.
Nánari upplýsingar veita:
Elínborg María Ólafsdóttir, löggiltur fasteignasali, í síma 861-6866, tölvupóstur elinborg@valborgfs.is.
Gunnar Biering Agnarsson, löggiltur fasteignasali, í síma 823-3300, tölvupóstur gunnar@valborgfs.is.
Lýsing eignar:
Forstofa: komið er inn í forstofu með flísum á gólfi, þar er fatahengi.
Stofa: björt stofa með parketi á gólfi og útgengt frá henni út á baklóð. Lóðin er mjög stór með skjólgóðum trjám og fallegum gróðri.
Eldhús: með fallegri innréttingu, efri og neðri skápum, bakarofn í vinnuhæð og innbyggð uppþvottavél. Frá eldhúsi er innangengt í þvottahús, geymslu og auka salerni.
Svefnherbergin eru þrjú.
Hjónaherbergi: er með góðum fataskápum og parket á gólfi
Svefnherbergi I: parket á gólfi og fataskápur.
Svefnherbergi II: parket á gólfi.
Baðherbergi I: er flísalagt í hólf og gólf. Þar er innrétting með handlaug, skúffum og skápum, upphengt salerni, baðkar og handklæðaofn.
Baðherbergi II: er flísalögð í hólf og gólf. Þar er lítil innrétting með handlaug, sturtuklefi og upphengt salerni.
Þvottahús: flísar á gólfi, innrétting fyrir þvottavél og þurrkara, hillupláss og skolvaskur.
Bílskúr: er stór eða 50m² með geymslu innst. Rafdrifin bílskúrshurð og tvær gönguhurðar. Ein fyrir framan og ein á hliðinni er snýr út í garð.
Geymsla/búr: búr er innan eignar við þvottahúsið og geymsla er innst í bílskúr.
Lóðin: er mjög stór eða 1084,8 m². Virkilega fallegur garður með fjölda plantna og trjáa. Garðurinn hefur hlotið viðurkenningu frá Hveragerðisbæ en hann er virkilega skjólsæll og bjartur.
Á lóðinni er einnig geymsluskúr sem er fín geymsla fyrir garðverkfæri og fleira. Einnig skjólgóður pallur og heitur pottur.
Um er að ræða vandað, steypt einbýlishús á skjólgóðum stað í bænum. Ástand hússins er gott en viðhaldi á eigninni hefur alltaf verið vel sinnt og útlitið gott.
Skipt hefur verið um járn og pappa á þaki en einnig voru vindskeiðar og rennur endurnýjaðar, að sögn seljanda.
Þá var einnig farið í skolp og kaldavatnslagnir og það endurnýjað, að sögn seljanda.
Hellulagt er fyrir framan bílskúr og að húsi, einnig er hellulagt fyrir aftan hús.
Gólfefni: eru parket og flísar.
Nánari upplýsingar veita:
Elínborg María Ólafsdóttir, löggiltur fasteignasali, í síma 861-6866, tölvupóstur elinborg@valborgfs.is.
Gunnar Biering Agnarsson, löggiltur fasteignasali, í síma 823-3300, tölvupóstur gunnar@valborgfs.is.
Forsendur söluyfirlits:
Söluyfirlit er samið af fasteignasala í samræmi við ákvæði laga nr. 70/2015. Þær upplýsingar sem fram koma í söluyfirliti þessu eru sóttar í opinberar skrár, til seljanda sjálfs og eftir atvikum til húsfélags. Seljandi veitir upplýsingar um eign í samræmi við upplýsingaskyldu laga um fasteignakaup nr. 40/2002. Fasteignasali sannreynir að þær upplýsingar séu réttar með sjónskoðun á eigninni. Fasteignasali getur ekki fullyrt um ástand og eiginleika þeirra hluta fasteigna sem ekki eru aðgengilegir og sjást ekki berum augum, t.d. lagnir, dren, skólp og þak.
Um skoðunar- og aðgæsluskyldu:
Í lögum um fasteignakaup nr. 40/2002 er kveðið á um ríka skoðunarskyldu kaupenda á fasteignum. Valborg ehf. fasteignasala bendir væntanlegum kaupendum á að kynna sér vel ástand fasteigna við skoðun og fyrir tilboðsgerð og ef þurfa þykir að leita til sérfræðinga um nánari ástandsskoðun.
Gjöld sem kaupandi þarf að standa straum af vegna kaupanna:
1. Stimpilgjald af kaupsamningi sem er hlutfall af fasteignamati. Stimpilgjald er 0,8% fyrir einstaklinga (0,4% við fyrstu kaup) og 1,6% fyrir lögaðila.
2. Þinglýsingargjald af kaupsamningi, veðskuldabréfum, veðleyfum o.fl. Þinglýsingargjald er kr. 2.700,- fyrir hvert skjal.
3. Lántökugjald lánastofnunar. Um lántökugjald vísast í gjaldskrá viðkomandi lánveitanda.
4. Umsýsluþóknun fasteignasölu skv. gjaldskrá.
5. Ef um nýbyggingu er að ræða greiðir kaupandi skipulagsgjald, 0,3% af brunabótamáti, þegar það er lagt á.