Löggiltir fasteignasalar innan Félags fasteignasala:
Páll Þorbjörnsson
Kristinn Sigurbjörnsson
Haukur Andreasson
Elín Frímannsdóttir
Sigurjón Rúnarsson
Vista
svg

280

svg

257  Skoðendur

svg

Skráð  16. sep. 2025

raðhús

Steinás 12

260 Reykjanesbær

90.500.000 kr.

534.870 þ.kr./m2
Fasteignanúmer

F2257378

Fasteignamat

83.450.000 kr.

Brunabótamat

83.250.000 kr.

Áhvílandi

0 kr.

Arion banki – Reikna lán
Upplýsingar
Verðsaga
svg
Byggt 2005
svg
169,2 m²
svg
5 herb.
svg
2 baðherb.
svg
3 svefnh.
svg
Þvottahús
svg
Bílskúr
svg
Sérinngangur

Lýsing


ALLT fasteignasala kynnir í einkasölu eignina:
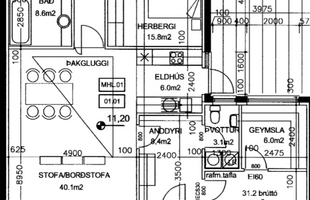
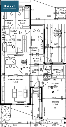
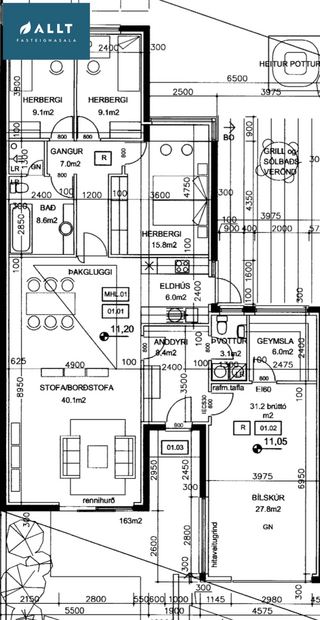
Steinás 12, 260 Reykjanesbær, nánar tiltekið eign merkt 01-01, fastanúmer 225-7378 ásamt öllu því sem eigninni fylgir, þar með talið tilheyrandi lóðar og sameignarréttindi. Eignin er skráð sem hér segir hjá FMR, birt stærð 169.2 fm. Fallegt og vel skipulagt raðhús með vönduðum innréttingum, hækkaðri lofthæð og góðum sólpöllum á frábærum stað í Njarðvík. 

Nánari upplýsingar veitir/veita: Elínborg Ósk Jensdóttir Löggiltur fasteignasali, í síma 823-1334, tölvupóstur elinborg@allt.is. og Unnur Svava lfs. í síma 868-2555, tölvupóstur unnur@allt.is

* 3 góð svefnherbergi
* 6fm geymsla með glugga og hurð, inn af bílskúr sem hægt er að nýta sem 4 svefnherbergið. Frá því er útgengt á sólpall
* Hátt til lofts er í alrými
* Sérsmíðaðar háar innihurðir úr hnotu
* Sérsmíðaðar fataskápar og veggfestar hrislur úr hnotu
* Sérmíðaðr innréttingar úr hnotu
* Tvö salerni
* Góður sólpallur að aftan
* Hellulagt fyrir framan hús
* Grillskýli að aftan
* Geymsluskúr að aftan
* Flísar á alrými og votrýmum
* Hnota á svefnherbergjum
* Vönduð heimilistæki
* Búið að yfirfara þak
* Rólegur botnlangi á góðum stað í Njarðvík
* Hiti í bílaplani

** Ótrúlega falleg og vönduð eign sem hefur verið farið vel með í gegnum tíðina, sem vert er að skoða**


Nánari lýsing eignar:
Forstofa:
Flísar á gólfi og stór forstofuskápur úr hnotu.
Eldhús: Innrétting úr Hnotu, góð eldhústæki. Svalahurð frá eldhúsi út á góðan sólpall að aftan.
Stofa/borðstofa: Opin og björt stofa/borðstofa með hækkaðari lofhæð og fallegum þakglugga. Veggfestar hirslur/skápar. Stór rennihurð úr stofu út á pall að framan.
Baðherbergi: Stórt baðherbergi sem er flísalagt í hólf og gólf. Innrétting úr hnotu, baðkar, stór "walk in" sturta og upphengt salerni.
Gestasnyrting: Fallegt og stílhreint baðherbergi með flísum, vaskinnréttingu og upphengdu salerni.
Svefnherbergi: Eru þrjú talsins öll með parketi á gólfi og fataskrápum úr hnotu.
Þvottahús: Með góðri hvítri innréttingu, vaski, glugga og vinnuplássi
Bílskúr: Gengið er inn í bílskúr frá forstofu. Epoxy á gólfi og góðar hirslum. Geymsla er inn af bílskúr en þar er gluggi og hurð út á pall sem hægt er að nýta sem 4 svefnhrbergið.
Umhverfi: Snyrtiegt umhverfi með hellulögðu upphituðu bílaplani og sólpöllum að framan og að aftan. 

ALLT fasteignasala er staðsett á eftirfarandi stöðum:
Hafnargötu 91, 230 Reykjanesbæ - Þverholti 2, 270 Mosfellsbæ
 
Kostnaður kaupanda:
1. Af gjaldskyldum skjölum skal greiða 0,8% af fasteignamati ef kaupandi er einstaklingur, fyrstukaupendur 0,4% og 1,6% af fasteignamati ef kaupandi er lögaðili.
2. Þinglýsingargjald á hvert skjal er kr. 2.700.
3. Lántökugjald fer eftir verðskrá lánastofnunar hverju sinni.
4. Umsýslugjald til ALLT fasteignasölu er kr. 69.440 m/vsk.
5. Sé um nýbyggingu um að ræða greiðir kaupandi skipulagsgjald, 0,3% af brunabótamati, þegar það er lagt á.

Skoðunar- og aðgæsluskylda kaupanda:
Í lögum um fasteignakaup nr. 40/2002 er kveðið á um ríka skoðunarskyldu kaupenda á fasteignum. ALLT fasteignasala vill beina því til væntanlegs kaupanda að kynna sér ástand fasteignar vel við skoðun og fyrir tilboðsgerð. Ef þurfa þykir er ráðlagt að leita til sérfræðifróðra aðila. Forsendur söluyfirlits: Söluyfirlit þetta er samið af fasteignasala til samræmis við lög um sölu fasteigna og skipa nr. 70/2015. Upplýsingar þær sem koma fram í söluyfirliti þessu eru sóttar í opinberar skrár, frá seljanda og eftir atvikum til húsfélags. Seljandi veitir upplýsingar um eignina til samræmis við upplýsingaskyldu sína sbr. lög um fasteignakaup nr. 40/2002. Fasteignasali sannreynir að upplýsingar séu réttar með sjónskoðun á eigninni. Fasteignasali getur ekki fullyrt um ástand og eiginleika þeirra hluta fasteignar sem ekki eru aðgengilegir og sjást ekki með berum augum, eins og t.d. lagnir, dren, skólp og þak.
 

ALLT fasteignasala – Reykjanesbær & Hafnarfjörður

ALLT fasteignasala – Reykjanesbær & Hafnarfjörður

phone
Ár
Fasteignamat
Kaupverð
Stærð
Fermetraverð
10. ágú. 2015
25.850.000 kr.
39.000.000 kr.
169.2 m²
230.496 kr.
19. jún. 2014
25.750.000 kr.
36.000.000 kr.
169.2 m²
212.766 kr.
Byggt á upplýsingum úr Þjóðskrá Íslands frá 2006-2025
ALLT fasteignasala – Reykjanesbær & Hafnarfjörður

ALLT fasteignasala – Reykjanesbær & Hafnarfjörður

phone