Upplýsingar
Byggt 2009
70,7 m²
3 herb.
1 baðherb.
2 svefnh.
Sérinngangur
Lýsing
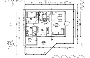
Lind fasteignasala kynnir fallegt þriggja herbergja, 70,7 fm sumarhús við Holtabyggð 3 í landi Stóra-Fjalls, 311 Borgarbyggð. Húsið er byggt árið 2009 og stendur á einstaklega fallegri og gróinni 7500 fm leigulóð. Í húsinu eru tvö svefnherbergi, eldhús, borðstofa, stofa, baðherbergi og geymsla. Auk þess er geymsluskúr við húsið sem er ekki í skráðum fermetrum. Stór timburverönd umlykur eignina á þrjá vegu með góðu útsýni.
Allar nánari upplýsingar veitir Aníta Olsen Jóhannesdóttir, löggiltur fasteignasali í síma 615-1640 eða anita@fastlind.is.
Nánari lýsing:
Forstofa með góðum fataskápum, flísar á gólfi.
Svefnherbergi I er rúmgott og bjart með fataskáp, parket á gólfi.
Svefnherbergi II er rúmgott og bjart, parket á gólfi.
Baðherbergi með salerni, sturtuklefa og fallegri innréttingu með handlaug.
Eldhús með glugga og fallegri innréttingu í viðarlit með góðu skápaplássi og eyju. Innbyggður ísskápur og uppþvottavél, BOSCH helluborð og ofn, parket á gólfi.
Stofa og borðstofa eru í opnu og björtu rými með góðri lofthæð og fallegum gluggum, parket á gólfi. Útgengi út á rúmgóða timburverönd.
Geymsla er skráð 6,3 fm, aðgengileg frá verönd. Skolvaskur og flísar á gólfi.
Geymsluskúr byggður árið 2012 stendur við húsið og er hann ekki inni í skráðum fermetrafjölda.
Verönd umlykur húsið á þrjá vegu, heitur pottur á verönd sem er í ólagi og þarfnast skoðunar.
Aðkoma að húsinu er góð og næg bílastæði. Þörf er á að laga innkeyrsluhlið.
Í húsinu eru rafmagnsofnar og hitakútur fyrir neysluvatn.
Hús, verönd og geymsluskúr var málað árið 2023.
Hluti af búslóð getur fylgt með skv. nánara samkomulagi við seljanda.
Frábær staðsetning í um 80 min. akstursfjarlægð frá höfuðborgarsvæðinu. Í nánd við fallega náttúru og stutt í marga áhugaverða staði eins og Paradísarlaut, Grábrók, Glanna og annarra þekktra staða. Hamarsvöllur er rétt hjá fyrir golfáhugamenn, sundlaug og veiði í næsta nágrenni og Borgarnes í um 15 km fjarlægð þar sem hægt er að sækja alla helstu þjónustu.
Húsið stendur á leigulóð og er virkur 50 ára leigusamningur frá 1984.
Lóðarleiga er samkvæmt seljanda 78.105 kr. árið 2025 og er félagsgjald sumarhúsafélags um 15.000 kr. á ári.
Það upplýsist hér með í samræmi við 2. mgr. 14. gr. laga nr. 70/2015 um sölu fasteigna og skipa að fasteignasali er tengdur seljanda fjölskylduböndum.
Allar nánari upplýsingar veitir Aníta Olsen Jóhannesdóttir, löggiltur fasteignasali í síma 615-1640 eða anita@fastlind.is.
Allir kaupendur okkar fá Vildarkort Lindar. Með því að framvísa kortinu færð þú 30% afslátt hjá 10 samstarfsaðilum: Húsgagnahöllin, S. Helgason, Flugger litir, Húsasmiðjan, Z brautir og gluggatjöld, Vídd, Parki, Betra bak, Dorma & Vodafone.
Gjöld sem kaupandi þarf að standa straum af vegna kaupanna:
1. Stimpilgjald af kaupsamningi - 0.8% af heildarfasteignamati / 1.6% fyrir lögaðila
Fyrstu kaup - 0,4% af heildarfasteignamati.
2. Þinglýsingargjald af kaupsamningi, veðskuldabréfi, veðleyfi o.fl.- kr. 2.700 af hverju skjali.
3. Lántökugjald lánastofnunar.
4. Umsýsluþóknun til fasteignasölu, sbr.kauptilboð.
Allar nánari upplýsingar veitir Aníta Olsen Jóhannesdóttir, löggiltur fasteignasali í síma 615-1640 eða anita@fastlind.is.
Nánari lýsing:
Forstofa með góðum fataskápum, flísar á gólfi.
Svefnherbergi I er rúmgott og bjart með fataskáp, parket á gólfi.
Svefnherbergi II er rúmgott og bjart, parket á gólfi.
Baðherbergi með salerni, sturtuklefa og fallegri innréttingu með handlaug.
Eldhús með glugga og fallegri innréttingu í viðarlit með góðu skápaplássi og eyju. Innbyggður ísskápur og uppþvottavél, BOSCH helluborð og ofn, parket á gólfi.
Stofa og borðstofa eru í opnu og björtu rými með góðri lofthæð og fallegum gluggum, parket á gólfi. Útgengi út á rúmgóða timburverönd.
Geymsla er skráð 6,3 fm, aðgengileg frá verönd. Skolvaskur og flísar á gólfi.
Geymsluskúr byggður árið 2012 stendur við húsið og er hann ekki inni í skráðum fermetrafjölda.
Verönd umlykur húsið á þrjá vegu, heitur pottur á verönd sem er í ólagi og þarfnast skoðunar.
Aðkoma að húsinu er góð og næg bílastæði. Þörf er á að laga innkeyrsluhlið.
Í húsinu eru rafmagnsofnar og hitakútur fyrir neysluvatn.
Hús, verönd og geymsluskúr var málað árið 2023.
Hluti af búslóð getur fylgt með skv. nánara samkomulagi við seljanda.
Frábær staðsetning í um 80 min. akstursfjarlægð frá höfuðborgarsvæðinu. Í nánd við fallega náttúru og stutt í marga áhugaverða staði eins og Paradísarlaut, Grábrók, Glanna og annarra þekktra staða. Hamarsvöllur er rétt hjá fyrir golfáhugamenn, sundlaug og veiði í næsta nágrenni og Borgarnes í um 15 km fjarlægð þar sem hægt er að sækja alla helstu þjónustu.
Húsið stendur á leigulóð og er virkur 50 ára leigusamningur frá 1984.
Lóðarleiga er samkvæmt seljanda 78.105 kr. árið 2025 og er félagsgjald sumarhúsafélags um 15.000 kr. á ári.
Það upplýsist hér með í samræmi við 2. mgr. 14. gr. laga nr. 70/2015 um sölu fasteigna og skipa að fasteignasali er tengdur seljanda fjölskylduböndum.
Allar nánari upplýsingar veitir Aníta Olsen Jóhannesdóttir, löggiltur fasteignasali í síma 615-1640 eða anita@fastlind.is.
Allir kaupendur okkar fá Vildarkort Lindar. Með því að framvísa kortinu færð þú 30% afslátt hjá 10 samstarfsaðilum: Húsgagnahöllin, S. Helgason, Flugger litir, Húsasmiðjan, Z brautir og gluggatjöld, Vídd, Parki, Betra bak, Dorma & Vodafone.
Gjöld sem kaupandi þarf að standa straum af vegna kaupanna:
1. Stimpilgjald af kaupsamningi - 0.8% af heildarfasteignamati / 1.6% fyrir lögaðila
Fyrstu kaup - 0,4% af heildarfasteignamati.
2. Þinglýsingargjald af kaupsamningi, veðskuldabréfi, veðleyfi o.fl.- kr. 2.700 af hverju skjali.
3. Lántökugjald lánastofnunar.
4. Umsýsluþóknun til fasteignasölu, sbr.kauptilboð.