Upplýsingar
Verðsaga
Byggt 2012
96,1 m²
4 herb.
1 baðherb.
3 svefnh.
Þvottahús
Sérinngangur
Lýsing
Kasa fasteignir 461-2010.
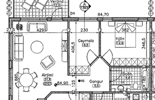
Sómatún 1 íbúð 101 - Björt og vel skipulögð 3-4 herbergja 96,1 fm íbúð á neðri hæð í fjórbýli í Naustahverfi.
Eignin skiptist í forstofu, gang, eldhús, stofu, þrjú svefnherbergi ( eitt skráð sem geymsla ), baðherbergi og þvottahús.
Forstofa er með flísum á gólfi og rúmgóðum fata skáp.
Eldhús er með nokkuð rúmgóðri innréttingu með innfelldum ísskáp og frysti, bakaraofn í vinnuhæð og ljósum flísum á milli skápa. Parket á gólfi og innfelld lýsing í lofti.
Stofa og eldhús eru saman í björtu opnu rými. Innfelld lýsing í lofti og parket á gólfi. Úr stofu er gengið út á rúmgóða steypta verönd.
Svefnherbergin eru þrjú, öll eru þau með parketi á gólfi og fataskápum. Eitt herbergið er skráð sem geymsla á teikningu en nýtist vel sem herbergi.
Baðherbergið er með flísum á gólfi og hluta veggja, ljósri innréttingu, upphengdu salerni, handklæðaofni og sturtu með sturtugleri.
Þvottahús er inn af forstofu, það er með flísum á gólfi og bekk með stálvask.
- Gólfhiti er í allri íbúðinni.
- Innfelld lýsing er í lofti í eldhúsi, stofu og á gangi.
- Eignin er laus til afhendingar mánaðarmótin október/nóvember 2025
- Áætlað fasteignamat fyrir 2026: 63.000.000.-
Nánari upplýsingar í síma 461-2010 eða kasa@kasafasteignir.is
------------
Skoðunarskylda:
Í lögum um fasteignakaup nr. 40/2002 er kveðið á um ríka skoðunarskyldu kaupenda á fasteignum. Kasa fasteignir benda væntanlegum kaupendum á að kynna sér vel ástand fasteigna fyrir kauptilboðsgerð og leita til þar til bærra sérfræðinga um nánari skoðun ef þurfa þykir.
Forsendur söluyfirlits:
Söluyfirlit er samið af fasteignasala í samræmi við ákvæði laga nr. 70/2015. Þær upplýsingar sem fram koma í söluyfirliti þessu eru sóttar í opinberar skrár, til seljanda sjálfs og eftir atvikum til húsfélags. Seljandi veitir upplýsingar um eign í samræmi við upplýsingaskyldu laga um fasteignakaup nr. 40/2002. Fasteignasali sannreynir að þær upplýsingar séu réttar með sjónskoðun á eigninni. Fasteignasali getur ekki fullyrt um ástand og eiginleika þeirra hluta fasteigna sem ekki eru aðgengilegir og sjást ekki berum augum, t.d. lagnir, dren, skólp og þak.
Gjöld sem kaupandi þarf að standa straum af vegna kaupanna:
1. Stimpilgjald sýslumanns af kaupsamningi, fyrstu kaup (0,4%), almenn kaup (0,8%), lögaðilar (1,6%) af heildarfasteignamati eignar.
2. Þinglýsingargjald af kaupsamningi, veðskuldabréfi, mögulegu veðleyfi o.fl. - kr. 2.700 af hverju skjali.
3. Lántökugjald lánastofnunar er skv. verðskrá viðkomandi lánastofnunar. Nánari upplýsingar á t.d. heimasíðu lánastofnana.
4. Umsýslugjald til fasteignasölu skv. kauptilboði.
Sómatún 1 íbúð 101 - Björt og vel skipulögð 3-4 herbergja 96,1 fm íbúð á neðri hæð í fjórbýli í Naustahverfi.
Eignin skiptist í forstofu, gang, eldhús, stofu, þrjú svefnherbergi ( eitt skráð sem geymsla ), baðherbergi og þvottahús.
Forstofa er með flísum á gólfi og rúmgóðum fata skáp.
Eldhús er með nokkuð rúmgóðri innréttingu með innfelldum ísskáp og frysti, bakaraofn í vinnuhæð og ljósum flísum á milli skápa. Parket á gólfi og innfelld lýsing í lofti.
Stofa og eldhús eru saman í björtu opnu rými. Innfelld lýsing í lofti og parket á gólfi. Úr stofu er gengið út á rúmgóða steypta verönd.
Svefnherbergin eru þrjú, öll eru þau með parketi á gólfi og fataskápum. Eitt herbergið er skráð sem geymsla á teikningu en nýtist vel sem herbergi.
Baðherbergið er með flísum á gólfi og hluta veggja, ljósri innréttingu, upphengdu salerni, handklæðaofni og sturtu með sturtugleri.
Þvottahús er inn af forstofu, það er með flísum á gólfi og bekk með stálvask.
- Gólfhiti er í allri íbúðinni.
- Innfelld lýsing er í lofti í eldhúsi, stofu og á gangi.
- Eignin er laus til afhendingar mánaðarmótin október/nóvember 2025
- Áætlað fasteignamat fyrir 2026: 63.000.000.-
Nánari upplýsingar í síma 461-2010 eða kasa@kasafasteignir.is
------------
Skoðunarskylda:
Í lögum um fasteignakaup nr. 40/2002 er kveðið á um ríka skoðunarskyldu kaupenda á fasteignum. Kasa fasteignir benda væntanlegum kaupendum á að kynna sér vel ástand fasteigna fyrir kauptilboðsgerð og leita til þar til bærra sérfræðinga um nánari skoðun ef þurfa þykir.
Forsendur söluyfirlits:
Söluyfirlit er samið af fasteignasala í samræmi við ákvæði laga nr. 70/2015. Þær upplýsingar sem fram koma í söluyfirliti þessu eru sóttar í opinberar skrár, til seljanda sjálfs og eftir atvikum til húsfélags. Seljandi veitir upplýsingar um eign í samræmi við upplýsingaskyldu laga um fasteignakaup nr. 40/2002. Fasteignasali sannreynir að þær upplýsingar séu réttar með sjónskoðun á eigninni. Fasteignasali getur ekki fullyrt um ástand og eiginleika þeirra hluta fasteigna sem ekki eru aðgengilegir og sjást ekki berum augum, t.d. lagnir, dren, skólp og þak.
Gjöld sem kaupandi þarf að standa straum af vegna kaupanna:
1. Stimpilgjald sýslumanns af kaupsamningi, fyrstu kaup (0,4%), almenn kaup (0,8%), lögaðilar (1,6%) af heildarfasteignamati eignar.
2. Þinglýsingargjald af kaupsamningi, veðskuldabréfi, mögulegu veðleyfi o.fl. - kr. 2.700 af hverju skjali.
3. Lántökugjald lánastofnunar er skv. verðskrá viðkomandi lánastofnunar. Nánari upplýsingar á t.d. heimasíðu lánastofnana.
4. Umsýslugjald til fasteignasölu skv. kauptilboði.
Ár
Fasteignamat
Kaupverð
Stærð
Fermetraverð
17. des. 2024
53.300.000 kr.
120.000.000 kr.
10101 m²
11.880 kr.
2. des. 2014
22.700.000 kr.
46.000.000 kr.
192.2 m²
239.334 kr.
17. apr. 2012
1.510.000 kr.
22.600.000 kr.
96.1 m²
235.172 kr.
Byggt á upplýsingum úr Þjóðskrá Íslands frá 2006-2025