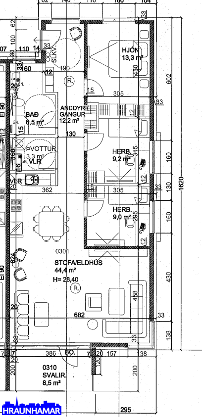
Suðurhella, 221 Hafnarfjörður