Löggiltir fasteignasalar innan Félags fasteignasala:
Eiríkur Svanur Sigfússon
Aron Freyr Eiríksson
Melkorka Guðmundsdóttir
Kristófer Fannar Guðmundsson
Svala Haraldsdóttir
Stefán Rafn Sigurmannsson
Arnór Daði Eiríksson
Vista
svg

228

svg

219  Skoðendur

svg

Skráð  27. sep. 2025

fjölbýlishús

Hringhamar 19 íb 604

221 Hafnarfjörður

72.900.000 kr.

889.024 þ.kr./m2
Fasteignanúmer

F2529264

Fasteignamat

46.650.000 kr.

Brunabótamat

0 kr.

Áhvílandi

0 kr.

Arion banki – Reikna lán
Upplýsingar
svg
Byggt 2024
svg
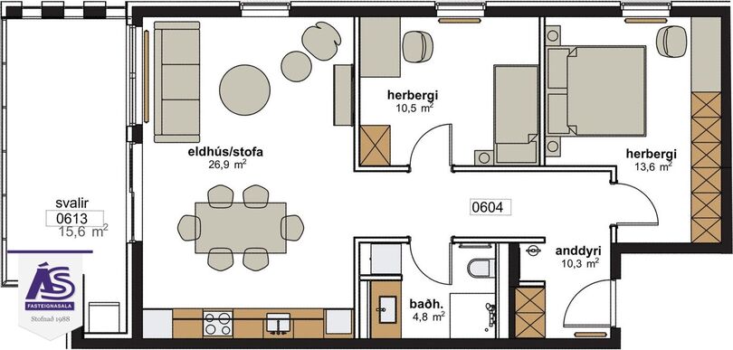
82 m²
svg
3 herb.
svg
1 baðherb.
svg
2 svefnh.
svg
Bílastæði
svg
Lyfta

Lýsing

Glæsilegar 2ja, 3ja og 4ra herbergja íbúðir, flestar með sér stæði í lokaðri bílageymslu í nýju fimm hæða lyftufjölbýli við Hringhamar 17-19 í Hamranesinu, Hafnarfirði.
Íbúðirnar skilast fullbúnar án megingólfefna. Baðherbergi og þvottahús verða flísalögð.

Stærðir:
57,9 - 135,0 fm
Herbergi: 2ja, 3ja og 4ra herbergja
Afhending við Hringhamar 17: Nóvember 2025
Afhending við Hringhamar 19: Fyrsta árshluta 2026

Smelltu hér til að skoða sölusíðu íbúðanna

Hefðbundin hjóla- og vagnageymsla í kjallara.


- Innréttingar frá Axis.
- Eldhústæki að gerðinni AEG eða sambærilegt frá Bræðrunum Ormsson
- Flísar frá Parka
- Geymslur fylgja öllum íbúðum.
- Sér stæði í bílageymslu flestum íbúðum.
- Útveggir staðsteyptir, húsið einangrað að utan og klætt með álklæðningu fyrir utan kalda veggi sem verða pússaðir og málaðir í ljósum lit.
- Timbur-álgluggakerfi frá Byko

Hamranesið er nýtt og glæsilegt hverfi þar sem stutt er í alla helstu þjónstu, s.s. verslanir, grunn- og leikskóla, útibú tónlistarskóla Hafnarfjarðar, íþróttasvæði Hauka, sundlaugar, líkamsræktarstöðvar, apótek og falleg útivistarsvæði. 

Byggingaraðili er traustur verktaki til fjölda ára: MótX

Bókið skoðun og fáið nánari upplýsingar hjá sölumönnum Ás fasteignasölu: 
Stefán Rafn Sigurmannsson löggiltur fasteignasali s. 655-7000 / stefan@as.is
Arnór Daði Eiríksson löggiltur fasteignasali s. 777-0939 / arnor@as.is
Svala Haraldsdóttir löggiltur fasteignasali s. 820-9699 / svala@as.is
Aron Freyr Eiríksson löggiltur fasteignasali s. 772-7376 / aron@as.is
Eiríkur Svanur Sigfússon löggiltur fasteignasali í s. 862-3377 / eirikur@as.is

Frábær staðsetning þar sem stutt er í helstu þjónustu og falleg útivistarsvæði.

Ás fasteignasala er rótgróið fyrirtæki sem hefur veitt alla almenna þjónustu í fasteignaviðskiptum frá árinu 1988.
www.facebook.com/asfasteignasala
www.instagram.com/as_fasteignasala
www.as.is

Ás fasteignasala

Ás fasteignasala

Fjarðargötu 17, 220 Hafnarfirði
phone
Ás fasteignasala

Ás fasteignasala

Fjarðargötu 17, 220 Hafnarfirði
phone