Löggiltir fasteignasalar innan Félags fasteignasala:
Knútur Bjarnason
Rúnar Þór Árnason
Gunnar Sv. Friðriksson
Hólmar Björn Sigþórsson
Linda Björk Ingvadóttir
Kristján Þór Sveinsson
María Steinunn Jóhannesdóttir
Ragnheiður Árnadóttir
Vista
svg

708

svg

626  Skoðendur

svg

Skráð  29. sep. 2025

raðhús

Smáratún 3

225 Garðabær

139.900.000 kr.

646.488 þ.kr./m2
Fasteignanúmer

F2081751

Fasteignamat

116.300.000 kr.

Brunabótamat

97.000.000 kr.

Áhvílandi

0 kr.

Arion banki – Reikna lán
Upplýsingar
Verðsaga
svg
Byggt 1983
svg
216,4 m²
svg
5 herb.
svg
2 baðherb.
svg
4 svefnh.
svg
Þvottahús
svg
Bílskúr
svg
Sérinngangur

Lýsing

Helgafell fasteignasala ehf. og Gunnar Sv. Friðriksson lögmaður og löggiltur fasteignasali kynna fallegt raðhús á tveimur hæðum við Smáratún á Álftanesi.  Húsið er vel staðsett og hverfið mjög barnvænt.  Þrjú góð svefnherbergi og tvö baðherbergi.  Bílskúr í dag innréttaður sem fjórða svefnherbergið.  Sólpallur.

SMELLIÐ HÉR TIL AÐ NÁLGAST SÖLUYFIRLIT EIGNARINNAR

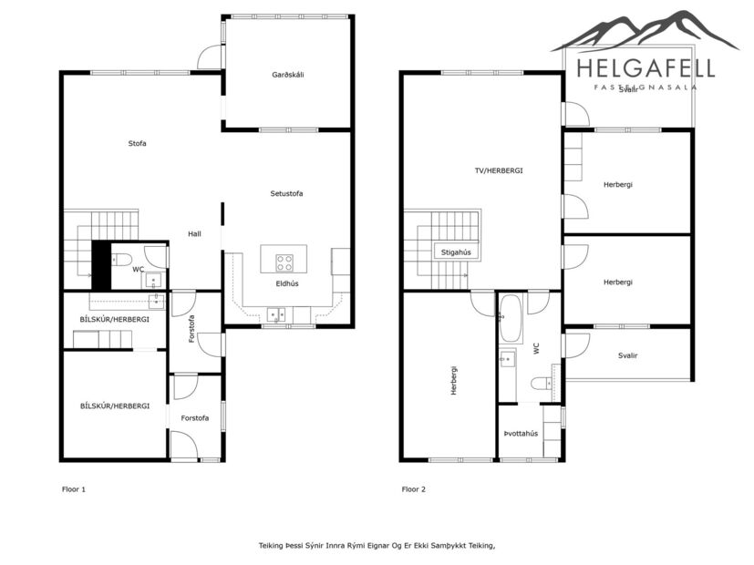
NEÐRI HÆÐIN:
Komið er inn í flísalagða forstofu.
Eldhús - flísar á gólfi - fín innrétting - eyja með helluborði - tengi fyrir uppþvottavél - nýlegur bakarofn - borðstofa / borðkrókur.
Stofa - flísar á gólfi - björt og rúmgóð - útgengt í garðskála og þaðan í suður garð.  Garðskáli er ekki inn í fermetratölu fasteignar.
Baðherbergi - nett innrétting - flísar á gólfi.
Stigi upp á efri hæð - parketlagður. 

EFRI HÆÐIN:
Rúmgott sjónvarpsrými með útgengi á suður svalir - harðparket á gólfi - innfeld lýsing.
Hjónaherbergi - harðparket á gólfi - fataskápar.
Herbergi - harðparket á gólfi - fataskápur.
Herbergi - harðparket á gólfi - fataskápur.
Baðherbergi - rúmgott - fín innrétting - flísar í hólf og gólf - baðkar / sturtuklefi - upphengt salerni - gluggi - útgengt á vestur svalir.
Þvottahús - inn af baðherbergi - gluggi - lúga að háu lofti.

Bílskúr - innréttaður sem fjórða svefnherbergið - harðparket á gólfi - sér inngangur - geymsla inn af bílskúr.  

Lóðin - sólpallur í baklóð sem snýr í suður - geymsluskúr með rafmagni.  Hellulagt bílaplan með hitalögnum - stæði fyrir þrjá bíla.  Húsið var málað af framanverðu og þak yfirfarið og málað sumarið 2023.  Þakkantur nýklæddur.

Stutt er í almenningssamgöngur, sundlaug, íþróttahús, leikvöll, skóla og leikskóla.

Allar frekari upplýsingar veitir Gunnar Sv. Friðriksson lögmaður og löggiltur fasteignasali í síma 842 2217 / gunnar@helgafellfasteignasala.is

----------------------------------------------------------
Heimasíða Helgafells fasteignasölu
Facebook síða Helgafells

- Hafðu samband og við gerum söluverðmat á eign þinni, þér að kostnaðarlausu -

Gjöld sem kaupandi þarf að standa straum af vegna kaupa á fasteign:

1. Stimpilgjald af kaupsamningi - 0,8% af fasteignamati fyrir einstaklinga (0,4% fyrir fyrstu kaupendur) og 1,6% fyrir lögaðila.
2. Þinglýsingargjald af kaupsamningi, veðskuldabréfi, mögulegu veðleyfi o.fl. - 2.700 kr. af hverju skjali.
3. Lántökugjald lánastofnunar - almennt í kringum 50þ., oft lægra eða ekkert lántökugjald fyrir fyrstu kaup. Nánari upplýsingar á heimasíðum lánastofnana.
4. Þjónustusamningur milli kaupanda og fasteignasölu - Kr.  92.380,- m/vsk.

Helgafell fasteignasala bendir kaupendum á ríka skoðunarskyldu sem kveðið er á í lögum um fasteignakaup nr.40/2002. Skorað er á kaupendur að kynna sér vandlega ástand fasteigna og nýta til þess aðstoð sérfræðinga.  Sömuleiðis er bent á upplýsingaskyldu seljanda samanber 26.gr. Laga nr.40/2002 um fasteignakaup og 25.gr. laga nr.26/1994 um fjöleignarhús. Seljanda er bent á að kynna sér tilvitnaðar lagagreinar.

img
Gunnar Sv. Friðriksson
Lögg.fasteignasali innan félags fasteignasala
Helgafell fasteignasala ehf.
Stórhöfði 33, 2. hæð, 110 Reykjavík
Helgafell fasteignasala ehf.

Helgafell fasteignasala ehf.

Stórhöfði 33, 2. hæð, 110 Reykjavík
img

Gunnar Sv. Friðriksson

Stórhöfði 33, 2. hæð, 110 Reykjavík
Ár
Fasteignamat
Kaupverð
Stærð
Fermetraverð
11. apr. 2014
37.050.000 kr.
44.000.000 kr.
216.4 m²
203.327 kr.
Byggt á upplýsingum úr Þjóðskrá Íslands frá 2006-2025
Helgafell fasteignasala ehf.

Helgafell fasteignasala ehf.

Stórhöfði 33, 2. hæð, 110 Reykjavík

Gunnar Sv. Friðriksson

Stórhöfði 33, 2. hæð, 110 Reykjavík