Upplýsingar
Verðsaga
Byggt 1985
179,6 m²
4 herb.
1 baðherb.
4 svefnh.
Þvottahús
Bílskúr
Sérinngangur
Lýsing
Virkilega smekkleg og mikið endurnýjuð fjölskyldueign við Stekkjarhvamm 26, Hafnarfirði.
BÓKIÐ EINKASÝNINGU MEÐ ÞVÍ AÐ SENDA PÓST Á ARNI@PALSSONFASTEIGNASALA.IS
* Hæð og ris
* 4 svefnherbergi
* Mikið endurnýjuð eign
* Bílskúr
EIGN SEM ER VERT AÐ SKOÐA!
Nánari upplýsingar veita:
Páll Pálsson Lgf. í síma nr775-4000 eða palli@palssonfasteignasala.is
Árni B. Kristjánsson B.A í lögfræði / Lgf í síma nr 616-2694 arni@palssonfasteignasala.is
www.eignavakt.is
www.verdmat.is
Eignin er 4-5 herbergja, merkt 040201, birt stærð íbúðar samkvæmt FMR er 155,7 fm og Bílskúr merktur 010102, 23,9 fm, samtals 179,6 fm.
Nánari lýsing:
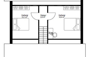
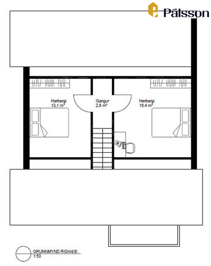
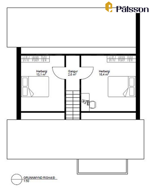
Rúmgóð, björt stofa með aukinni lofthæð, hringstigi upp á rishæð með þakgluggum sem er nýtt í dag sem tvö svefnherbergi, einnig er þar að finna geymslurými undir súð.
Samliggjandi eldhús, stofa og borðstofa þar sem útgengt er út á suðursvalir með frábæru útsýni til vesturs.
Hjónaherbergi með góðum fataskápum og annað svefnherbergi.
Glæsilegt baðherbergi og sér þvottahús innan íbúðar með innréttingu og skolvask.
Eigninni fylgir bílskúr.
Eignin hefur verið endurnýjuð að innan að miklu leiti á smekklegan hátt undanfarin ár.
Nánari lýsing á eigninni og framkvæmdum skv. seljanda:
Að innan:
- hvítar yfirfelldar hurðar
- Loft gifsklædd með innfelldri led lýsingu, á neðri og efri hæð.
- Baðherbergi hefur verið endurskipulagt og breytt, walk in sturta, 60x60 flísar úr álfaborg, sturtugler, góð innrétting og handklæðaofn.
- Þvottahús með 60x60 flísum á gólfi úr álfaborg.
- Sett upp innrétting í þvottahúsi ásamt skolvaski síðla 2024
- Teppi á stiga í anddyri úr Parki, teppi á risi einnig úr Parki.
- Forstofa flísalögð með 60x60 flísum úr Álfaborg.
- Stórir hvítir fataskápar í anddyri.
- Ofnar endurnýjaðir.
- Eldhús endurnýjað með granít á borðum, undirlímdur vaskur, niðurlímt spanhelluborð, nýr bakaraofn og ísskápur sem gæti selst með.
Að utan:
- Húsið málað að utan 2022
- Þak háþrýstiþvegið og málað 2022
- Þakdúkur endurnýjaður á stigahúsi, fyrri part 2022
- Skipt um þakrennur að framan og aftan sumarið 2024
Góð ráð fyrir kaupendur / seljendur
Gjöld sem kaupandi þarf að standa straum af vegna kaupanna:
1. Stimpilgjald af kaupsamningi - 0.8% af heildarfasteignamati / 1.6% fyrir lögaðila. (0.4% við fyrstu kaup einstaklinga).
2. Þinglýsingagjald af kaupsamningi, veðskuldabréfi, veðleyfi o.fl.- kr. 2.700 af hverju skjali.
3. Lántökugjald lánastofnunar - samanber gjaldskrá viðkomandi lánastofnunar.
4. Umsýsluþóknun til fasteignasölu, sbr.kauptilboð.
Um skoðunarskyldu:
Í lögum um fasteignakaup nr. 40/2002 er kveðið á um ríka skoðunarskyldu kaupenda á fasteignum. Pálsson fasteignasala bendir væntanlegum kaupendum á að kynna sér vel ástand fasteigna við skoðun og fyrir tilboðsgerð og ef þurfa þykir að leita til sérfræðinga um nánari ástandsskoðun.
BÓKIÐ EINKASÝNINGU MEÐ ÞVÍ AÐ SENDA PÓST Á ARNI@PALSSONFASTEIGNASALA.IS
* Hæð og ris
* 4 svefnherbergi
* Mikið endurnýjuð eign
* Bílskúr
EIGN SEM ER VERT AÐ SKOÐA!
Nánari upplýsingar veita:
Páll Pálsson Lgf. í síma nr775-4000 eða palli@palssonfasteignasala.is
Árni B. Kristjánsson B.A í lögfræði / Lgf í síma nr 616-2694 arni@palssonfasteignasala.is
www.eignavakt.is
www.verdmat.is
Eignin er 4-5 herbergja, merkt 040201, birt stærð íbúðar samkvæmt FMR er 155,7 fm og Bílskúr merktur 010102, 23,9 fm, samtals 179,6 fm.
Nánari lýsing:
Rúmgóð, björt stofa með aukinni lofthæð, hringstigi upp á rishæð með þakgluggum sem er nýtt í dag sem tvö svefnherbergi, einnig er þar að finna geymslurými undir súð.
Samliggjandi eldhús, stofa og borðstofa þar sem útgengt er út á suðursvalir með frábæru útsýni til vesturs.
Hjónaherbergi með góðum fataskápum og annað svefnherbergi.
Glæsilegt baðherbergi og sér þvottahús innan íbúðar með innréttingu og skolvask.
Eigninni fylgir bílskúr.
Eignin hefur verið endurnýjuð að innan að miklu leiti á smekklegan hátt undanfarin ár.
Nánari lýsing á eigninni og framkvæmdum skv. seljanda:
Að innan:
- hvítar yfirfelldar hurðar
- Loft gifsklædd með innfelldri led lýsingu, á neðri og efri hæð.
- Baðherbergi hefur verið endurskipulagt og breytt, walk in sturta, 60x60 flísar úr álfaborg, sturtugler, góð innrétting og handklæðaofn.
- Þvottahús með 60x60 flísum á gólfi úr álfaborg.
- Sett upp innrétting í þvottahúsi ásamt skolvaski síðla 2024
- Teppi á stiga í anddyri úr Parki, teppi á risi einnig úr Parki.
- Forstofa flísalögð með 60x60 flísum úr Álfaborg.
- Stórir hvítir fataskápar í anddyri.
- Ofnar endurnýjaðir.
- Eldhús endurnýjað með granít á borðum, undirlímdur vaskur, niðurlímt spanhelluborð, nýr bakaraofn og ísskápur sem gæti selst með.
Að utan:
- Húsið málað að utan 2022
- Þak háþrýstiþvegið og málað 2022
- Þakdúkur endurnýjaður á stigahúsi, fyrri part 2022
- Skipt um þakrennur að framan og aftan sumarið 2024
Góð ráð fyrir kaupendur / seljendur
Gjöld sem kaupandi þarf að standa straum af vegna kaupanna:
1. Stimpilgjald af kaupsamningi - 0.8% af heildarfasteignamati / 1.6% fyrir lögaðila. (0.4% við fyrstu kaup einstaklinga).
2. Þinglýsingagjald af kaupsamningi, veðskuldabréfi, veðleyfi o.fl.- kr. 2.700 af hverju skjali.
3. Lántökugjald lánastofnunar - samanber gjaldskrá viðkomandi lánastofnunar.
4. Umsýsluþóknun til fasteignasölu, sbr.kauptilboð.
Um skoðunarskyldu:
Í lögum um fasteignakaup nr. 40/2002 er kveðið á um ríka skoðunarskyldu kaupenda á fasteignum. Pálsson fasteignasala bendir væntanlegum kaupendum á að kynna sér vel ástand fasteigna við skoðun og fyrir tilboðsgerð og ef þurfa þykir að leita til sérfræðinga um nánari ástandsskoðun.
Ár
Fasteignamat
Kaupverð
Stærð
Fermetraverð
26. mar. 2024
100.850.000 kr.
92.450.000 kr.
179.6 m²
514.755 kr.
11. feb. 2022
68.500.000 kr.
69.000.000 kr.
179.6 m²
384.187 kr.
17. júl. 2017
39.700.000 kr.
51.500.000 kr.
179.6 m²
286.748 kr.
30. maí. 2014
35.350.000 kr.
30.000.000 kr.
179.6 m²
167.038 kr.
2. ágú. 2011
27.800.000 kr.
26.100.000 kr.
179.6 m²
145.323 kr.
21. feb. 2008
29.415.000 kr.
30.000.000 kr.
179.6 m²
167.038 kr.
Byggt á upplýsingum úr Þjóðskrá Íslands frá 2006-2025