Upplýsingar
Byggt 2024
81,8 m²
3 herb.
1 baðherb.
2 svefnh.
Sameiginl. inngangur
Bílastæði
Lyfta
Lýsing
ÍBÚÐIN FELLUR UNDIR REGLUR HMS UM HLUTDEILDARLÁN
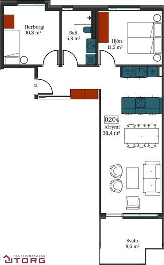
Fasteignasalan TORG kynnir: Nýbygging við Áshamar 16-18, Hafnarfirði. Eignin er íbúð á annarri hæð og er 3ja herbergja og 81,8 fm, þar af 7,2 fm geymsla í sameign. Ísskápur og innbyggð uppþvottavél fylgir. Sameiginlegur inngangur og 8,6 fm svalir út frá stofu. Íbúðinni fylgir stæði (B075) í lokuðum bílakjallara. Stutt er í alla helstu þjónustu. Afhending er við kaupsamning. Íbúðir skilast fullbúin samkvæmt byggingastigi 7, parket á gólfum nema í votrýmum, sem verða flísalögð. BÓKIÐ SKOÐUN – MATTHILDUR LGFS SÍMI 690 4966 - EMAIL MATTHILDUR@FSTORG.IS - SÆKJA SÖLUYFIRLIT HÉR.
Allar íbúðir í Áshamri 12 – 26 hafa hlotið vottun Norræna umhverfismerkisins leyfi númer: 1089 0319 samkvæmt viðmiðunarreglum um nýbyggingar
Nánari lýsing:
Anddyri með fataskáp.
Alrými með stofu og eldhúsi, innréttingar í eldhúsi eru frá HTH innréttingum eða sambærilegum, hvítar og ljós-ask litaðar. Spanhelluborð, gufugleypir/eyjuháfur, ísskápur og innbyggð uppþvottavél frá AEG eða sambærilegu. Vönduð blöndunartæki.
Gengið er út á 8,6 fm svalir frá stofu.
Tvö rúmgóð svefnherbergi með fataskápum.
Baðherbergi er með hvítri innréttingu og efri speglaskáp, upphengdu salerni og sturtu.
Þvottaaðstaða er á baðherbergi.
Sér geymsla í sameign.
Sér stæði í bílageymslu, merkt B075
Nánari upplýsingar veitir Matthildur Sunna Þorláksdóttir lögfræðingur og löggiltur fasteignasali í síma 690 4966 eða matthildur@fstorg.is
Nánar um hverfið (tekið af heimasíðu fyrir áshamar 12-26)
Áshamar 12-26 í Hamranesi er kjarni sex nútímalegra fjölbýlishúsa með 154 íbúðum í hverfi þar sem þegar hefur byggð upp þjónustu fyrir íbúa. Vellirnir/Skarðshlíð skarta tveimur grunnskólum og fjórum leikskólum en einnig er gert ráð fyrir að það komi grunnskóli og tveir fjögurra deilda leikskólar auk hjúkrunar- og heilsugæslustöð í Hamranesið.
Íbúðirnar eru tveggja til fjögurra herbergja. Breytt úrval fyrir allar gerðir fjölskyldna þar sem hugað er að öryggi í umferðinni með góðum göngustígum og gangnakerfi. Húsin eru nærri náttúruperlum sem eru vinsælar til útivistar.
Kaupandi greiðir skipulagsgjald af eigninni sem nemur 0,3% af brunabótamati og leggst á eftir að endanlegt brunabótamat hefur fengist á eignina.
Forsendur söluyfirlits:
Söluyfirlit er samið af fasteignasala í samræmi við ákvæði laga nr. 70/2015. Þær upplýsingar sem fram koma í söluyfirliti þessu eru sóttar í opinberar skrár, til seljanda sjálfs og eftir atvikum til húsfélags. Seljandi veitir upplýsingar um eign í samræmi við upplýsingaskyldu laga um fasteignakaup nr. 40/2002. Fasteignasali sannreynir að þær upplýsingar séu réttar með sjónskoðun á eigninni. Fasteignasali getur ekki fullyrt um ástand og eiginleika þeirra hluta fasteigna sem ekki eru aðgengilegir og sjást ekki berum augum, t.d. lagnir, dren, skólp og þak.
Gjöld sem kaupandi þarf að standa straum af vegna kaupanna:
Stimpilgjald af kaupsamningi sem er hlutfall af fasteignamati. Stimpilgjald er 0,8% fyrir einstaklinga (0,4% við fyrstu kaup m.v. að lágmarki 50% eignarhlut) og 1,6% fyrir lögaðila. Þinglýsingargjald hvers skjals er kr. 2.700,-. Lántökugjald lánastofnunar skv. gjaldskrá viðkomandi lánveitanda. Umsýsluþóknun fasteignasölu skv. gjaldskrá. Ef um nýbyggingu er að ræða greiðir kaupandi skipulagsgjald, 0,3% af brunabótamati, þegar það er lagt á.
TORG fasteignasala bendir fasteignakaupendum á ríka skoðunarskyldu kaupenda sem kveðið er á í lögum um fasteignakaup nr. 40/2002. Skorað er á kaupendur að kynna sér vandlega ástand fasteigna og nýta til þess aðstoð sérfræðinga. Sömuleiðis er bent á upplýsingaskyldu seljanda samanber 26.gr. Laga nr.40/2002 um fasteignakaup og 25.gr. laga nr.26/1994 um fjöleignarhús. Seljanda er bent á að kynna sér tilvitnaðar lagagreinar.
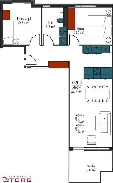
Fasteignasalan TORG kynnir: Nýbygging við Áshamar 16-18, Hafnarfirði. Eignin er íbúð á annarri hæð og er 3ja herbergja og 81,8 fm, þar af 7,2 fm geymsla í sameign. Ísskápur og innbyggð uppþvottavél fylgir. Sameiginlegur inngangur og 8,6 fm svalir út frá stofu. Íbúðinni fylgir stæði (B075) í lokuðum bílakjallara. Stutt er í alla helstu þjónustu. Afhending er við kaupsamning. Íbúðir skilast fullbúin samkvæmt byggingastigi 7, parket á gólfum nema í votrýmum, sem verða flísalögð. BÓKIÐ SKOÐUN – MATTHILDUR LGFS SÍMI 690 4966 - EMAIL MATTHILDUR@FSTORG.IS - SÆKJA SÖLUYFIRLIT HÉR.
Allar íbúðir í Áshamri 12 – 26 hafa hlotið vottun Norræna umhverfismerkisins leyfi númer: 1089 0319 samkvæmt viðmiðunarreglum um nýbyggingar
Nánari lýsing:
Anddyri með fataskáp.
Alrými með stofu og eldhúsi, innréttingar í eldhúsi eru frá HTH innréttingum eða sambærilegum, hvítar og ljós-ask litaðar. Spanhelluborð, gufugleypir/eyjuháfur, ísskápur og innbyggð uppþvottavél frá AEG eða sambærilegu. Vönduð blöndunartæki.
Gengið er út á 8,6 fm svalir frá stofu.
Tvö rúmgóð svefnherbergi með fataskápum.
Baðherbergi er með hvítri innréttingu og efri speglaskáp, upphengdu salerni og sturtu.
Þvottaaðstaða er á baðherbergi.
Sér geymsla í sameign.
Sér stæði í bílageymslu, merkt B075
Nánari upplýsingar veitir Matthildur Sunna Þorláksdóttir lögfræðingur og löggiltur fasteignasali í síma 690 4966 eða matthildur@fstorg.is
Nánar um hverfið (tekið af heimasíðu fyrir áshamar 12-26)
Áshamar 12-26 í Hamranesi er kjarni sex nútímalegra fjölbýlishúsa með 154 íbúðum í hverfi þar sem þegar hefur byggð upp þjónustu fyrir íbúa. Vellirnir/Skarðshlíð skarta tveimur grunnskólum og fjórum leikskólum en einnig er gert ráð fyrir að það komi grunnskóli og tveir fjögurra deilda leikskólar auk hjúkrunar- og heilsugæslustöð í Hamranesið.
Íbúðirnar eru tveggja til fjögurra herbergja. Breytt úrval fyrir allar gerðir fjölskyldna þar sem hugað er að öryggi í umferðinni með góðum göngustígum og gangnakerfi. Húsin eru nærri náttúruperlum sem eru vinsælar til útivistar.
Kaupandi greiðir skipulagsgjald af eigninni sem nemur 0,3% af brunabótamati og leggst á eftir að endanlegt brunabótamat hefur fengist á eignina.
Forsendur söluyfirlits:
Söluyfirlit er samið af fasteignasala í samræmi við ákvæði laga nr. 70/2015. Þær upplýsingar sem fram koma í söluyfirliti þessu eru sóttar í opinberar skrár, til seljanda sjálfs og eftir atvikum til húsfélags. Seljandi veitir upplýsingar um eign í samræmi við upplýsingaskyldu laga um fasteignakaup nr. 40/2002. Fasteignasali sannreynir að þær upplýsingar séu réttar með sjónskoðun á eigninni. Fasteignasali getur ekki fullyrt um ástand og eiginleika þeirra hluta fasteigna sem ekki eru aðgengilegir og sjást ekki berum augum, t.d. lagnir, dren, skólp og þak.
Gjöld sem kaupandi þarf að standa straum af vegna kaupanna:
Stimpilgjald af kaupsamningi sem er hlutfall af fasteignamati. Stimpilgjald er 0,8% fyrir einstaklinga (0,4% við fyrstu kaup m.v. að lágmarki 50% eignarhlut) og 1,6% fyrir lögaðila. Þinglýsingargjald hvers skjals er kr. 2.700,-. Lántökugjald lánastofnunar skv. gjaldskrá viðkomandi lánveitanda. Umsýsluþóknun fasteignasölu skv. gjaldskrá. Ef um nýbyggingu er að ræða greiðir kaupandi skipulagsgjald, 0,3% af brunabótamati, þegar það er lagt á.
TORG fasteignasala bendir fasteignakaupendum á ríka skoðunarskyldu kaupenda sem kveðið er á í lögum um fasteignakaup nr. 40/2002. Skorað er á kaupendur að kynna sér vandlega ástand fasteigna og nýta til þess aðstoð sérfræðinga. Sömuleiðis er bent á upplýsingaskyldu seljanda samanber 26.gr. Laga nr.40/2002 um fasteignakaup og 25.gr. laga nr.26/1994 um fjöleignarhús. Seljanda er bent á að kynna sér tilvitnaðar lagagreinar.