Löggiltir fasteignasalar innan Félags fasteignasala:
Ástþór Reynir Guðmundsson
Vigdís R. S. Helgadóttir
Guðbjörg Helga Jóhannesdóttir
Gylfi Jens Gylfason
Sigrún Matthea Sigvaldadóttir
Sveinn Gíslason
Páll Guðmundsson
Þórarinn Arnar Sævarsson
Berglind Hólm Birgisdóttir
Þorsteinn Gíslason
Guðrún Lilja Tryggvadóttir
Brynjar Ingólfsson
Guðný Þorsteinsdóttir
Bjarni Blöndal
Þorsteinn Ólafs
Þórdís Björk Davíðsdóttir
Jóhann Kristinn Jóhannesson
Bjarný Björg Arnórsdóttir
Salvör Þóra Davíðsdóttir
Magga Sigríður Gísladóttir
Upplýsingar
Verðsaga
Byggt 2003
86,4 m²
2 herb.
1 baðherb.
1 svefnh.
Þvottahús
Sérinngangur
Lýsing
Magnús Már Lúðvíksson og RE/MAX fasteignasala kynna: Fallega og vel skipulagða 2 herbergja íbúð á 1. hæð með sérinngangi og rúmgóðum palli í suður.
Bókið skoðun hjá Magga í síma 699-2010 eða maggi@remax.is
Nánari lýsing eignar:
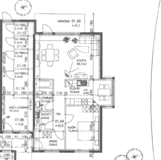
Anddyri: Flísar á gólfi, fataskápar.
Þvottahús: Flísar á gólfi, stæði fyrir þvottavél og þurrkara, skolvaskur.
Hjónaherbergi: Parket á gólfi, rúmgott, mjög gott skápapláss.
Baðherbergi: Flísalagt í hólf og gólf, salerni, sturtu ásamt hertu glerskilrúmi, handklæðaofn, innrétting undir og við handlaug, spegill ásamt góðri innfelldri lýsingu.
Eldhús: Parket á gólfi, gott skápa- og borðpláss, tengi fyrir uppþvottavél, ofn í vinnuhæð, helluborð ásamt gufugleypi, góður borðkrókur.
Stofa: Parket á gólfi, rúmgóð og björt, útgengt út á rúmgóða timburverönd með skjólveggjum.
Geymsla: 5,9 fm. í sameign.
Hjóla- og vagnageymsla: Sameiginleg í sameign.
Um er að ræða bjarta og fallega íbúð á frábærum stað þar sem stutt er í leikskóla og grunnskóla
Fyrirhugað fasteignamat 2026, 53.050.000 kr.
Frekari upplýsingar veitir Magnús Már Lúðvíksson löggiltur fasteignasali í síma 699-2010 eða maggi@remax.is
Bókið skoðun hjá Magga í síma 699-2010 eða maggi@remax.is
Nánari lýsing eignar:
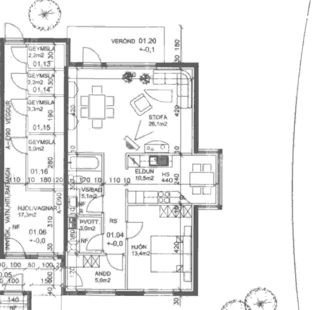
Anddyri: Flísar á gólfi, fataskápar.
Þvottahús: Flísar á gólfi, stæði fyrir þvottavél og þurrkara, skolvaskur.
Hjónaherbergi: Parket á gólfi, rúmgott, mjög gott skápapláss.
Baðherbergi: Flísalagt í hólf og gólf, salerni, sturtu ásamt hertu glerskilrúmi, handklæðaofn, innrétting undir og við handlaug, spegill ásamt góðri innfelldri lýsingu.
Eldhús: Parket á gólfi, gott skápa- og borðpláss, tengi fyrir uppþvottavél, ofn í vinnuhæð, helluborð ásamt gufugleypi, góður borðkrókur.
Stofa: Parket á gólfi, rúmgóð og björt, útgengt út á rúmgóða timburverönd með skjólveggjum.
Geymsla: 5,9 fm. í sameign.
Hjóla- og vagnageymsla: Sameiginleg í sameign.
Um er að ræða bjarta og fallega íbúð á frábærum stað þar sem stutt er í leikskóla og grunnskóla
Fyrirhugað fasteignamat 2026, 53.050.000 kr.
Frekari upplýsingar veitir Magnús Már Lúðvíksson löggiltur fasteignasali í síma 699-2010 eða maggi@remax.is
Ár
Fasteignamat
Kaupverð
Stærð
Fermetraverð
11. jún. 2021
30.500.000 kr.
30.000.000 kr.
86.4 m²
347.222 kr.
Byggt á upplýsingum úr Þjóðskrá Íslands frá 2006-2025