Upplýsingar
Byggt 2024
53,4 m²
2 herb.
1 baðherb.
1 svefnh.
Sérinngangur
Lýsing
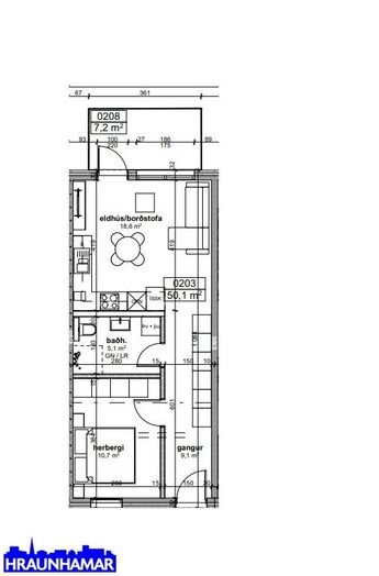
Hraunhamar fasteignasala kynnir í einkasölu fallega 53,4 fm tveggja herbergja íbúð á efri hæð í nýbyggingu í Stekkjarbergi 11 í Setbergshverfinu í Hafnarfirði. Frábær staðsetning á skjólgóðum og fallegum stað í Setbergshverfinu, í göngufæri við skóla, leikskóla og verslun.
Íbúðin er afhent fullbúin með gólfefnum, innbyggðum ískáp og uppþvottavél.
Nánari lýsing:
Anddyri með flísum á gólfi og fataskáp.
Gangur með harðparketi á gólfi.
Stofa/eldhús er í alrými og með harðparketi á gólfi. Eldhúsinnrétting er frá HTH og öll tæki þ.e spanhelluborð, bakraofn, vifta, ísskápur og uppþvottavél frá Ormsson. Útgengt frá alrými út á rúmgóðar svalir.
Hjónaherbergi er með harðparketi á gólfi og góðum fataskápum.
Flísalagt baðherbergi með walk-in sturtu. Innbyggð sturtæki frá Ísleifi Jónssyni ehf, innrétting með handlaug og speglaskáp frá HTH. Tenging fyrir þvottavél.
Köldgeymsla í sér geymsluhúsi á lóð.
Húsið er byggt með forsteyptum einingum frá BM Vallá. Sameiginleg bílastæði eru á lóð og geymslur verða í sérhúsi á lóð. Gólfefni eru harðparket og flísar.
Næg bílastæði á sameiginlegri lóð.
Kaupendur greiða skipulagsgjald sem er 0,3% af brunabótamati þegar það verður lagt á.
Nánari upplýsingar má finna í skilalýsingu.
Bókið skoðun hjá sölumönnum Hraunhamars:
Einar Örn Ágústsson, löggiltur fasteignasali, s. 888-7979, einar@hraunhamar.is
Hlynur Halldórsson, löggiltur fasteignasali, s. 698-2603, hlynur@hraunhamar.is
Glódís Helgadóttir, löggiltur fasteignasali, s. 659-0510, glodis@hraunhamar.is
Helgi Jón Harðarson, sölust. s. 893-2233, helgi@hraunhamar.is
Gjöld sem kaupandi þarf að standa straum af vegna kaupanna:
1. Stimpilgjald af kaupsamningi, fyrstu kaup (0,4%), almenn kaup (0,8%), lögaðilar (1,6%) af heildarfasteignamati.
2. Þinglýsingargjald af kaupsamningi, veðskuldabréfi, mögulegu veðleyfi o.fl. – 3.800 kr. af hverju skjali.
3. Lántökugjald lánastofnunar er skv. verðskrá viðkomandi lánastofnunar.
4. Umsýslugjald til fasteignasölu skv. þjónustusamningi
Hraunhamar er elsta fasteignasala Hafnarfjarðar, stofnuð 1983.
Hraunhamar, í fararbroddi í rúm 40 ár – Hraunhamar.is
Smelltu hér til að fá frítt söluverðmat.
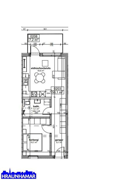
Íbúðin er afhent fullbúin með gólfefnum, innbyggðum ískáp og uppþvottavél.
Nánari lýsing:
Anddyri með flísum á gólfi og fataskáp.
Gangur með harðparketi á gólfi.
Stofa/eldhús er í alrými og með harðparketi á gólfi. Eldhúsinnrétting er frá HTH og öll tæki þ.e spanhelluborð, bakraofn, vifta, ísskápur og uppþvottavél frá Ormsson. Útgengt frá alrými út á rúmgóðar svalir.
Hjónaherbergi er með harðparketi á gólfi og góðum fataskápum.
Flísalagt baðherbergi með walk-in sturtu. Innbyggð sturtæki frá Ísleifi Jónssyni ehf, innrétting með handlaug og speglaskáp frá HTH. Tenging fyrir þvottavél.
Köldgeymsla í sér geymsluhúsi á lóð.
Húsið er byggt með forsteyptum einingum frá BM Vallá. Sameiginleg bílastæði eru á lóð og geymslur verða í sérhúsi á lóð. Gólfefni eru harðparket og flísar.
Næg bílastæði á sameiginlegri lóð.
Kaupendur greiða skipulagsgjald sem er 0,3% af brunabótamati þegar það verður lagt á.
Nánari upplýsingar má finna í skilalýsingu.
Bókið skoðun hjá sölumönnum Hraunhamars:
Einar Örn Ágústsson, löggiltur fasteignasali, s. 888-7979, einar@hraunhamar.is
Hlynur Halldórsson, löggiltur fasteignasali, s. 698-2603, hlynur@hraunhamar.is
Glódís Helgadóttir, löggiltur fasteignasali, s. 659-0510, glodis@hraunhamar.is
Helgi Jón Harðarson, sölust. s. 893-2233, helgi@hraunhamar.is
Gjöld sem kaupandi þarf að standa straum af vegna kaupanna:
1. Stimpilgjald af kaupsamningi, fyrstu kaup (0,4%), almenn kaup (0,8%), lögaðilar (1,6%) af heildarfasteignamati.
2. Þinglýsingargjald af kaupsamningi, veðskuldabréfi, mögulegu veðleyfi o.fl. – 3.800 kr. af hverju skjali.
3. Lántökugjald lánastofnunar er skv. verðskrá viðkomandi lánastofnunar.
4. Umsýslugjald til fasteignasölu skv. þjónustusamningi
Hraunhamar er elsta fasteignasala Hafnarfjarðar, stofnuð 1983.
Hraunhamar, í fararbroddi í rúm 40 ár – Hraunhamar.is
Smelltu hér til að fá frítt söluverðmat.