Löggiltir fasteignasalar innan Félags fasteignasala:
Sigurður Maack Gunnarsson
Svanþór Einarsson
Theodór Emil Karlsson
Steingrímur Benediktsson
Vista
parhús

Lyngholt 11

190 Vogar

96.400.000 kr.

565.396 þ.kr./m2
Fasteignanúmer

F2368149

Fasteignamat

86.700.000 kr.

Brunabótamat

92.000.000 kr.

Áhvílandi

0 kr.

Arion banki – Reikna lán
Upplýsingar
svg
Byggt 2022
svg
170,5 m²
svg
4 herb.
svg
1 baðherb.
svg
3 svefnh.
svg
Þvottahús
svg
Bílskúr
svg
Sérinngangur
svg
Laus strax

Lýsing

** Hafðu samband og bókaðu tíma fyrir skoðun - Laust strax - Svanþór Einarsson, löggiltur fasteignasali - svanthor@fastmos.is eða 698-8555 - Theodór Emil Karlsson, löggiltur fasteignasali - teddi@fastmos.is eða 690-8040- Steingrímur Benediktsson, löggiltur fasteignasali - steingrimur@fastmos.is eða 862-9416 **

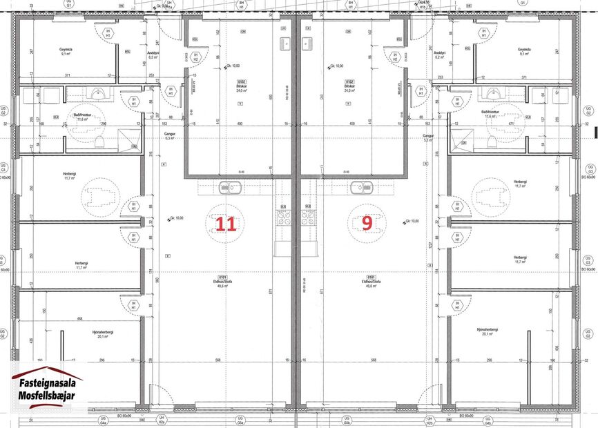
FASTMOS S: 586-8080 kynnir: Fallegt 170,5 m2, 4-5 herbergja parhús með bílskúr við Lyngholt 11 í Vogum á Vatnsleysuströnd. Eignin er skráð 170,5 m2, þar af parhús 143,3 m2 og bílskúr 27,2 m2. Eignin skiptist í þrjú svefnherbergi, geymslu með glugga (hægt er að nota sem herbergi), baðherbergi, þvottahús, forstofu, eldhús, stofu, borðstofu og bílskúr. Eignin afhendist fullbúin og er laus við kaupsamning. Lóð er frágengin með hellulagðri verönd, hellulögðu bílaplani og grasi. Snjóbræðsla er í bílaplani með lokuðu frostlaugskerfi.

Smelltu hér til að fá söluyfirlit sent

Nánari lýsing:
Forstofa er með flísum á gólfi og fataskáp. Úr forstofu er innangengt inn í bílskúr og geymslu/herbergi. 
Stofa/borðstofa er í opnu rými með eldhúsi. Parket á gólfi. Úr stofu er gengið út á hellulagða verönd og bakgarð þar sem gert er ráð fyrir heitum potti i bakgarði.
Eldhús er með fallegri innréttingu. Í innréttingu er span helluborð, bakaraofn í vinnuhæð, örbylgjuofn og ísskápur. Gert er ráð fyrir uppþvottavél. 
Geymsla er með glugga og flísum á gólfi. Hægt að nýta sem herbergi.
Svefnherbergi nr. 1  er með parketi á gólfi og fataskáp.
Svefnherbergi nr. 2 er með parketi á gólfi og fataskáp.
Svefnherbergi nr. 3 er mjög rúmgott, með parketi á gólfi og fataherbergi/fataskáp
Baðherbergi er flísalagt. Á baði er vegghengt salerni, 'walk in' sturta, handklæðaofn og hvít innrétting. Innaf er þvottaherbergi
Þvottaherbergi er inn af baðherberginu. 
Bílskúr er með epoxy á gólfi. Er skráður 27,2 m2.

Að utan: 
Parhús á einni hæð með bílskúr byggt úr forsteyptum einingum. Útveggir eru klæddir forsteyptri veðurkápu að utanverðu. Þak er varið með PVC dúk með malarfargi. Gluggar eru Ál-tré með tvöföldu K-gleri. Gert er ráð fyrir 2 bílastæðum á lóðinni, 1 í bílskúr. Steypt, opin sorpskýli eru komin á lóð.

Kaupandi greiðir 0,3% skipulagsgjald sem er innheimt við endanlegt brunabótarmat. Vinsamlega athugið að myndirnar í auglýsingu gætu átt við annað hús sambærilegt.

Verð kr. 96.400.000,-

 



Um skoðunar- og aðgæsluskyldu:
Í lögum um fasteignakaup nr. 40/2002 er kveðið á um ríka skoðunarskyldu kaupenda á fasteignum. Fasteignasala Mosfellsbæjar skorar því á væntanlega kaupendur að kynna sér vel ástand fasteigna fyrir kauptilboðsgerð og leita til þar til bærra sérfræðinga um nánari skoðun ef með þarf.

Forsendur söluyfirlits:
Söluyfirlit er samið af fasteignasala í samræmi við ákvæði laga nr. 70/2015. Þær upplýsingar sem fram koma í söluyfirliti þessu eru sóttar í opinberar skrár, til seljanda sjálfs og eftir atvikum til húsfélags. Seljandi veitir upplýsingar um eign í samræmi við upplýsingaskyldu laga um fasteignakaup nr. 40/2002. Fasteignasali sannreynir að þær upplýsingar séu réttar með sjónskoðun á eigninni.
Fasteignasali getur ekki fullyrt um ástand og eiginleika þeirra hluta fasteigna sem ekki eru aðgengilegir og sjást ekki berum augum, t.d. lagnir, dren, skólp og þak.

Gjöld sem kaupandi þarf að greiða vegna kaupa:
1. Stimpilgjald af kaupsamningi sem er hlutfall af fasteignamati. Stimpilgjald er 0,8% fyrir einstaklinga (0,4% við fyrstu kaup) og 1,6% fyrir lögaðila.
2. Þinglýsingargjald af kaupsamningi, veðskuldabréfum, veðleyfum o.fl. Þinglýsingargjald er kr. 2.700,- fyrir hvert skjal.
3. Lántökugjald lánastofnunar - er skv. gjaldskrá viðkomandi lánastofnunar.
4. Umsýslugjald til fasteignasölu skv. kauptilboði.
5. Þegar um nýbyggingu er að ræða greiðir kaupandi skipulagsgjald, 0,3% af endanlegu brunabótamáti, þegar það er lagt á af viðkomandi sveitarfélagi.

img
Svanþór Einarsson
Lögg.fasteignasali innan félags fasteignasala
Fasteignasala Mosfellsbæjar
Þverholti 2, 270 Mosfellsbæ
Fasteignasala Mosfellsbæjar

Fasteignasala Mosfellsbæjar

Þverholti 2, 270 Mosfellsbæ
phone
img

Svanþór Einarsson

Þverholti 2, 270 Mosfellsbæ
Fasteignasala Mosfellsbæjar

Fasteignasala Mosfellsbæjar

Þverholti 2, 270 Mosfellsbæ
phone

Svanþór Einarsson

Þverholti 2, 270 Mosfellsbæ