Upplýsingar
Verðsaga
Byggt 2023
81,2 m²
3 herb.
1 baðherb.
2 svefnh.
Útsýni
Hjólastólaaðgengi
Bílastæði
Lyfta
Laus strax
Lýsing
Betri Stofan fasteignasala Borgartúni 30 kynnir:
Glæsilegar og vel skipulagðar 2ja, 3ja og 4ra herbergja íbúðir á bilinu 58-124,3 fm með stæði í lokaðri bílageymslu í nýju fjölbýli við Áshamar 12-14 og 16-18 í Hamranesi í Hafnarfirði. Íbúðirnar skilast vel innréttaðar og fullbúnar með gólfefnum. Afhending: Haust 2024
-MÖGULEIKI Á HLUTDEILDARLÁNI FRÁ HMS-
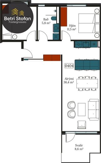
Um er að ræða þriggja herbergja, 81,2 fm. íbúð nr. 04-04, (fnr. 252-4971), á 4. hæð í lyftuhúsi með þvottaaðstöðu og svölum (suður) auk 6,6 fm. geymslu og stæðis í bílageymslu.
- Innréttingar eru frá HTH, annars vegar spónlagðar og hins vegar með hvítu yfirborði.
- Eldhústæki: Spanhelluborð með 4 hellum, blástursofn með stáláferð, gufugleypir/eyjuháfur eftir því sem við á. Gert er ráð fyrir innbyggðri uppþvottavél.
- Baðherbergi er með stílhreinar hvítar innréttingar, speglaskáp fyrir ofan vask og er flísalagt að hluta. Gert er ráð fyrir þvottavél og þurrkara með rakaþéttingu.
- Geymsla fylgir öllum íbúðum.
- Sér stæði í bílageymslu fylgir öllum íbúðum.
- Lagnaleið fyrir mögulega rafhleðslutengingu er við hvert bílastæði.
Nánari upplýsingar veitir Þórir Skarphéðinsson, lögmaður og lgf. í síma 8449591. - netfang: thorir@betristofan.is.
Heimasíða verkefnis þar sem jafnframt kemur fram hvaða íbúðir eru lausar: www.ashamar12-26.is
Byggingaraðili verkefnis er öflugur og traustur verktaki til fjölda ára: Eykt ehf. (www.eykt.is)
Allur frágangur, uppbygging og orkunotkun hússins tekur mið af leiðbeinandi stigakröfum Svansins: www.svanurinn.is
Skilalýsing seljanda: https://www.ashamar12-26.is/pdf/ashamar-12-18-skilalysing-2023-10-27.pdf
Bókið skoðun:
Þórir Skarphéðinsson, lögmaður og löggiltur fasteignasali, sími 844-9591 eða thorir@betristofan.is
Telma Rut Frímannsdóttir, Aðstoðarmaður fasteignasala í síma 772-3555 - eða telma@betristofan.is
Glæsilegar og vel skipulagðar 2ja, 3ja og 4ra herbergja íbúðir á bilinu 58-124,3 fm með stæði í lokaðri bílageymslu í nýju fjölbýli við Áshamar 12-14 og 16-18 í Hamranesi í Hafnarfirði. Íbúðirnar skilast vel innréttaðar og fullbúnar með gólfefnum. Afhending: Haust 2024
-MÖGULEIKI Á HLUTDEILDARLÁNI FRÁ HMS-
Um er að ræða þriggja herbergja, 81,2 fm. íbúð nr. 04-04, (fnr. 252-4971), á 4. hæð í lyftuhúsi með þvottaaðstöðu og svölum (suður) auk 6,6 fm. geymslu og stæðis í bílageymslu.
- Innréttingar eru frá HTH, annars vegar spónlagðar og hins vegar með hvítu yfirborði.
- Eldhústæki: Spanhelluborð með 4 hellum, blástursofn með stáláferð, gufugleypir/eyjuháfur eftir því sem við á. Gert er ráð fyrir innbyggðri uppþvottavél.
- Baðherbergi er með stílhreinar hvítar innréttingar, speglaskáp fyrir ofan vask og er flísalagt að hluta. Gert er ráð fyrir þvottavél og þurrkara með rakaþéttingu.
- Geymsla fylgir öllum íbúðum.
- Sér stæði í bílageymslu fylgir öllum íbúðum.
- Lagnaleið fyrir mögulega rafhleðslutengingu er við hvert bílastæði.
Nánari upplýsingar veitir Þórir Skarphéðinsson, lögmaður og lgf. í síma 8449591. - netfang: thorir@betristofan.is.
Heimasíða verkefnis þar sem jafnframt kemur fram hvaða íbúðir eru lausar: www.ashamar12-26.is
Byggingaraðili verkefnis er öflugur og traustur verktaki til fjölda ára: Eykt ehf. (www.eykt.is)
Allur frágangur, uppbygging og orkunotkun hússins tekur mið af leiðbeinandi stigakröfum Svansins: www.svanurinn.is
Skilalýsing seljanda: https://www.ashamar12-26.is/pdf/ashamar-12-18-skilalysing-2023-10-27.pdf
Bókið skoðun:
Þórir Skarphéðinsson, lögmaður og löggiltur fasteignasali, sími 844-9591 eða thorir@betristofan.is
Telma Rut Frímannsdóttir, Aðstoðarmaður fasteignasala í síma 772-3555 - eða telma@betristofan.is
Gjöld sem kaupandi þarf að standa straum af ef að kaupum verður:
1. Stimpilgjald af fasteignamati fasteignar er 0.8%, en 0,4% fyrir fyrstu kaup og 1,6% fyrir lögaðila.
2. Þinglýsingargjald: kaupsamningi, skuldabréfi, veðleyfi, afsali o.s.frv. er kr. 2.700 af hverju skjali.
3. Lántökukostnaður samkvæmt verðskrá viðkomandi lánastofnunar.
4. Umsýslugjald til fasteignasölu skv. gjaldskrá.
Ár
Fasteignamat
Kaupverð
Stærð
Fermetraverð
14. apr. 2025
59.750.000 kr.
70.500.000 kr.
10404 m²
6.776 kr.
Byggt á upplýsingum úr Þjóðskrá Íslands frá 2006-2025