Upplýsingar
Verðsaga
Byggt 1993
93,1 m²
3 herb.
1 baðherb.
2 svefnh.
Þvottahús
Sameiginl. inngangur
Lýsing
Hraunhamar kynnir glæsilega 3ja herbergja íbúð á efstu hæð við Dvergholt 25 á Hvaleyrarholtinu í Hafnarfirði. Búið að endurnýja íbúðina alla á glæsilegan hátt.
Íbúðin er 93,1 fermetrar en þar af er geymsla 5,1 fermetrar.
✔ Frábært útsýni.
✔ Laus strax.
✔ Glæsilegt eldhús og baðherbergi.
✔ Falleg gólfefni og innihurðar.
✔ Innfelld ledlýsing í eldhúsi.
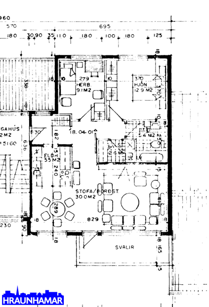
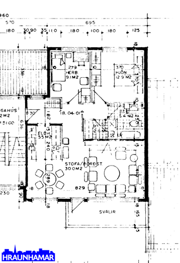
Skipting eignarinnar: Forstofa, hol, stofa, eldhús, baðherbergi, tvö svefnherbergi, þvottahús, svalir og geymsla auk reglubundinnar sameignar.
Nánari lýsing eignarinnar:
Fín forstofa.
Gott hol.
Eldhús með nýrri innréttingu, rúmgóð eyja, niðurtekið loft við eldhús með innfelldri lýsingu, nýr ísskápur og uppþvottavél í innréttingunni.
Björt og rúmgóð stofa og þaðan er utangengt á svalir. Glæsilegt útsýni þaðan til suðurs og vesturs.
Tvö fín svefnherbergi.
Nýuppgert glæsilegt baðherbergi, flísalagt með sturtuklefa, innbyggð tæki, innrétting.
Þvottahús með skolvaski.
Á jarðhæð er sérgeymsla auk reglubundinnar sameignar.
Gólfefni eru parket og flísar.
Þetta er glæsileg eign sem hefur verið öll endurnýjuð á smekklegan hátt. Eign sem vert er að skoða.
Nánari upplýsingar veitir Hlynur Halldórsson, löggiltur fasteignasali, s. 698-2603, hlynur@hraunhamar.is
Skoðunarskylda:
Í lögum um fasteignakaup nr. 40/2002 er kveðið á um ríka skoðunarskyldu kaupenda á fasteignum. Hraunhamar fasteignasala vill benda væntanlegum kaupendum á að kynna sér vel ástand fasteigna fyrir kauptilboðsgerð og ef þurfa þykir að leita til sérfræðinga fyrir nánari ástandsskoðun.
Gjöld sem kaupandi þarf að standa straum af vegna kaupanna:
1. Stimpilgjald af kaupsamningi, fyrstu kaup (0,4%), almenn kaup (0,8%), lögaðilar (1,6%) af heildarfasteignamati.
2. Þinglýsingargjald af kaupsamningi, veðskuldabréfi, mögulegu veðleyfi o.fl. – 2.700 kr. af hverju skjali.
3. Lántökugjald lánastofnunar er skv. verðskrá viðkomandi lánastofnunar.
4. Umsýslugjald til fasteignasölu skv. þjónustusamningi
Hraunhamar er elsta fasteignasala Hafnarfjarðar, stofnuð 1983.
Hraunhamar, í fararbroddi í rúm 40 ár – Hraunhamar.is
Íbúðin er 93,1 fermetrar en þar af er geymsla 5,1 fermetrar.
✔ Frábært útsýni.
✔ Laus strax.
✔ Glæsilegt eldhús og baðherbergi.
✔ Falleg gólfefni og innihurðar.
✔ Innfelld ledlýsing í eldhúsi.
Skipting eignarinnar: Forstofa, hol, stofa, eldhús, baðherbergi, tvö svefnherbergi, þvottahús, svalir og geymsla auk reglubundinnar sameignar.
Nánari lýsing eignarinnar:
Fín forstofa.
Gott hol.
Eldhús með nýrri innréttingu, rúmgóð eyja, niðurtekið loft við eldhús með innfelldri lýsingu, nýr ísskápur og uppþvottavél í innréttingunni.
Björt og rúmgóð stofa og þaðan er utangengt á svalir. Glæsilegt útsýni þaðan til suðurs og vesturs.
Tvö fín svefnherbergi.
Nýuppgert glæsilegt baðherbergi, flísalagt með sturtuklefa, innbyggð tæki, innrétting.
Þvottahús með skolvaski.
Á jarðhæð er sérgeymsla auk reglubundinnar sameignar.
Gólfefni eru parket og flísar.
Þetta er glæsileg eign sem hefur verið öll endurnýjuð á smekklegan hátt. Eign sem vert er að skoða.
Nánari upplýsingar veitir Hlynur Halldórsson, löggiltur fasteignasali, s. 698-2603, hlynur@hraunhamar.is
Skoðunarskylda:
Í lögum um fasteignakaup nr. 40/2002 er kveðið á um ríka skoðunarskyldu kaupenda á fasteignum. Hraunhamar fasteignasala vill benda væntanlegum kaupendum á að kynna sér vel ástand fasteigna fyrir kauptilboðsgerð og ef þurfa þykir að leita til sérfræðinga fyrir nánari ástandsskoðun.
Gjöld sem kaupandi þarf að standa straum af vegna kaupanna:
1. Stimpilgjald af kaupsamningi, fyrstu kaup (0,4%), almenn kaup (0,8%), lögaðilar (1,6%) af heildarfasteignamati.
2. Þinglýsingargjald af kaupsamningi, veðskuldabréfi, mögulegu veðleyfi o.fl. – 2.700 kr. af hverju skjali.
3. Lántökugjald lánastofnunar er skv. verðskrá viðkomandi lánastofnunar.
4. Umsýslugjald til fasteignasölu skv. þjónustusamningi
Hraunhamar er elsta fasteignasala Hafnarfjarðar, stofnuð 1983.
Hraunhamar, í fararbroddi í rúm 40 ár – Hraunhamar.is
Ár
Fasteignamat
Kaupverð
Stærð
Fermetraverð
16. maí. 2025
55.900.000 kr.
57.000.000 kr.
30401 m²
1.875 kr.
26. mar. 2007
17.700.000 kr.
17.700.000 kr.
93.1 m²
190.118 kr.
Byggt á upplýsingum úr Þjóðskrá Íslands frá 2006-2025