Upplýsingar
Byggt 2025
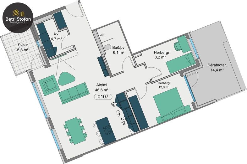
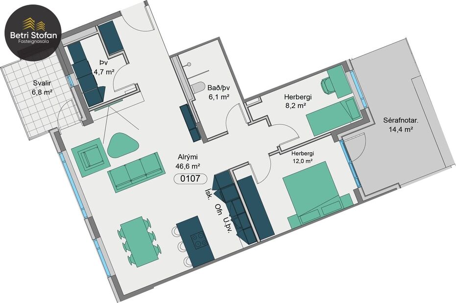
99,7 m²
3 herb.
1 baðherb.
2 svefnh.
Þvottahús
Sameiginl. inngangur
Bílastæði
Lyfta
Opið hús: 12. október 2025
kl. 15:00
til 15:30
Sölusýning laugardag og sunnudag 15.00-15:30 SÝNINGARÍBÚÐ- ÍBÚÐ 320 Vetrarbraut 4, Jason 775-1515, Guðbjörg 899-5533, Þórhallur 896-8232 , Dagrún 866-1763
Lýsing
Betri Stofan Fasteignasala kynnir: Glæsilegar nýjar íbúðir við Vetrarbraut 2-4, í nýju og heillandi hverfi við golfvöll GKG í Garðabæ.
Íbúð 107 er 99,7 fermetra íbúð á fyrstu hæð. Steinn á borðplötum eldhúsa og loftskiptikerfi í íbúð. Eigninni fylgir bílastæði í lokaðri bílageymslu merkt B60. Svalir og sérafnotareitur. Ljósmyndir eru úr sýningaríbúð (215).
https://vetrarbraut.is
Nánari lýsing:
Eignin skiptist í hol, eldhús, borðstofu og stofu í rúmgóðu og björtu alrými þaðan sem gengið er út á súðvestursvalir, tvö svefnherbergi, hjónaherbergi með góðum fataskápum, aukaherbergi, baðherbergi og þvottahús. Í sameign er hjóla og vagnageymsla ásamt 8,9 fm. sér geymslu íbúðar. Úr hjónaherbergi er gengið út á góðan sérafnotareit.
Eldhús er vel útbúið, sérsmíðaðar Voke III innréttingar, á borðplötum er kvarts steinn. Vönduð tæki eru í eldhúsi innbyggður ísskápur og uppþvottavél, helluborð í eyju og ofn í vinnuhæð, eldhús- og blöndunartæki að vandaðri gerð.
Íbúðin skilast án gólfefna utan baðherbergja og þvottahús sem skilast flísalögð.
Rými eru hönnuð með áherslu á loftgæði, hljóðvist og náttúrulega birtu. Hver íbúð hefur loftskiptikerfi sem stjórnað er innan íbúðar, slíkt eykur loftgæði og stuðlar að heilnæmu innilofti.
Húsið er klætt flísum og álkæðningu, slétt og bára. klæðningar eru í mismunandi litum, náttúrulegum jarðlitum sem tengir bygginguna umhverfinu, lögð er áhersla á að húsin séu viðhaldslétt, flísar og álklæðningar og ál/tré gluggar.
Um er að ræða bjartar og fallegar íbúðir í vandaðri nýbyggingu í einstöku umhverfi, nálægð við Golfvöll GKG, útivistarsvæði Heiðmerkur, nýja íþróttaaðstöðu Stjörnunnar svo fátt sé upptalið í skemmtilegu nýju hverfi.
Með öllum íbúðum fylgir bílastæði í lokaðri bílageymslu í það minnsta eitt fyrir hverja íbúð og fylgja bílskúrar sumum íbúðum að auki.
Vandað hefur verið að allri hönnun innan sem utan.
Byggingar eru hannaðar af Arkís, aðalhönnuður er Arnar Þór Jónsson arkitekt og hafði Thelma Guðmundsdóttir innanhúsarkitekt umsjón með innanhúshönnun. Hverfið í heild, Vetrarmýri, er hannað af Sigurði Einarssyni arkitekt og skipulagshönnuði hjá Batteríinu.
Nánari upplýsingar veita:
Þórhallur Biering Guðjónsson, í síma 896-8232, tölvupóstur thorhallur@betristofan.is
Jason Kristinn Ólafsson, í síma 775-1515, tölvupóstur jason@betristofan.is
Guðbjörg Guðmundsdóttir, í síma 899-5533, tölvupóstur gudbjorg@betristofan.is.
Dagrún Davíðsdóttir, í síma 866-1763, tölupóstur dagrun@betristofan.is
Íbúð 107 er 99,7 fermetra íbúð á fyrstu hæð. Steinn á borðplötum eldhúsa og loftskiptikerfi í íbúð. Eigninni fylgir bílastæði í lokaðri bílageymslu merkt B60. Svalir og sérafnotareitur. Ljósmyndir eru úr sýningaríbúð (215).
https://vetrarbraut.is
Nánari lýsing:
Eignin skiptist í hol, eldhús, borðstofu og stofu í rúmgóðu og björtu alrými þaðan sem gengið er út á súðvestursvalir, tvö svefnherbergi, hjónaherbergi með góðum fataskápum, aukaherbergi, baðherbergi og þvottahús. Í sameign er hjóla og vagnageymsla ásamt 8,9 fm. sér geymslu íbúðar. Úr hjónaherbergi er gengið út á góðan sérafnotareit.
Eldhús er vel útbúið, sérsmíðaðar Voke III innréttingar, á borðplötum er kvarts steinn. Vönduð tæki eru í eldhúsi innbyggður ísskápur og uppþvottavél, helluborð í eyju og ofn í vinnuhæð, eldhús- og blöndunartæki að vandaðri gerð.
Íbúðin skilast án gólfefna utan baðherbergja og þvottahús sem skilast flísalögð.
Rými eru hönnuð með áherslu á loftgæði, hljóðvist og náttúrulega birtu. Hver íbúð hefur loftskiptikerfi sem stjórnað er innan íbúðar, slíkt eykur loftgæði og stuðlar að heilnæmu innilofti.
Húsið er klætt flísum og álkæðningu, slétt og bára. klæðningar eru í mismunandi litum, náttúrulegum jarðlitum sem tengir bygginguna umhverfinu, lögð er áhersla á að húsin séu viðhaldslétt, flísar og álklæðningar og ál/tré gluggar.
Um er að ræða bjartar og fallegar íbúðir í vandaðri nýbyggingu í einstöku umhverfi, nálægð við Golfvöll GKG, útivistarsvæði Heiðmerkur, nýja íþróttaaðstöðu Stjörnunnar svo fátt sé upptalið í skemmtilegu nýju hverfi.
Með öllum íbúðum fylgir bílastæði í lokaðri bílageymslu í það minnsta eitt fyrir hverja íbúð og fylgja bílskúrar sumum íbúðum að auki.
Vandað hefur verið að allri hönnun innan sem utan.
Byggingar eru hannaðar af Arkís, aðalhönnuður er Arnar Þór Jónsson arkitekt og hafði Thelma Guðmundsdóttir innanhúsarkitekt umsjón með innanhúshönnun. Hverfið í heild, Vetrarmýri, er hannað af Sigurði Einarssyni arkitekt og skipulagshönnuði hjá Batteríinu.
Nánari upplýsingar veita:
Þórhallur Biering Guðjónsson, í síma 896-8232, tölvupóstur thorhallur@betristofan.is
Jason Kristinn Ólafsson, í síma 775-1515, tölvupóstur jason@betristofan.is
Guðbjörg Guðmundsdóttir, í síma 899-5533, tölvupóstur gudbjorg@betristofan.is.
Dagrún Davíðsdóttir, í síma 866-1763, tölupóstur dagrun@betristofan.is
Gjöld sem kaupandi þarf að standa straum af ef að kaupum verður:
1. Stimpilgjald af fasteignamati fasteignar er 0.8%, en 0,4% fyrir fyrstu kaup og 1,6% fyrir lögaðila.
2. Þinglýsingargjald: kaupsamningi, skuldabréfi, veðleyfi, afsali o.s.frv. er kr. 2.700 af hverju skjali.
3. Lántökukostnaður samkvæmt verðskrá viðkomandi lánastofnunar.
4. Umsýslugjald til fasteignasölu skv. gjaldskrá.