Löggiltir fasteignasalar innan Félags fasteignasala:
Sverrir Kristinsson
Kjartan Hallgeirsson
Guðlaugur Ingi Guðlaugsson
Daði Hafþórsson
Gunnar Helgi Einarsson
Gunnar Bergmann Jónsson
Lilja Guðmundsdóttir
Jenný Sandra Gunnarsdóttir
Kári Sighvatsson
Vista
svg

50

svg

49  Skoðendur

svg

Skráð  12. okt. 2025

fjölbýlishús

Vesturvin V3 íb 207

101 Reykjavík

131.000.000 kr.

1.051.364 þ.kr./m2
Fasteignanúmer

F2523943

Fasteignamat

10.500.000 kr.

Brunabótamat

0 kr.

Áhvílandi

0 kr.

Arion banki – Reikna lán
Upplýsingar
svg
124,6 m²
svg
4 herb.
svg
2 baðherb.
svg
Þvottahús
svg
Sameiginl. inngangur
svg
Bílastæði
svg
Lyfta
Opið hús: 26. október 2025 kl. 12:00 til 12:30

Sölumenn Eignamiðlunar taka á móti áhugasömum í móttökurými við Vesturvin 2. Sýnum allar óseldar íbúðir.

Lýsing

Eignamiðlun kynnir:

Bókaðu skoðun í sýningaraðstöðu hjá Ólafi í síma 663-2508 eða olafur@eignamidlun.is
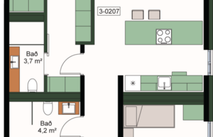
Íbúðin er 124,5 fermetra íbúð á annarri hæð í nýju glæsilegu lyftuhúsi, stofa og eldhús með eldunareyju í alrými og svalir útfrá stofu, gluggar í stofu í tvær áttir, hjónasvíta með góðu skápaplássi og sér baðherbergi, tvö auka herbergi sem mögulega mætti sameina í eitt stórt, rúmgott baðherbergi á gangi, sér þvottahús, fataskápur við inngang.


ÍBÚРVesturvin V3 íb 207 merkt 02-07 er 124.6 fm, 4 herb. íbúð í nýju glæsilegu lyftuhúsi. 

Smelltu hér til að fá nánari upplýsingar um verkefnið

Opinber skráning eignarinnar: Birt flatarmál er 124.6 fm, með sérgeymslu í sameign sem er merkt 00-42, skráð 7,5 fm. Stæði í bílageymslu merkt B-15 fylgir íbúðinni.

Eignin: Vesturvin V3, íbúð 03-0201, 66 fermetrar á annarri hæð með 7,8 fermetra geymslu merkt 03-0016 í sameign, stofa og eldhús í alrými og svalir útfrá stofu, eitt svefnherbergi með fataskap á heilum vegg, rúmgott baðherbergi með plássi fyrir þvottavél og þurrkara, fataskápur við inngang. Sérvaldar innréttingar eru í öllum íbúðum og settu hönnuðir saman nokkrar litasametningar á innréttingum. Með því að tryggja sér íbúð á byggingarstigi geta kaupendur valið á milli þriggja hönnunarþema sem bjóða allar uppá ólíkt litaval. Upplýsingar um hönnunarþemu má nálgast hér:  HÖNNUNARÞEMA

Mikill metnaður hefur verði lagður í íbúðirnar á yndisreitnum Vesturvin. Það lýsir sé meðal annars í góðu innra flæði íbúða og vönduðu efnisvali í alla staði. Meðal helstu kostum íbúðanna má nefna:
-       Hágæða ítalskar innréttingar frá Cassina
-       Borðplötur úr steini
-       Gólfsíðir gluggar
-       Gólfhiti
-       Þaksvalir í mörgum íbúða
-       Möguleiki á heitum potti fyrir hluta af íbúðum  
-       Vönduð heimilistæki frá Miele og Siemens
-       Sér baðherbergi inn af svefnherbergi í stærri íbúðum auk fataherbergja.
-       Gestasnyrting í fjölmörgum íbúðum
-       Sér þvottahús í flestum þriggja herbergja íbúðum og stærri
-       Einkabílastæði í bílakjallara fylgir mörgum íbúðum

Hönnun.
Fengnir hafa verið traustir og reynslumiklir aðilar til að sjá um framkvæmd verkefnisins og verkfræðihönnun. Jáverk ehf. mun byggja húsin og verkfræðistofurnar Mannvit og Verkhönnun sjá um verkfræðihönnun.
Mikil vinna hefur verið lögð í flæði íbúða og val á innréttingum sem spegla listrænan metnað í verkefninu sem heild.
Ítölsku innanhússhönnuðirnir hjá Studio Marco Piva hafa hannað þrjú þemu fyrir innri frágang íbúðanna sem sækja innblástur í íslenska landslagið, hugtökin eru Eimur, Sær og Blámi. Hönnuninni er ætlað að skapa einstakan lífstíl sem sameinar íslenskan arkitektúr og ítalska innanhúshönnun og glæsilegan og vandaðan hátt.
 
Útsýni
Stórkostlegt útsýni verður úr íbúðum við Ánanaust yfir Faxaflóann, Esjuna og Snæfellsnes. Af efri hæðum íbúða við Vesturgötuna verður skemmtilegt útsýni yfir gamla vesturbæinn.
 
Nánari upplýsingar veita fasteignasalar Eignamiðlunar: 588 9095
Kjartan Hallgeirsson 824-9093 kjartan@eignamidlun.is
Þórarinn M. Friðgeirsson 899-1882 thorarinn@eignamidlun.is
Brynjar Þ. Sumarliðason 896-1168 brynjar@eignamidlun.is
Ólafur H. Guðgeirsson 663-2508 olafur@eignamidlun.is
Unnar Kjartansson 867-0968 unnar@eignamidlun.is 
Lilja Guðmundsdóttir 649-3868 lilja@eignamidlun.is

***
Ábyrg þjónusta í áratugi. Eignamiðlun var stofnuð 1957 og er elsta starfandi fasteignasala á Íslandi. Reynsla, heiðarleiki og þekking á fasteignamarkaðnum eru grunnur að farsælum viðskiptum. 

Eignamiðlun Grensásvegi 11, 108 Reykjavík - Opið frá kl. 9-17 mánudaga til fimmtudaga og 9-16 á föstudögum.

Heimasíða Eignamiðlunar

Eignamiðlun á Facebook

Eignamiðlun

Eignamiðlun

Grensásvegi 11, 108 Reykjavík
Eignamiðlun

Eignamiðlun

Grensásvegi 11, 108 Reykjavík