Löggiltir fasteignasalar innan Félags fasteignasala:
Sigurður Maack Gunnarsson
Svanþór Einarsson
Theodór Emil Karlsson
Steingrímur Benediktsson
Vista
raðhús

Úugata 18

270 Mosfellsbær

143.900.000 kr.

622.944 þ.kr./m2
Fasteignanúmer

F2524792

Fasteignamat

112.000.000 kr.

Brunabótamat

0 kr.

Áhvílandi

0 kr.

Arion banki – Reikna lán
Upplýsingar
svg
231 m²
svg
7 herb.
svg
3 baðherb.
svg
6 svefnh.
svg
Þvottahús
svg
Bílskúr
svg
Sérinngangur

Lýsing

** Hafðu samband og bókaðu tíma fyrir skoðun - Svanþór Einarsson, löggiltur fasteignasali - svanthor@fastmos.is eða 698-8555 - Steingrímur Benediktsson, löggiltur fasteignasali - steingrimur@fastmos.is eða 862-9416 **

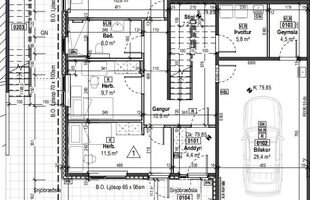
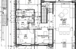
Fasteignasala Mosfellsbæjar kynnir: Nýtt og glæsilegt 231,0 m2 endaraðhús á tveimur hæðum með bílskúr í byggingu við Úugötu 18 í Mosfellsbæ. Birt stærð eignarinnar er 231,0 m2, þar af er íbúðarhluti 197,6 m2 og innbyggður bílskúr 33,4 m2. Tveir sérinngangar á jarðhæð.

Smelltu hér til að fá söluyfirlit sent

Á jarðhæð er forstofa, bílskúr, 3 svefnherbergi, baðherbergi, þvottaherbergi og geymsla. Á efri hæðinni er hjónaherbergi með sér baðherbergi, 1 svefnherbergi, 1 herbergi/sjónvarpshol, 1 baðherbergi, eldhús, stofa og borðstofa. Svalir í suðurátt og verönd fyrir aftan hús. 
Eignin afhendist samkvæmt skilalýsingu seljanda rúmlega tilbúin til innréttinga á byggingarstigi B3 (byggingarstigi 5 miðavið gamla staðalinn, ÍST 51:2001), en búið er að full mála og ganga frá rafmagni. Eignin er tilbúin til afhendingar 1.11.2025.

Verð kr. 143.900.000,- 


Skilalýsing er eftirfarandi:
Utanhúss: Raðhús á tveimur hæðum með bílskúr byggt úr forsteyptum einingum frá Steypustöðinni.
Útveggir eru klæddir forsteyptri veðurkápu að utanverðu máluð og timburklætt að hluta með bandsagaðri thermo wood timbri.
Þak er Filigran þak með ásteypulagi og bræddum tjörupappa, xpx einangrun og fargi. Viðsnúið þak.
Gluggar og hurðir: Ál/tré gluggar með tvöföldu K-gleri, ál/tré inngangshurðar/svalahurðar, ál rennihurðir og svört bílskúrshurð.
Lóð er skilað eins og hún er í dag. Á lóðinni er gert ráð fyrir bílastæðum og sorpskýli fyrir 3 sorpílát.
Svalahandrið: Dökkt gler
Stigahandrið Úti: Stál handrið máluð svört.

Innanhúss: 
Gólf eru steypt og röraslötuð.
Innveggir: Uppsettir samkvæmt teikningu, léttir innveggir úr lemga hleðslusteinum frá Steypustöðinni, sparslaðir, grunnaðir og málaðir. Veggir á baðherbergi og snyrtingu eru spartlaðir niðrí hurðahæð og ómeðhöndlaðir þar fyrir neðan.
Loft: Spörtluð og máluð.
Rafmagn: Inntak og rafmagnstafla uppsett og tengd. Rafmagn dregið í, tenglar, rofar og útiljós frágengin, annarsstaðar komin perustæði.
Lagnir: Frágangur neyslu og fráveitulagna er miðaður við samþykktar skipulagsteikningar. Inntak hita og neysluvatns klárt. Gólfhitakerfi tengt og frágengið. Neysluvatn lagt í gólf og veggi samkvæmt teikningum (komið á sína staði en ekki vegghné). Hita-, rafmagns og vatnslagnir eru lagðir í gólfplötu og steypta innveggi samkvæmt teikningum. Húsið er hitað upp með hefðbundnu gólfhitakerfi og afhendist án þráðlausra hitastýringa, Hámkarkshiti á heitu vatni er 60°C. Stofninntök neysluvatnslagna tengd og full frágengin. Pípur fyrir raf- og boðlagnir eru miðaðar við samþykktar skipulagsteikningar. Heimtaugar rafmagns og boðtauga skulu tengdar og frágengnar. Teikningar gætu hafa breyst lítillega og verður skilað inn reyndar teikningum fyrir afhendingu.

Eignin afhendist tilbúin til innréttinga samkvæmt byggingarstig B3 (byggingarstigi 5 miðavið gamla staðalinn, ÍST 51:2001). Byggingargjöld og gatnagerðargjald eru greidd. Seljandi greiðir heimtaugagjöld fyrir rafmagn og hita, en kaupandi greiðir 0,3% skipulagsgjald sem er innheimt við endanlegt brunabótarmat. Kaupandi skal fá nýja byggingastjóra og meistara að verkinu við afhendingu og sér um úttektir eftir afhendingu eignar. Allar byggingarteikningar afhendast samþykktar frá skipulagsnefnd Mosfellsbæjar til kaupanda. Kaupandi greiðir fyrir allar breytingar á teikningum sem hann kann að óska eftir. 



Um skoðunar- og aðgæsluskyldu:
Í lögum um fasteignakaup nr. 40/2002 er kveðið á um ríka skoðunarskyldu kaupenda á fasteignum. Fasteignasala Mosfellsbæjar skorar því á væntanlega kaupendur að kynna sér vel ástand fasteigna fyrir kauptilboðsgerð og leita til þar til bærra sérfræðinga um nánari skoðun ef með þarf.

Forsendur söluyfirlits:
Söluyfirlit er samið af fasteignasala í samræmi við ákvæði laga nr. 70/2015. Þær upplýsingar sem fram koma í söluyfirliti þessu eru sóttar í opinberar skrár, til seljanda sjálfs og eftir atvikum til húsfélags. Seljandi veitir upplýsingar um eign í samræmi við upplýsingaskyldu laga um fasteignakaup nr. 40/2002. Fasteignasali sannreynir að þær upplýsingar séu réttar með sjónskoðun á eigninni.
Fasteignasali getur ekki fullyrt um ástand og eiginleika þeirra hluta fasteigna sem ekki eru aðgengilegir og sjást ekki berum augum, t.d. lagnir, dren, skólp og þak.

Gjöld sem kaupandi þarf að greiða vegna kaupa:
1. Stimpilgjald af kaupsamningi sem er hlutfall af fasteignamati. Stimpilgjald er 0,8% fyrir einstaklinga (0,4% við fyrstu kaup) og 1,6% fyrir lögaðila.
2. Þinglýsingargjald af kaupsamningi, veðskuldabréfum, veðleyfum o.fl. Þinglýsingargjald er kr. 2.700,- fyrir hvert skjal.
3. Lántökugjald lánastofnunar - er skv. gjaldskrá viðkomandi lánastofnunar.
4. Umsýslugjald til fasteignasölu skv. kauptilboði.
5. Þegar um nýbyggingu er að ræða greiðir kaupandi skipulagsgjald, 0,3% af endanlegu brunabótamáti, þegar það er lagt á af viðkomandi sveitarfélagi.

img
Svanþór Einarsson
Lögg.fasteignasali innan félags fasteignasala
Fasteignasala Mosfellsbæjar
Þverholti 2, 270 Mosfellsbæ
Fasteignasala Mosfellsbæjar

Fasteignasala Mosfellsbæjar

Þverholti 2, 270 Mosfellsbæ
phone
img

Svanþór Einarsson

Þverholti 2, 270 Mosfellsbæ
Fasteignasala Mosfellsbæjar

Fasteignasala Mosfellsbæjar

Þverholti 2, 270 Mosfellsbæ
phone

Svanþór Einarsson

Þverholti 2, 270 Mosfellsbæ