Löggiltir fasteignasalar innan Félags fasteignasala:
Aðalheiður Karlsdóttir
Upplýsingar
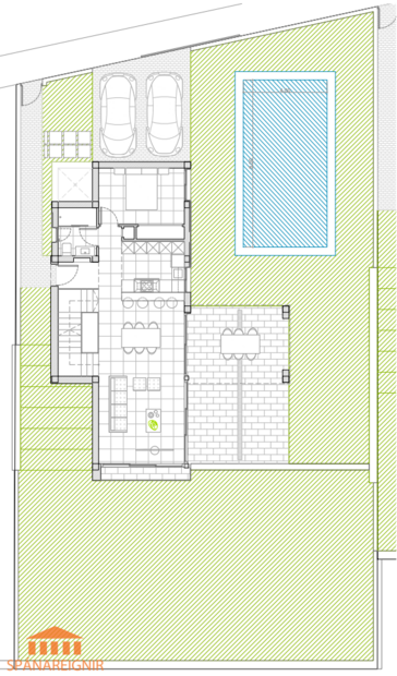
239 m²
6 herb.
3 baðherb.
4 svefnh.
Þvottahús
Sérinngangur
Lýsing
SPÁNAREIGNIR KYNNIR:
*RÚMGOTT OG FLOTT EINBÝLISHÚS*
*FRÁBÆR STAÐSETNING VIÐ GOLFVÖLL*
Stórglæsilet einbýlishús á tveimur hæðum, með stórum kjallara. Góður sér garður með einkasundlaug, möguleika á útieldhúsi og góðri grillaðstöðu sem bætir verulega við notkunarrýmið. Glæsilegt útsýni yfir La Finca Golfvöllinn. 4 svefnherbergi og 3-4 baðherbergi. Stofa, borðstofa og eldhús í opnu rými. Frábært útsýni frá þaksvölum.
Allar upplýsingar veita
Aðalheiður Karlsdóttir, löggiltur fasteignasali, adalheidur@spanareignir.is. GSM 00354 893 2495,
Berta Hawkins, löggiltur fasteignasali, berta@spanareignir.is GSM 0034 615 112 869
Frábær staðsetning, fallegt umhverfi við hinn vinsæla La Finca golfvelli auk þess sem ótal fleiri golfvellir eru í næsta nágrenni.
Örstutt göngufæri í verslanir og veitingastaði.
Um 20-30 mín akstur frá flugvellinum í Alicante og ca. 15 mín akstur á fallega strönd.
Sérlega vandað og fallegt hús með miklum möguleikum.
Á neðri hæð er rúmgóð og björt stofa og borðstofa vel tengd eldhúsi með vandaðri og fallegri innréttingu. Úr stofu er útgengi út á góða verönd sem er vel tengd sér garði með einkasundlaug og góðri grillaðstöðu Útsýni yfir La Finca golfvöllinn. Einnig er útgengi út í garðinn frá eldhúsi. Rúmgott svefnherbergi með skápum. Baðherbergi.
Á efri hæðinni er flott hjónasvíta með sérbaðherbergi og tvö svefnherbergi til viðbótar með skápum og annað baðherbergi. Útgengi út á svalir.
Kjallarinn gefur ýmsa möguleika. Hægt er að nýta hann t.d. fyrir tómstundar- eða leikjaherbergi, bíósal, billiard eða vínkjallara. Hægt er að hafa þar aukabaðherbergi, þvottahús og geymslu. Þar væri líka hægt að skapa góða vinnuaðstöðu, fyrir þá sem vilja vinna heima.
Hér er um að ræða rúmgott og glæsilegt einbýlishús á frábærum og fjölskylduvænum stað á frábæru verði. Hús, sem heldur vel utan um stórfjölskylduna, eða gefur svigrúm til að hafa góða aðstöðu fyrir ýmis áhugamál eða vinnu. Góð kaup miðað við stærð, staðsetningu og frágang.
Mögulegt er að fjármagna hluta kaupverðs með láni frá spænskum banka með hagstæðum vöxtum.
Verð: 679.000 Evrur + kostn. eða ISK98.400.000 + kostn (gengi 1Evra=145ISK)
Kostnaður við lokafrágang á kjallara fer eftir því hvernig það verður útfært.
Innifalið í verði er:
Öll rafmagnstæki í eldhúsi + þvottavél.
Frágenginn garður og einkasundlaug.
Gólfhiti á baðherbergjum.
Loftkæling/hiti.
SÉRTILBOÐ:
60 golfhringir á La Finca golfvellinum og auk þess úttekt í húsgagnaverslun fyrir 20.000 evrur.
Við höfum selt fasteignir á Spáni síðan 2001. Tryggir þekkingu, reynslu og öryggi.
Eitt besta loftslag í heimi samkvæmt Alþjóða heilbrigðistofnunni, WHO.
SKOÐUNARFERÐIR:
Við aðstoðum kaupendur við að skipuleggja skoðunarferðir og tökum þátt í kostnaði vegna þeirra, ef af viðskiptum verður.
Sjá nánar um fasteignakaup á Spáni á heimasíðunni okkar: www.spanareignir.is
Kostnaður við kaupin:
10% IVA (spænskur söluskattur) af kaupverði eignarinnar. Auk þess má gera ráð fyrir ca. 3% kostnaði vegna stimpilgjalda og annars kostnaðar við kaupin, þ.e. samtals getur kostnaður vegna kaupa á fasteign á Spáni því farið upp ca. 13%.
Eiginleikar: sér garður, einkasundlaug, kjallari, air con, útsýni,
Svæði: Costa Blanca, La Finca,
*RÚMGOTT OG FLOTT EINBÝLISHÚS*
*FRÁBÆR STAÐSETNING VIÐ GOLFVÖLL*
Stórglæsilet einbýlishús á tveimur hæðum, með stórum kjallara. Góður sér garður með einkasundlaug, möguleika á útieldhúsi og góðri grillaðstöðu sem bætir verulega við notkunarrýmið. Glæsilegt útsýni yfir La Finca Golfvöllinn. 4 svefnherbergi og 3-4 baðherbergi. Stofa, borðstofa og eldhús í opnu rými. Frábært útsýni frá þaksvölum.
Allar upplýsingar veita
Aðalheiður Karlsdóttir, löggiltur fasteignasali, adalheidur@spanareignir.is. GSM 00354 893 2495,
Berta Hawkins, löggiltur fasteignasali, berta@spanareignir.is GSM 0034 615 112 869
Frábær staðsetning, fallegt umhverfi við hinn vinsæla La Finca golfvelli auk þess sem ótal fleiri golfvellir eru í næsta nágrenni.
Örstutt göngufæri í verslanir og veitingastaði.
Um 20-30 mín akstur frá flugvellinum í Alicante og ca. 15 mín akstur á fallega strönd.
Sérlega vandað og fallegt hús með miklum möguleikum.
Á neðri hæð er rúmgóð og björt stofa og borðstofa vel tengd eldhúsi með vandaðri og fallegri innréttingu. Úr stofu er útgengi út á góða verönd sem er vel tengd sér garði með einkasundlaug og góðri grillaðstöðu Útsýni yfir La Finca golfvöllinn. Einnig er útgengi út í garðinn frá eldhúsi. Rúmgott svefnherbergi með skápum. Baðherbergi.
Á efri hæðinni er flott hjónasvíta með sérbaðherbergi og tvö svefnherbergi til viðbótar með skápum og annað baðherbergi. Útgengi út á svalir.
Kjallarinn gefur ýmsa möguleika. Hægt er að nýta hann t.d. fyrir tómstundar- eða leikjaherbergi, bíósal, billiard eða vínkjallara. Hægt er að hafa þar aukabaðherbergi, þvottahús og geymslu. Þar væri líka hægt að skapa góða vinnuaðstöðu, fyrir þá sem vilja vinna heima.
Hér er um að ræða rúmgott og glæsilegt einbýlishús á frábærum og fjölskylduvænum stað á frábæru verði. Hús, sem heldur vel utan um stórfjölskylduna, eða gefur svigrúm til að hafa góða aðstöðu fyrir ýmis áhugamál eða vinnu. Góð kaup miðað við stærð, staðsetningu og frágang.
Mögulegt er að fjármagna hluta kaupverðs með láni frá spænskum banka með hagstæðum vöxtum.
Verð: 679.000 Evrur + kostn. eða ISK98.400.000 + kostn (gengi 1Evra=145ISK)
Kostnaður við lokafrágang á kjallara fer eftir því hvernig það verður útfært.
Innifalið í verði er:
Öll rafmagnstæki í eldhúsi + þvottavél.
Frágenginn garður og einkasundlaug.
Gólfhiti á baðherbergjum.
Loftkæling/hiti.
SÉRTILBOÐ:
60 golfhringir á La Finca golfvellinum og auk þess úttekt í húsgagnaverslun fyrir 20.000 evrur.
Við höfum selt fasteignir á Spáni síðan 2001. Tryggir þekkingu, reynslu og öryggi.
Eitt besta loftslag í heimi samkvæmt Alþjóða heilbrigðistofnunni, WHO.
SKOÐUNARFERÐIR:
Við aðstoðum kaupendur við að skipuleggja skoðunarferðir og tökum þátt í kostnaði vegna þeirra, ef af viðskiptum verður.
Sjá nánar um fasteignakaup á Spáni á heimasíðunni okkar: www.spanareignir.is
Kostnaður við kaupin:
10% IVA (spænskur söluskattur) af kaupverði eignarinnar. Auk þess má gera ráð fyrir ca. 3% kostnaði vegna stimpilgjalda og annars kostnaðar við kaupin, þ.e. samtals getur kostnaður vegna kaupa á fasteign á Spáni því farið upp ca. 13%.
Eiginleikar: sér garður, einkasundlaug, kjallari, air con, útsýni,
Svæði: Costa Blanca, La Finca,