Upplýsingar
Byggt 2023
71,7 m²
3 herb.
1 baðherb.
2 svefnh.
Sérinngangur
Bílastæði
Lyfta
Laus strax
Lýsing
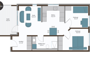
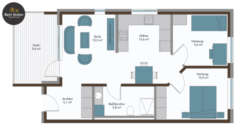
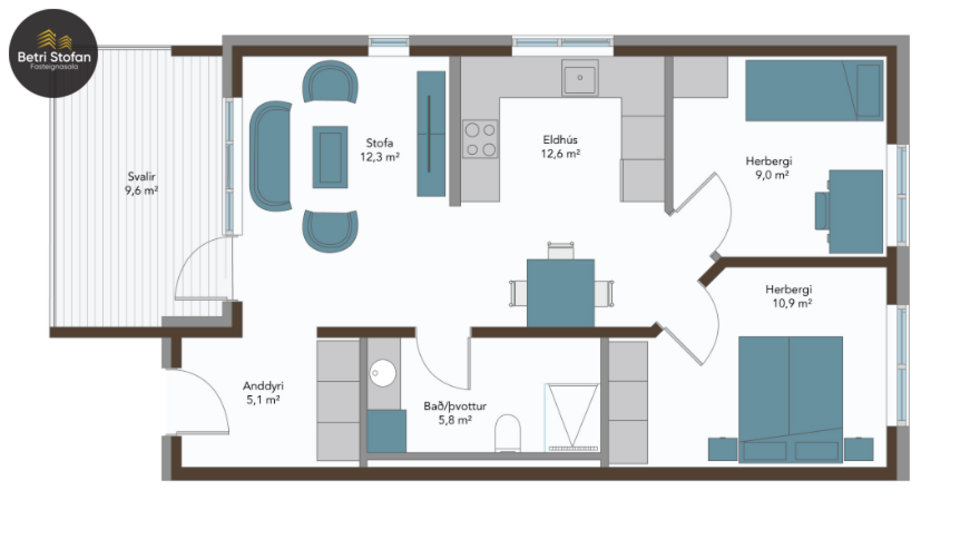
Betri Stofan Fasteignasala, Dagrún Davíðsdóttir og Jason Kristinn Ólafsson löggiltir fasteignasalar kynna nýja 3 herbergja 71,7 fm íbúð á 3 hæð ásamt geymslu og bílastæði í bílakjallara. 9,6 fm svalir sem snú til suðurs.
Íbúðirnar afhendast fullbúnar við kaupsamning, með gólfefnum, innbyggðri uppþvottavél, ísskáp með frysti og lýsing er í loftum. Ljós eru innbyggð að hluta. Baðherbergi eru flísalögð með sturtugleri, vaski, upphengdu salerni og handklæðaofn.
** Bókið einkaskoður hjá Dagrúnu Davíðsdóttir löggiltum fasteignasala í síma 866-1763 / dagrun@betristofan.is **
Heimasíða verkefnis: Asparskógar 18
Nánari lýsing:
Forstofa: Skápur, flísalagt.
Eldhús: Hvít innrétting frá GKS. Ofn í vinnuhæð, vifta. Span helluborð, innbyggður kælir og frystir og uppþvottavél. Tæki frá AEG. Innbyggð lýsing undir efri skápum. Parket á gólfi.
Stofa , borðstofa og eldhús mynda opið rými. Parket á gólfi. Útgengt út á hellulagðan sérafnotareit.
Svefnherbergi: Fataskápur. Parket á gólfi
Hjónaherbergi: Fataskápar. Parket á gólfi
Baðherbergi: Innrétting með handlaug. Speglaskápur. Upphengt salerni. Sturta með sturtugleri.Handklæðaofn. Ljósar flísar á gólfi og veggjum.
Geymsla: 4,6 fm í kjallara.
Stæði í bílakjallara: Merkt B-13.
Sameiginleg hjóla- og vagnageymsla á jarðhæð.
Eignin er laus til afhendingar við kaupsamning.
Eignin Asparskógar 18 er skráð sem hér segir hjá FMR: Eign 2519879 , birt stærð 71,7 fm. Íbúðin er 67,1 og geymsla 4,6
Nánari upplýsingar veita:
Dagrún Davíðsdóttir löggiltur fasteignasali í síma 866-1763 eða á netfangið: dagrun@betristofan.is
Jason Kristinn Ólafsson löggiltur fasteignasali í síma 775-1515 eða á netfangið: jason@betristofan.is
Íbúðirnar afhendast fullbúnar við kaupsamning, með gólfefnum, innbyggðri uppþvottavél, ísskáp með frysti og lýsing er í loftum. Ljós eru innbyggð að hluta. Baðherbergi eru flísalögð með sturtugleri, vaski, upphengdu salerni og handklæðaofn.
** Bókið einkaskoður hjá Dagrúnu Davíðsdóttir löggiltum fasteignasala í síma 866-1763 / dagrun@betristofan.is **
Heimasíða verkefnis: Asparskógar 18
Nánari lýsing:
Forstofa: Skápur, flísalagt.
Eldhús: Hvít innrétting frá GKS. Ofn í vinnuhæð, vifta. Span helluborð, innbyggður kælir og frystir og uppþvottavél. Tæki frá AEG. Innbyggð lýsing undir efri skápum. Parket á gólfi.
Stofa , borðstofa og eldhús mynda opið rými. Parket á gólfi. Útgengt út á hellulagðan sérafnotareit.
Svefnherbergi: Fataskápur. Parket á gólfi
Hjónaherbergi: Fataskápar. Parket á gólfi
Baðherbergi: Innrétting með handlaug. Speglaskápur. Upphengt salerni. Sturta með sturtugleri.Handklæðaofn. Ljósar flísar á gólfi og veggjum.
Geymsla: 4,6 fm í kjallara.
Stæði í bílakjallara: Merkt B-13.
Sameiginleg hjóla- og vagnageymsla á jarðhæð.
Eignin er laus til afhendingar við kaupsamning.
Eignin Asparskógar 18 er skráð sem hér segir hjá FMR: Eign 2519879 , birt stærð 71,7 fm. Íbúðin er 67,1 og geymsla 4,6
Nánari upplýsingar veita:
Dagrún Davíðsdóttir löggiltur fasteignasali í síma 866-1763 eða á netfangið: dagrun@betristofan.is
Jason Kristinn Ólafsson löggiltur fasteignasali í síma 775-1515 eða á netfangið: jason@betristofan.is
Gjöld sem kaupandi þarf að standa straum af ef að kaupum verður:
1. Stimpilgjald af fasteignamati fasteignar er 0.8%, en 0,4% fyrir fyrstu kaup og 1,6% fyrir lögaðila.
2. Þinglýsingargjald: kaupsamningi, skuldabréfi, veðleyfi, afsali o.s.frv. er kr. 2.700 af hverju skjali.
3. Lántökukostnaður samkvæmt verðskrá viðkomandi lánastofnunar.
4. Umsýslugjald til fasteignasölu skv. gjaldskrá.