Löggiltir fasteignasalar innan Félags fasteignasala:
Aðalheiður Karlsdóttir
Upplýsingar
210 m²
4 herb.
2 baðherb.
3 svefnh.
Sérinngangur
Lýsing
SPÁNAREIGNIR KYNNIR:
NÝTT Í SÖLU *EINBÝLISHÚS – GLÆSILEGT RESORT*
Vönduð og falleg einbýlishús á frábærum stað Í hinu nýja og glæsilega 700.000 fm., SANTA ROSALIA LAKE AND LIFE RESORT. Santa Rosalia stöðuvatnið er miðpunktur svæðisins og stærsta manngerða stöðuvatn í Evrópu, 16.000 fm., Þar er frábær aðstaða til að njóta lífsins, sandströnd, eyja til að vaða út í, góð aðstaða fyrir vatnaíþróttir og ýmislegt fleira. Á svæðinu er einnig ævintýra golfvöllur, frisbígolfvöllur, göngu-, skokk og hjólaleiðir, picknick svæði, jogasvæði, leikvellir fyrir börnin og ótal margt fleira skemmtilegt. Við vatnið og golfvöllinn er nýr og glæsilegur strand- og golfklúbbur, með veitingastöðum líkamsræktaraðstöðu og ýmissi þjónustu. Einnig verður matvöruverslun á staðnum, en stutt er í litla bæi í kring með góðu úrvali af verslunum og veitingastöðum. Örstutt frá ströndinni og bátahöfninni (4 km. 15 mín. á hjóli) í Los Alcazares. Mar Menor golfvöllurinn er í göngufæri, en einnig eru fjölmargir fleiri golfvellir á svæðinu. Ca. 1 klst. akstur í suður frá Alicante flugvelli, 30 mín. akstur frá Corvera, nýja alþjóðlega flugvellinum í Murcia.
Frábært tækifæri til að eignast glænýtt og fallegt einbýlishús á góðum stað í sólinni á frábæru verði. Dásamleg fjölskylduparadís.
ALGJÖR NÝJUNG Á FASTEIGNAMARKAÐNUM Á SPÁNI. TILVALIÐ TÆKIFÆRI FYRIR FJÁRFESTA.
Fyrstu áfangar seldust upp á nokkrum dögum. Nú var verið að setja nýjan áfanga í sölu, og því enn hægt að velja góðar eignir í þeim áfanga.
Allar upplýsingar gefa:
Aðalheiður Karlsdóttir, löggiltur fasteignasali. GSM 00354 893 2495. adalheidur@spanareignir.is,
Berta Hawkins, löggiltur fasteignasali, berta@spanareignir.is GSM 0034 615 112 869,
Nánari lýsing:
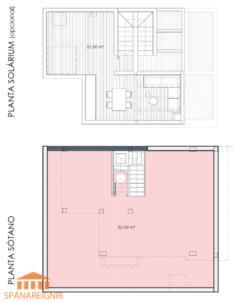
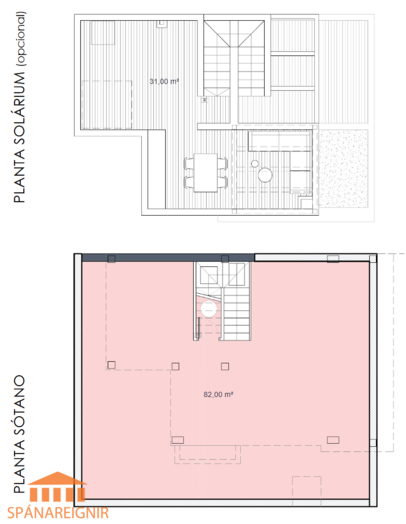
Þrjú svefnherbergi, tvö baðherbergi. Stór verönd, sér garður með möguleika á jacuzzi eða einkasundlaug. Einnig er hægt að fá þaksvalir fyrir þá sem vilja. Stórar svalir út frá svefnherbergi á efri hæð. Bílastæði. Kjallari fylgir, og er hægt að láta innrétta hann á ýmsa vegu, td. með aukasvefnherbergi, vinnuaðstöðu eða tómstundarrými.
Jarðhæð: Stofa, borðstofa og eldhús í rúmgóðu opnu rými og útgengi út á veröndina sem er með góðu aðgengi að einkagarði. Gott svefnherbergi og baðherbergi.
Efri hæð: Tvö svefnherbergi og baðherbergi og útgengi út á góðar svalir.
Kjallari: Rúmgott opið rými sem hægt er að láta innrétta að eigin vali gegn aukagjaldi.
Sérlega metnaðarfull hönnun þar sem tekið er tillit til umhverfis og náttúru.
Vandaðar og fallegar innréttingar. Hiti í gólfum í baðherbergjum.
Öll húsin snúa í suður.
Hægt er að fá húsin fullbúið húsgögnum gegn aukagjaldi, þannig að ekkert er eftir nema að kaupa í matinn og flytja inn.
Örstutt göngufæri er að Santa Rosalia stöðuvatninu með frábærri sólbaðsaðstöðu, ströndum, og möguleika á ýmsum skemmtilegum vatnaíþróttum.
Ca. 15 mín. tekur að hjóla niður á á skemmtilegu göngugötuna í Los Alcazares, sem liggur niður á fallega sandströnd. Fjöldi verslana og veitingastaða eru þar á svæðinu. Meðfram ströndinni er margra kílómetra langt “promenade” sem býður upp á skemmtilega göngutúra. Glæsileg smábáta og snekkjuhöfn og fjölbreytt mannlíf. Fjölmargir vinsælir og skemmtilegir golfvellir eru í næsta nágrenni og hinn vinsæli Mar Menor er í göngufæri frá Santa Rosalia svæðinu.
Verð:
3 svefnh. + 2 baðh. + kjallari, samtals 186fm.
Verð frá 415.000 Evrum eða 59.300.000ISK (miðað við 1 Evra = 143ISK)
Aðeins eitt hús eftir.
Los Alcazares, sem er í næsta nágrenni, er ekta spænskur strandbær með fjölbreyttu bæjarlífi, útimarkaði og götuhátíðum og gefst hér einstakt tækifæri til að eignast vandað og fallegt einbýlishús með nútímaþægindum í sjarmerandi spænsku umhverfi. Skólar og heilbrigðisþjónusta í næsta nágrenni.
Los Alcazares stendur við Mar Menor, lítið innhaf frá Miðjarðarhafinu, og er þar mikil veðursæld. Að meðaltali eru þar um 305 sólardagar, 30 skýjaðir og 30 rigningardagar á ári.
SKOÐUNARFERÐIR:
Við aðstoðum kaupendur við að skipuleggja skoðunarferðir og tökum þátt í kostnaði vegna þeirra, ef af viðskiptum verður.
Mögulegt er að fjármagna hluta kaupverðs með hagstæðu láni frá spænskum banka.
Veglegur kaupauki í boði.
Hafðu samband og kynntu þér málið.
Við höfum selt fasteignir á Spáni síðan 2001. Tryggir þekkingu, reynslu og öryggi.
Sjá nánar um fasteignakaup á Spáni á heimasíðunni okkar: www.spanareignir.is
Kostnaður við kaupin:
10% IVA (spænskur söluskattur) af kaupverði eignarinnar. Auk þess má gera ráð fyrir ca. 3% kostnaði vegna stimpilgjalda og annars kostnaðar við kaupin, þ.e. samtals getur kostnaður vegna kaupa á fasteign á Spáni því farið upp í ca. 13%.
Eiginleikar: strönd, ný eign, sér garður, þakverönd, kjallari, golf,
Svæði: Costa Calida, Los Alcazares, Santa Rosalia, Mar Menor,
NÝTT Í SÖLU *EINBÝLISHÚS – GLÆSILEGT RESORT*
Vönduð og falleg einbýlishús á frábærum stað Í hinu nýja og glæsilega 700.000 fm., SANTA ROSALIA LAKE AND LIFE RESORT. Santa Rosalia stöðuvatnið er miðpunktur svæðisins og stærsta manngerða stöðuvatn í Evrópu, 16.000 fm., Þar er frábær aðstaða til að njóta lífsins, sandströnd, eyja til að vaða út í, góð aðstaða fyrir vatnaíþróttir og ýmislegt fleira. Á svæðinu er einnig ævintýra golfvöllur, frisbígolfvöllur, göngu-, skokk og hjólaleiðir, picknick svæði, jogasvæði, leikvellir fyrir börnin og ótal margt fleira skemmtilegt. Við vatnið og golfvöllinn er nýr og glæsilegur strand- og golfklúbbur, með veitingastöðum líkamsræktaraðstöðu og ýmissi þjónustu. Einnig verður matvöruverslun á staðnum, en stutt er í litla bæi í kring með góðu úrvali af verslunum og veitingastöðum. Örstutt frá ströndinni og bátahöfninni (4 km. 15 mín. á hjóli) í Los Alcazares. Mar Menor golfvöllurinn er í göngufæri, en einnig eru fjölmargir fleiri golfvellir á svæðinu. Ca. 1 klst. akstur í suður frá Alicante flugvelli, 30 mín. akstur frá Corvera, nýja alþjóðlega flugvellinum í Murcia.
Frábært tækifæri til að eignast glænýtt og fallegt einbýlishús á góðum stað í sólinni á frábæru verði. Dásamleg fjölskylduparadís.
ALGJÖR NÝJUNG Á FASTEIGNAMARKAÐNUM Á SPÁNI. TILVALIÐ TÆKIFÆRI FYRIR FJÁRFESTA.
Fyrstu áfangar seldust upp á nokkrum dögum. Nú var verið að setja nýjan áfanga í sölu, og því enn hægt að velja góðar eignir í þeim áfanga.
Allar upplýsingar gefa:
Aðalheiður Karlsdóttir, löggiltur fasteignasali. GSM 00354 893 2495. adalheidur@spanareignir.is,
Berta Hawkins, löggiltur fasteignasali, berta@spanareignir.is GSM 0034 615 112 869,
Nánari lýsing:
Þrjú svefnherbergi, tvö baðherbergi. Stór verönd, sér garður með möguleika á jacuzzi eða einkasundlaug. Einnig er hægt að fá þaksvalir fyrir þá sem vilja. Stórar svalir út frá svefnherbergi á efri hæð. Bílastæði. Kjallari fylgir, og er hægt að láta innrétta hann á ýmsa vegu, td. með aukasvefnherbergi, vinnuaðstöðu eða tómstundarrými.
Jarðhæð: Stofa, borðstofa og eldhús í rúmgóðu opnu rými og útgengi út á veröndina sem er með góðu aðgengi að einkagarði. Gott svefnherbergi og baðherbergi.
Efri hæð: Tvö svefnherbergi og baðherbergi og útgengi út á góðar svalir.
Kjallari: Rúmgott opið rými sem hægt er að láta innrétta að eigin vali gegn aukagjaldi.
Sérlega metnaðarfull hönnun þar sem tekið er tillit til umhverfis og náttúru.
Vandaðar og fallegar innréttingar. Hiti í gólfum í baðherbergjum.
Öll húsin snúa í suður.
Hægt er að fá húsin fullbúið húsgögnum gegn aukagjaldi, þannig að ekkert er eftir nema að kaupa í matinn og flytja inn.
Örstutt göngufæri er að Santa Rosalia stöðuvatninu með frábærri sólbaðsaðstöðu, ströndum, og möguleika á ýmsum skemmtilegum vatnaíþróttum.
Ca. 15 mín. tekur að hjóla niður á á skemmtilegu göngugötuna í Los Alcazares, sem liggur niður á fallega sandströnd. Fjöldi verslana og veitingastaða eru þar á svæðinu. Meðfram ströndinni er margra kílómetra langt “promenade” sem býður upp á skemmtilega göngutúra. Glæsileg smábáta og snekkjuhöfn og fjölbreytt mannlíf. Fjölmargir vinsælir og skemmtilegir golfvellir eru í næsta nágrenni og hinn vinsæli Mar Menor er í göngufæri frá Santa Rosalia svæðinu.
Verð:
3 svefnh. + 2 baðh. + kjallari, samtals 186fm.
Verð frá 415.000 Evrum eða 59.300.000ISK (miðað við 1 Evra = 143ISK)
Aðeins eitt hús eftir.
Los Alcazares, sem er í næsta nágrenni, er ekta spænskur strandbær með fjölbreyttu bæjarlífi, útimarkaði og götuhátíðum og gefst hér einstakt tækifæri til að eignast vandað og fallegt einbýlishús með nútímaþægindum í sjarmerandi spænsku umhverfi. Skólar og heilbrigðisþjónusta í næsta nágrenni.
Los Alcazares stendur við Mar Menor, lítið innhaf frá Miðjarðarhafinu, og er þar mikil veðursæld. Að meðaltali eru þar um 305 sólardagar, 30 skýjaðir og 30 rigningardagar á ári.
SKOÐUNARFERÐIR:
Við aðstoðum kaupendur við að skipuleggja skoðunarferðir og tökum þátt í kostnaði vegna þeirra, ef af viðskiptum verður.
Mögulegt er að fjármagna hluta kaupverðs með hagstæðu láni frá spænskum banka.
Veglegur kaupauki í boði.
Hafðu samband og kynntu þér málið.
Við höfum selt fasteignir á Spáni síðan 2001. Tryggir þekkingu, reynslu og öryggi.
Sjá nánar um fasteignakaup á Spáni á heimasíðunni okkar: www.spanareignir.is
Kostnaður við kaupin:
10% IVA (spænskur söluskattur) af kaupverði eignarinnar. Auk þess má gera ráð fyrir ca. 3% kostnaði vegna stimpilgjalda og annars kostnaðar við kaupin, þ.e. samtals getur kostnaður vegna kaupa á fasteign á Spáni því farið upp í ca. 13%.
Eiginleikar: strönd, ný eign, sér garður, þakverönd, kjallari, golf,
Svæði: Costa Calida, Los Alcazares, Santa Rosalia, Mar Menor,