Upplýsingar
Verðsaga
Byggt 2020
61,8 m²
2 herb.
1 svefnh.
Lyfta
Opið hús: 16. október 2025
kl. 17:30
til 18:00
Lýsing
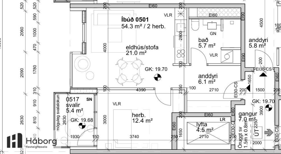
Háborg og Þórunn Pálsdóttir lgf kynna: Íbúð 501, glæsilega og bjarta endaíbúð á fimmtu og efstu hæð í Stuðlaborg á Kirkjusandi. Lofthæð er mjög mikil eða um 5 metrar þar sem mest er. Sólríkar 5,4 fm suðursvalir. Fallegt útsýni meðal annars til sjávar. Birt flatarmál er 61,8 fm þar af er 7,5 fm geymsla í kjallara. Eignin telur, anddyri, baðherbergi með sturtu og aðstöðu fyrir þvottavél og þurrkara. Glæsilegt svefnherbergi. Fallega stofu með opnu eldhúsi og útgengi á suðursvalir. Vandaðar innréttingar, gólfsíðir gluggar, gólfhiti og steinn í borðum.
Allar frekari upplýsingar gefur Þórunn Pálsdóttir lgf s:773-6000 og thorunn@haborg.is
Stuðlaborg er 77 íbúða bygging í 5 stigagöngum glæsilega hönnuð af hinni þekktu dönsku arkitektastofu Schmidt/Hammer/Lassen í samstarfi við VA arkitekta.
Mikil lofthæð og hallandi þakið setur heillandi svip á íbúðina og gefur góða rýmistilfinningu. Aðeins tvær íbúðir eru á stigaganginum á hæðinni.Gengið er inn í rúmgott anddyri með góðum skápum. Á hægri hönd er baðherbergi með veglegum innréttingum, sturtu og þvottaaðstöðu.
Beint af augum er bjart og fallegt alrými sem telur eldhús og stofu. Á vinstri hönd er svefnherbergið með góðu skápaplássi.
Eldhústæki eru vönduð frá Simens. Innbyggður ísskápur og uppþvottavél fylgja.
Allar innréttingar eru spónlagðar, stílhreinar og glæsilegar með gripi en ekki höldum. Hurðir eru gerettalausar og sérlega fallegar. Íbúðinni fylgir hlutdeild í Y6-sameign sumra sem er bílgeymslurými í kjallara. Það tengist bílgeymslurýmum undir aðliggjandi lóðum og sér sameiginlegt rekstarfélag um rekstur bílageymslunnar. Íbúar geta lagt í bílageymslu gegn hóflegu rekstargjald sem er nú um kr 9000 á mánuði.
Glæsileg og heillandi íbúð á efstu hæð á þessum vinsæla stað, sem er í göngufæri við útivistarperluna í Laugardal og falleg gönguleið meðfram strandlengjunni er til miðborgarinnar.
Nánari upplýsingar veitir: Þórunn Pálsdóttir lgf s:773-6000 og thorunn@haborg.is
Allar frekari upplýsingar gefur Þórunn Pálsdóttir lgf s:773-6000 og thorunn@haborg.is
Stuðlaborg er 77 íbúða bygging í 5 stigagöngum glæsilega hönnuð af hinni þekktu dönsku arkitektastofu Schmidt/Hammer/Lassen í samstarfi við VA arkitekta.
Mikil lofthæð og hallandi þakið setur heillandi svip á íbúðina og gefur góða rýmistilfinningu. Aðeins tvær íbúðir eru á stigaganginum á hæðinni.Gengið er inn í rúmgott anddyri með góðum skápum. Á hægri hönd er baðherbergi með veglegum innréttingum, sturtu og þvottaaðstöðu.
Beint af augum er bjart og fallegt alrými sem telur eldhús og stofu. Á vinstri hönd er svefnherbergið með góðu skápaplássi.
Eldhústæki eru vönduð frá Simens. Innbyggður ísskápur og uppþvottavél fylgja.
Allar innréttingar eru spónlagðar, stílhreinar og glæsilegar með gripi en ekki höldum. Hurðir eru gerettalausar og sérlega fallegar. Íbúðinni fylgir hlutdeild í Y6-sameign sumra sem er bílgeymslurými í kjallara. Það tengist bílgeymslurýmum undir aðliggjandi lóðum og sér sameiginlegt rekstarfélag um rekstur bílageymslunnar. Íbúar geta lagt í bílageymslu gegn hóflegu rekstargjald sem er nú um kr 9000 á mánuði.
Glæsileg og heillandi íbúð á efstu hæð á þessum vinsæla stað, sem er í göngufæri við útivistarperluna í Laugardal og falleg gönguleið meðfram strandlengjunni er til miðborgarinnar.
Nánari upplýsingar veitir: Þórunn Pálsdóttir lgf s:773-6000 og thorunn@haborg.is
Ár
Fasteignamat
Kaupverð
Stærð
Fermetraverð
11. ágú. 2021
51.750.000 kr.
53.250.000 kr.
61.8 m²
861.650 kr.
Byggt á upplýsingum úr Þjóðskrá Íslands frá 2006-2025