Upplýsingar
Verðsaga
Byggt 2009
257,5 m²
5 herb.
2 baðherb.
4 svefnh.
Þvottahús
Bílskúr
Lýsing
Eignamiðlun Suðurnesja kynnir Eikardal 6, 260. Reykjanesbæ.
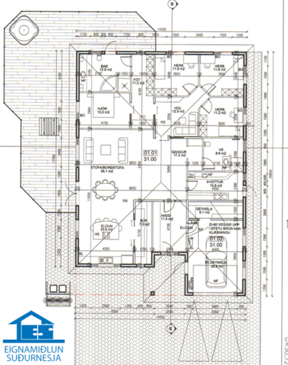
Um er að ræða glæsilegt 257,5 fm. einbýlishús, þar af 38,1 fm. bílskúr.
Eignin skiptist í anddyri, hol, stofu, borðstofu, eldhús, fjögur svefnherbergi, tvö baðherbergi, sjónvarpshol, þvottahús, bílskúr, stórt bílaplan og afgirtur pallur.
Komið er inn um anddyri með parket á gólfi.
Hol er rúmgott með parket á gólfi.
Eldhús, borðstofa og stofa eru í opnu björtu rými með parket á gólfi.
Eldhús hefur snyrtilega innréttingu, eyju með helluborði, viftu og ofn.
Stórir gólfsíðir gluggar eru í stofunni sem gera hana bjarta og fallega, þar er útgengi út á stóran afgirtan viðarpall.
Baðherbergi I hefur parket á gólfi, fallega innréttingu, upphengt salerni, handklæðaofn og sturtu.
Svefnhergin eru fjögur talsins, öll rúmgóð og parketlögð.
innaf hjónaherbergi er fataherbergi og Baðhergi II sem hefur steypt hvítt gólf, falleg innrétting, upphengt salerni, frístandandi baðkar, handklæðaofn og útgengi út á verönd.
Þvottahús hefur flísar á gólfi, góð innrétting með miklu skápaplássi og skolvask. Úr þvottahús er útgengi út á verönd.
Bílskúr hefur flísar á gólfi og rafmagns aksturshurð.
Verönd í kringum húsið er rækt og stór afgirtur viðarpallur.
Staðsetningin er virkilega góð, falleg náttúra er allt um kring og stutt í ýmiskonar útivistarmöguleika. Samgöngur til og frá svæðinu eru auðveldar og stutt upp á Reykjanesbraut. Stutt í leik- og grunnskóla, almenningssundlaug og íþróttahús.
Allar nánari upplýsingar á skrifstofu okkar að Hafnargötu 50, Reykjanesbæ, og í síma 420-4050 eða á netfangið: es@es.is
Gjöld sem kaupandi þarf að standa straum af vegna kaupa á fasteign:
1. Stimpilgjald af kaupsamningi - 0,8% af heildarfasteignamati fyrir einstaklinga (0,4% ef um er að ræða fyrstu kaup) og 1,6% fyrir lögaðila.
2. Þinglýsingargjald af kaupsamningi, veðskuldabréfi, mögulegu veðleyfi o.fl. - kr. 2.700 af hverju skjali.
3. Lántökugjald lánastofnunar – mismunandi á milli lánastofnana. Nánari upplýsingar á heimasíðum lánastofnana.
4. Umsýslugjald til fasteignasölu skv. Gjaldskrá.
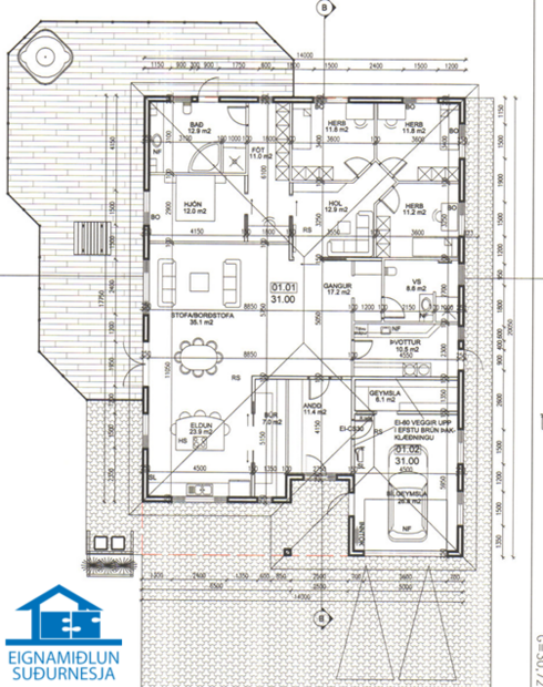
Um er að ræða glæsilegt 257,5 fm. einbýlishús, þar af 38,1 fm. bílskúr.
Eignin skiptist í anddyri, hol, stofu, borðstofu, eldhús, fjögur svefnherbergi, tvö baðherbergi, sjónvarpshol, þvottahús, bílskúr, stórt bílaplan og afgirtur pallur.
Komið er inn um anddyri með parket á gólfi.
Hol er rúmgott með parket á gólfi.
Eldhús, borðstofa og stofa eru í opnu björtu rými með parket á gólfi.
Eldhús hefur snyrtilega innréttingu, eyju með helluborði, viftu og ofn.
Stórir gólfsíðir gluggar eru í stofunni sem gera hana bjarta og fallega, þar er útgengi út á stóran afgirtan viðarpall.
Baðherbergi I hefur parket á gólfi, fallega innréttingu, upphengt salerni, handklæðaofn og sturtu.
Svefnhergin eru fjögur talsins, öll rúmgóð og parketlögð.
innaf hjónaherbergi er fataherbergi og Baðhergi II sem hefur steypt hvítt gólf, falleg innrétting, upphengt salerni, frístandandi baðkar, handklæðaofn og útgengi út á verönd.
Þvottahús hefur flísar á gólfi, góð innrétting með miklu skápaplássi og skolvask. Úr þvottahús er útgengi út á verönd.
Bílskúr hefur flísar á gólfi og rafmagns aksturshurð.
Verönd í kringum húsið er rækt og stór afgirtur viðarpallur.
Staðsetningin er virkilega góð, falleg náttúra er allt um kring og stutt í ýmiskonar útivistarmöguleika. Samgöngur til og frá svæðinu eru auðveldar og stutt upp á Reykjanesbraut. Stutt í leik- og grunnskóla, almenningssundlaug og íþróttahús.
Allar nánari upplýsingar á skrifstofu okkar að Hafnargötu 50, Reykjanesbæ, og í síma 420-4050 eða á netfangið: es@es.is
Gjöld sem kaupandi þarf að standa straum af vegna kaupa á fasteign:
1. Stimpilgjald af kaupsamningi - 0,8% af heildarfasteignamati fyrir einstaklinga (0,4% ef um er að ræða fyrstu kaup) og 1,6% fyrir lögaðila.
2. Þinglýsingargjald af kaupsamningi, veðskuldabréfi, mögulegu veðleyfi o.fl. - kr. 2.700 af hverju skjali.
3. Lántökugjald lánastofnunar – mismunandi á milli lánastofnana. Nánari upplýsingar á heimasíðum lánastofnana.
4. Umsýslugjald til fasteignasölu skv. Gjaldskrá.
Ár
Fasteignamat
Kaupverð
Stærð
Fermetraverð
22. des. 2016
41.350.000 kr.
46.000.000 kr.
257.5 m²
178.641 kr.
Byggt á upplýsingum úr Þjóðskrá Íslands frá 2006-2025