Upplýsingar
Verðsaga
Byggt 2006
104 m²
3 herb.
1 baðherb.
2 svefnh.
Þvottahús
Sameiginl. inngangur
Hjólastólaaðgengi
Bílastæði
Lyfta
Laus strax
Lýsing
Hreiðar Levý lögg. fasteignasali og Betri Stofan Fasteignasala kynna fallega og vel hannaða 104fm, 3ja herbergja endaíbúð á 1. hæð í lyftuhúsi fyrir 60 ára og eldri að Strikinu 2 í Sjálandinu í Garðabæ. Eigninni fylgir hellulagður sérafnotaflötur ásamt sérmerktu bílastæði merkt B045 í upphituðum bílakjallara. Húsið er steinsteypt og klætt með álklæðningu. Vandaðar eikar innréttingar frá Brúnás ásamt eikarhurðum. Fataskápar ná upp undir loft í forstofu og svefnherbergjum. Húsþyrpingin Strikið 2 - 12 var hannað með þarfir 60+ aldurshópsins í huga og því eru öll rými rúmgóð og auðveld aðkomu bæði í íbúðum og sameign. Húsvörður er í húsinu sem annast og sér um allt sem viðkemur daglegum rekstri sameignarinnar. Þá á eignin líka hlutdeild í 121,7fm samkomusal sem íbúar eiga kost á að leigja gegn vægu gjaldi. Búnaður til veisluhalda er fyrir 50-60 manns. Vel skipulögð og góð eign í vinsælu hverfi sem er afar hentug fyrir eldri borgara sem vilja þægindi, félagsskap og skapandi umhverfi í sínum aldurshópi.
Strikið 2–12 er sex hæða fjölbýlishús teiknað af Guðmundi Gunnlaugssyni arkitekt (Archus arkitektar) og byggt af Byggingarfélagi Gylfa og Gunnars (BYGG) árið 2006. Íbúðirnar eru 130 talsins og ætlaðar fólki 60 ára og eldri. Húsin standa á sameiginlegri lóð og mynda sameiginlegt garðrými sem opnast til sjávar. Þjónustusel er á 1. hæð í miðri þyrpingunni. Þar er að finna matsal og margvísleg rými til þjónustu. Tenging er við garð, en þar eru púttvellir og svæði til útiveru. Göngustígar, þ.m.t. meðfram fjöruborðinu og um opin svæði í grennd eiga sér vart líkan á höfuðborgarsvæðinu.
Jónshús félags- og þjónustumiðstöð félags eldri borgara í Garðabæ hefur aðsetur á fyrstu hæð hússins, fyrir miðri. Beint aðgengi úr bílakjallara er í Jónshús. Þá er mjög gott aðgengi úr íbúð beint úr íbúð um upphitaðan göngustíg frá sameignargarði.
Félagsstarf er mikið í húsinu, gönguhópar og önnur afþreying. Ýmis þjónusta er í húsinu t.d. snyrtistofa, hárgreiðslustofa og fótaaðgerðastofa. Þá er hægt er panta heitan mat til að borða í hádeginu í Jónshúsi. Maturinn kemur frá Matborðinu. Sala kaffiveitinga í kaffiteríunni fer fram alla virka daga milli kl. 13.15-15.15 og kosta á bilinu kr. 640 - kr. 750. Kaffi stendur gestum til boða þeim að kostnaðarlausu allan daginn.
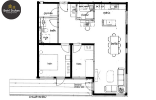
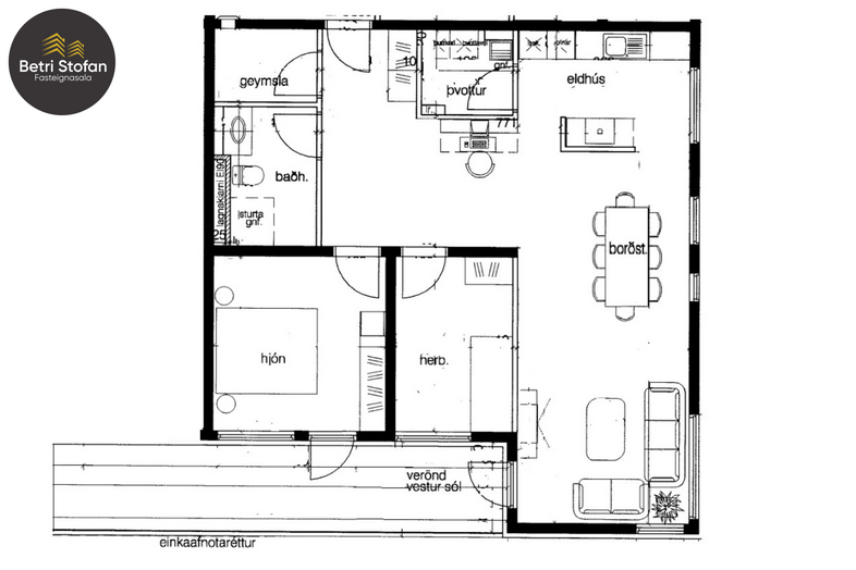
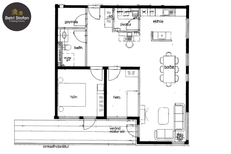
Eignin skiptist í anddyri, hol, geymslu innan íbúðar, 2 svefnherbergi, baðherbergi, þvottahús, samliggjandi eldhúsi og stofu ásamt sérmerktu bílastæði í bílakjallara og sér geymslu. Þá fylgir eigninni sérafnotaflötur sem snýr til suðurs og vestur sem gengið er í útfrá stofu. Búið er að leggja fyrir uppsetningu á sér rafmagnshleðslustöðvum fyrir hvert stæði í bílakjallaranum. Sameiginleg bílaþvottastöð í bílakjallara. Á lóðinni eru 117 bílastæði og eru afnot af þeim i sameign allra eignanna á lóðinni.
Nánari lýsing:
Anddyri: Komið inn í anddyri með góðu skápaplássi.
Geymsla: Innaf anddyri með upphengdum hillum.
Hol: Tengir saman flest rými íbúðar.
Baðherbergi: Flísalagt í hólf og gólf. Þröskuldalaus sturta, upphengt salerni, handklæðaofn, innrétting með neðri skápum og efri speglaskáp.
Svefnherbergi I: Rúmgott með góðu skápaplássi. Útgengt út á sérafnotaflöt.
Svefnherbergi II: Rúmgott með tvöföldum fataskáp.
Eldhús: Eikarinnrétting frá Brúnás með efri og neðri skápum ásamt eyju. innbyggð lýsing undir efri skápum í innréttingu. Gott skápa og vinnupláss. Ofn er innbyggður í innréttingu í vinnuhæð, vaskur, innbyggð uppþvottavél og aðstaða fyrir ísskáp. Ísskápur getur fylgt með. Helluborð er í eyju og upphengdur háfur fyrir ofan helluborð. Gluggi með opananlegu fagi í eldhúsi. Þvottahús er innaf eldhúsi. Eldhús opið við stofu.
Þvottahús: Innaf eldhúsi með aðstöðu fyrir þvottavél og þurrkara, hillum og skolvaski.
Stofa: Rúmgóð og björt stofa, opin við eldhús. Útgengt út á sérafnotaflöt með viðarverönd útfrá stofu.
Sérafnotaflötur: Sér viðarverönd útfrá stofu. Einnig útgengt frá á verönd útfrá hjónaherbergi.
Geymsla II: Sérgeymsla í kjallara. 4,8fm.
Bílastæði: Sérmerkt bílastæði í upphituðum bílakjallara. Búið að leggja fyrir tengingu fyrir rafhleðslustöð í bílastæði. Sameiginleg bílaþvottastöð í bílakjallara.
Lóð: Lóðin er 11,410,0 m2 leigulóð í eigu Garðabæjar, Á lóðinni eru 117 bílastæði og eru afnot af þeim i sameign allra eignanna á lóðinni. Um lóðina er lóðaleigusamningur dags. 31.12.2004 með þinglýsingarnúmerinu Z-812 samningurinn er til 75 ára frá 01.01.2003 og rennur út 31.12.2078. Afnot af lóðinni er í óskiptri sameign með þeirri undantekningu að íbúðir á 1.hæð húsanna hafa sérafnot af lóðarhluta, sá hluti er afmarkaður á bygginganefndarteikningar af 1.hæðum húsanna. Allt viðhald og endurnýjun lóðarinnar að öðru leiti skal vera á hendi sameiginlegs lóðafélags með þátttöku allra eignanna á lóðinni.
Sameign: Íbúðinni fylgir eignarhlutur í húsvarðaríbúð ásamt rúmgóðum og vel útbúnum samkomusal sem eigendur að íbúðum í Strikinu 2-12 hafa aðgengi að. Hurðir í anddyri eru með sjálfvirkum hurðaopnurum og lýsing í sameign stýrist víðast hvar af hreyfiskynjurum. Þjónustusel er á jarðhæð í Jónshúsi, húsi nr 6, með margvíslegri þjónustu fyrir eldri borgara. Húsvörður í kjarnanum, mjög gott og reglulegt viðhald á húsinu. Vel rekið húsfélag.
Ath.
Íbúðir í húsinu eru ætlaðar eldri borgurum sbr. 8. gr. lóðarleigusamnings. Ef íbúð er seld til fyrirtækis eða einstaklinga yngri en 60 ára þarf Garðabær að samþykkja söluna t.d. með áritun kaupsamnings eða afsal.
Nánari upplýsingar veitir Hreiðar Levý Guðmundsson löggiltur fasteignasali, í síma 661- 6021, tölvupóstur hreidar@betristofan.is.
Strikið 2–12 er sex hæða fjölbýlishús teiknað af Guðmundi Gunnlaugssyni arkitekt (Archus arkitektar) og byggt af Byggingarfélagi Gylfa og Gunnars (BYGG) árið 2006. Íbúðirnar eru 130 talsins og ætlaðar fólki 60 ára og eldri. Húsin standa á sameiginlegri lóð og mynda sameiginlegt garðrými sem opnast til sjávar. Þjónustusel er á 1. hæð í miðri þyrpingunni. Þar er að finna matsal og margvísleg rými til þjónustu. Tenging er við garð, en þar eru púttvellir og svæði til útiveru. Göngustígar, þ.m.t. meðfram fjöruborðinu og um opin svæði í grennd eiga sér vart líkan á höfuðborgarsvæðinu.
Jónshús félags- og þjónustumiðstöð félags eldri borgara í Garðabæ hefur aðsetur á fyrstu hæð hússins, fyrir miðri. Beint aðgengi úr bílakjallara er í Jónshús. Þá er mjög gott aðgengi úr íbúð beint úr íbúð um upphitaðan göngustíg frá sameignargarði.
Félagsstarf er mikið í húsinu, gönguhópar og önnur afþreying. Ýmis þjónusta er í húsinu t.d. snyrtistofa, hárgreiðslustofa og fótaaðgerðastofa. Þá er hægt er panta heitan mat til að borða í hádeginu í Jónshúsi. Maturinn kemur frá Matborðinu. Sala kaffiveitinga í kaffiteríunni fer fram alla virka daga milli kl. 13.15-15.15 og kosta á bilinu kr. 640 - kr. 750. Kaffi stendur gestum til boða þeim að kostnaðarlausu allan daginn.
Eignin skiptist í anddyri, hol, geymslu innan íbúðar, 2 svefnherbergi, baðherbergi, þvottahús, samliggjandi eldhúsi og stofu ásamt sérmerktu bílastæði í bílakjallara og sér geymslu. Þá fylgir eigninni sérafnotaflötur sem snýr til suðurs og vestur sem gengið er í útfrá stofu. Búið er að leggja fyrir uppsetningu á sér rafmagnshleðslustöðvum fyrir hvert stæði í bílakjallaranum. Sameiginleg bílaþvottastöð í bílakjallara. Á lóðinni eru 117 bílastæði og eru afnot af þeim i sameign allra eignanna á lóðinni.
Nánari lýsing:
Anddyri: Komið inn í anddyri með góðu skápaplássi.
Geymsla: Innaf anddyri með upphengdum hillum.
Hol: Tengir saman flest rými íbúðar.
Baðherbergi: Flísalagt í hólf og gólf. Þröskuldalaus sturta, upphengt salerni, handklæðaofn, innrétting með neðri skápum og efri speglaskáp.
Svefnherbergi I: Rúmgott með góðu skápaplássi. Útgengt út á sérafnotaflöt.
Svefnherbergi II: Rúmgott með tvöföldum fataskáp.
Eldhús: Eikarinnrétting frá Brúnás með efri og neðri skápum ásamt eyju. innbyggð lýsing undir efri skápum í innréttingu. Gott skápa og vinnupláss. Ofn er innbyggður í innréttingu í vinnuhæð, vaskur, innbyggð uppþvottavél og aðstaða fyrir ísskáp. Ísskápur getur fylgt með. Helluborð er í eyju og upphengdur háfur fyrir ofan helluborð. Gluggi með opananlegu fagi í eldhúsi. Þvottahús er innaf eldhúsi. Eldhús opið við stofu.
Þvottahús: Innaf eldhúsi með aðstöðu fyrir þvottavél og þurrkara, hillum og skolvaski.
Stofa: Rúmgóð og björt stofa, opin við eldhús. Útgengt út á sérafnotaflöt með viðarverönd útfrá stofu.
Sérafnotaflötur: Sér viðarverönd útfrá stofu. Einnig útgengt frá á verönd útfrá hjónaherbergi.
Geymsla II: Sérgeymsla í kjallara. 4,8fm.
Bílastæði: Sérmerkt bílastæði í upphituðum bílakjallara. Búið að leggja fyrir tengingu fyrir rafhleðslustöð í bílastæði. Sameiginleg bílaþvottastöð í bílakjallara.
Lóð: Lóðin er 11,410,0 m2 leigulóð í eigu Garðabæjar, Á lóðinni eru 117 bílastæði og eru afnot af þeim i sameign allra eignanna á lóðinni. Um lóðina er lóðaleigusamningur dags. 31.12.2004 með þinglýsingarnúmerinu Z-812 samningurinn er til 75 ára frá 01.01.2003 og rennur út 31.12.2078. Afnot af lóðinni er í óskiptri sameign með þeirri undantekningu að íbúðir á 1.hæð húsanna hafa sérafnot af lóðarhluta, sá hluti er afmarkaður á bygginganefndarteikningar af 1.hæðum húsanna. Allt viðhald og endurnýjun lóðarinnar að öðru leiti skal vera á hendi sameiginlegs lóðafélags með þátttöku allra eignanna á lóðinni.
Sameign: Íbúðinni fylgir eignarhlutur í húsvarðaríbúð ásamt rúmgóðum og vel útbúnum samkomusal sem eigendur að íbúðum í Strikinu 2-12 hafa aðgengi að. Hurðir í anddyri eru með sjálfvirkum hurðaopnurum og lýsing í sameign stýrist víðast hvar af hreyfiskynjurum. Þjónustusel er á jarðhæð í Jónshúsi, húsi nr 6, með margvíslegri þjónustu fyrir eldri borgara. Húsvörður í kjarnanum, mjög gott og reglulegt viðhald á húsinu. Vel rekið húsfélag.
Ath.
Íbúðir í húsinu eru ætlaðar eldri borgurum sbr. 8. gr. lóðarleigusamnings. Ef íbúð er seld til fyrirtækis eða einstaklinga yngri en 60 ára þarf Garðabær að samþykkja söluna t.d. með áritun kaupsamnings eða afsal.
Nánari upplýsingar veitir Hreiðar Levý Guðmundsson löggiltur fasteignasali, í síma 661- 6021, tölvupóstur hreidar@betristofan.is.
Gjöld sem kaupandi þarf að standa straum af ef að kaupum verður:
1. Stimpilgjald af fasteignamati fasteignar er 0.8%, en 0,4% fyrir fyrstu kaup og 1,6% fyrir lögaðila.
2. Þinglýsingargjald: kaupsamningi, skuldabréfi, veðleyfi, afsali o.s.frv. er kr. 2.700 af hverju skjali.
3. Lántökukostnaður samkvæmt verðskrá viðkomandi lánastofnunar.
4. Umsýslugjald til fasteignasölu skv. gjaldskrá.
Ár
Fasteignamat
Kaupverð
Stærð
Fermetraverð
3. maí. 2016
35.050.000 kr.
43.000.000 kr.
104 m²
413.462 kr.
7. feb. 2012
25.100.000 kr.
27.200.000 kr.
104 m²
261.538 kr.
Byggt á upplýsingum úr Þjóðskrá Íslands frá 2006-2026