Upplýsingar
Verðsaga
Byggt 2024
129 m²
4 herb.
1 baðherb.
3 svefnh.
Þvottahús
Sérinngangur
Laus strax
Lýsing
Fasteignasala Suðurlands kynnir: Nýtt, fallegt, endaraðhús að Elsugötu 21, Þorlákshöfn. Húsið er einstaklega vel skipulagt miðjuraðhús, með 3 stórum svefnherbergjum og mjög rúmgóðu alrými. Húsið snýr í austur/vestur þannig að sólar nýtur í garði frá morgni til kvölds ! Húsið er staðsett í glænýju hverfi. Nýtt, fallegt, miðjuraðhús að Elsugötu 21, Þorlákshöfn. Húsið er einstaklega vel skipulagt, með 3 stórum svefnherbergjum og mjög rúmgóðu alrými.
Húsið snýr í austur/vestur þannig að sólar nýtur í garði frá morgni til kvölds ! Húsið er staðsett í glænýju hverfi.
Húsið er klætt að utan með bárujárni og við í bland. Þak er valmaþak. Fallegir, gólfsíðir glugga eru í alrými !
** Allar nánari upplýsingar má nálgast í síma 483 3424 og á fastsud@gmail.com **
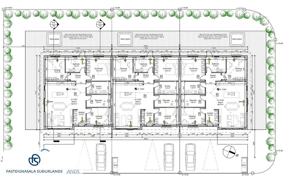
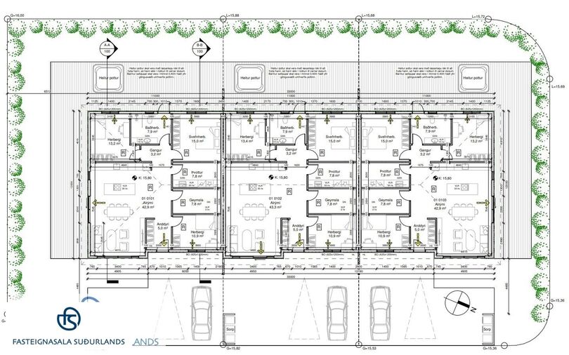
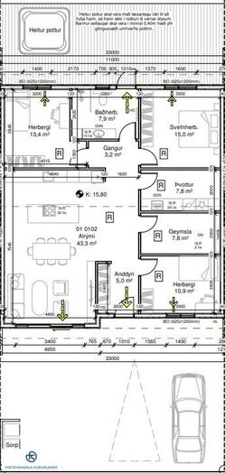
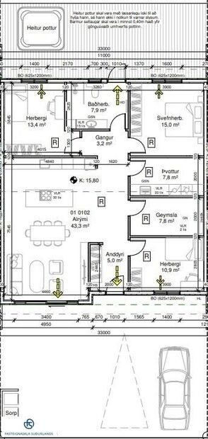
Húsið telur samkvæmt teikningu:
* 3 mjög rúmgóð svefnherbergi.
* Stórt eldhús og stofu í opnu rými. Úr alrýminu er utangengt í garðinn.
* Baðherbergi. Af baðherberginu er utangengt í garðinn þar sem gert er ráð fyrir heitum potti.
* Þvottahús.
* Góða geymslu.
* Anddyri.
Húsið afhendist tilbúið til innréttinga, byggingarstig 5 í eldri byggingarstigi, byggingarstig 3 í nýja byggingarstigi.
Frágangur utanhúss:
Húsið er byggt úr timbri og klætt að utan með ljósu bárujárni og með timbri í innskotum
vindskeiðar eru úr áli dökk grátt að lit.
Þakrennur og niðurföll verða frágengin sama lit og þakkantur.
Dökk gráir gluggar og hurðir verða fullfrágengir.
Lóðin verði grófjöfnuð, innkeyrsla grófjöfnuð með mulningi
Forsteypt Sorptunnuskýli.
Timbur í innskotum og að aftan verður komið.
Frágangur innanhúss:
Kraftsperrur eru í húsinu og öll loft niðurtekin.
inntök komin inn og greidd
hitalagnir steypt í plötu eru öllum gólfum og verður tengigrind fyrir hita frágengin. án stýringa
Rafmagn verður frágengið í töflu og tenglar og rofar komnir.(Vinnurafmagn)
Allir milliveggir verða komnir og verða klæddir með með 2x gifsi hvoru megin eða krossvið og gifs beggja vegna, og loft er klætt með gifsi.
Allir veggir og loft sandspörsluð og Grunnað í ljósum lit.
wc 2 veggir málaðir og loft.
Gólf slípað og yfirfarið kannski flotsparls.
Farið er eftir staðlinum tilbúið til innréttinga.
Allir veggir fullfrágengnir.
Raflangir komnar og dregið í dósir en ekki tengdar.
Vatnslagnir komnar að aftöppunarstað.
Inntök kominn inn og greidd.
FASTEIGNASALA SUÐURLANDS HEFUR VEITT VANDAÐA OG GÓÐA ÞJÓNUSTU SÍÐAN 2003 !
Fasteignasala Suðurlands, Unubakka 3b, Þorlákshöfn.
Heimasíða fasteignasölunnar: https://www.eignin.is/
Í Þorlákshöfn er þjónustustig mjög gott - hagnýtar upplýsingar:
Verslun og þjónusta: Hér má m.a. finna:
KRÓNU VERSLUN
Apótekarann.
Hárgreiðslustofuna Kompuna (facebook: kompan klippistofa)
Rakarstofu Kjartans (facebook: kjartan rakari)
Vínbúðina.
Veitingastaðina: Thai Sakhon Restaurant (facebook: thai sakhon restaurant)
Svarta Sauðinn (facebook: svarti sauðurinn)
Skálann, sem jafnframt er sölustaður Orkunnar. Einnig er hér ÓB-stöð.
Caffe Bristól.
Hér er mjög góð heilsugæsla.
Hér er tannlæknir.
Í Ráðhúsi bæjarins eru, auk skrifstofu sveitarfélagsins:
Mjög gott bókasafn (facebook: Bæjarbókasafn Ölfuss) Landsbankinn
Tómstundir og afþreying:
Íþróttaiðkun í Þorlákshöfn er gríðarlega öflug og þá helst meðal barna og unglinga og er aðstaða til íþróttaiðkunar öll til mikillar fyrirmyndar.
Frá fjögurra ára aldri er í boði að iðka fótbolta (aegirfc.is), fimleika (facebook: fimleikadeild Þórs), körfubolta (facebook: Þór Þorlákshöfn) og frjálsar, ásamt því að iðkaður er badminton. Hér er svo einnig Litli íþróttaskólinn á vegum fimleikadeildarinnar fyrir börn frá eins árs aldri.
Motorcrossá braut rétt utan við bæinn.
Hestamennska (facebook: hestamannafélagið háfeti) með fallegum reiðleiðum allt um kring
Golf (facebook: golfklúbbur Þorlákshafnar) á rómuðum golfvelli sem staðsettur er í jaðri byggðarinnar, rétt við sjávarsíðuna.
Í íþróttamiðstöðinni er mjög góð líkamsræktar-aðstaða þar sem hægt er að komast í einka- þjálfun, spinning, hóptíma, líkamsrækt fyrir eldri borgara o.m.fl. Þar er að finna góða sundaðstöðumeð útilaug, heitum pottum, vaðlaug og skemmtilegri innilaug fyrir fjölskyldufólk. Jógastúdíó (Jógahornið). Öflug sjúkraþjálfun.
Afþreying er hér af ýmsum toga:
hér má meðal annars finna: Fallegt útivistarsvæði við vitann með útsýnispalli og göngustíg meðfram bjarginu í einstakri náttúrufegurð. Heilsustíg má finna í bænum þar sem líkamsræktartæki eru við göngu/hlaupastíga.
Hér er æðisleg strönd sem mikið er mikið notuð til útivistar og þar má oft sjá menn á brimbrettum, en slíkt er gott að stunda hér. Í sjónum við útsýnispallinn er einn vinsælasta staður til brimbrettaiðkunar á Íslandi.
Blackbeach tours (www.blackbeachtours.is) er afþreyingar fyrirtæki sem býður upp á fjórhjólaferðir bæði í fjöruna og um hraunið, RIB bátaferðir meðfram bjarginu og adrenalínferðir, snekkjuleigu og sjóstöng og jógaferðir úti í náttúrunni.
Einnig er hér: Öflugt leikfélag (facebook: leikfélag ölfuss).
Hinir ýmsu kórar (facebook: Tónar og Trix, Kyrjukórinn, ofl.) Einn stærsti Kiwanisklúbbur landsins (facebook: Kiwanisklúbburinn Ölver) O.sfr. o.s.frv.
** Allar helstu fréttir úr sveitarfélaginu má finna á: w
Húsið snýr í austur/vestur þannig að sólar nýtur í garði frá morgni til kvölds ! Húsið er staðsett í glænýju hverfi.
Húsið er klætt að utan með bárujárni og við í bland. Þak er valmaþak. Fallegir, gólfsíðir glugga eru í alrými !
** Allar nánari upplýsingar má nálgast í síma 483 3424 og á fastsud@gmail.com **
Húsið telur samkvæmt teikningu:
* 3 mjög rúmgóð svefnherbergi.
* Stórt eldhús og stofu í opnu rými. Úr alrýminu er utangengt í garðinn.
* Baðherbergi. Af baðherberginu er utangengt í garðinn þar sem gert er ráð fyrir heitum potti.
* Þvottahús.
* Góða geymslu.
* Anddyri.
Húsið afhendist tilbúið til innréttinga, byggingarstig 5 í eldri byggingarstigi, byggingarstig 3 í nýja byggingarstigi.
Frágangur utanhúss:
Húsið er byggt úr timbri og klætt að utan með ljósu bárujárni og með timbri í innskotum
vindskeiðar eru úr áli dökk grátt að lit.
Þakrennur og niðurföll verða frágengin sama lit og þakkantur.
Dökk gráir gluggar og hurðir verða fullfrágengir.
Lóðin verði grófjöfnuð, innkeyrsla grófjöfnuð með mulningi
Forsteypt Sorptunnuskýli.
Timbur í innskotum og að aftan verður komið.
Frágangur innanhúss:
Kraftsperrur eru í húsinu og öll loft niðurtekin.
inntök komin inn og greidd
hitalagnir steypt í plötu eru öllum gólfum og verður tengigrind fyrir hita frágengin. án stýringa
Rafmagn verður frágengið í töflu og tenglar og rofar komnir.(Vinnurafmagn)
Allir milliveggir verða komnir og verða klæddir með með 2x gifsi hvoru megin eða krossvið og gifs beggja vegna, og loft er klætt með gifsi.
Allir veggir og loft sandspörsluð og Grunnað í ljósum lit.
wc 2 veggir málaðir og loft.
Gólf slípað og yfirfarið kannski flotsparls.
Farið er eftir staðlinum tilbúið til innréttinga.
Allir veggir fullfrágengnir.
Raflangir komnar og dregið í dósir en ekki tengdar.
Vatnslagnir komnar að aftöppunarstað.
Inntök kominn inn og greidd.
FASTEIGNASALA SUÐURLANDS HEFUR VEITT VANDAÐA OG GÓÐA ÞJÓNUSTU SÍÐAN 2003 !
Fasteignasala Suðurlands, Unubakka 3b, Þorlákshöfn.
Heimasíða fasteignasölunnar: https://www.eignin.is/
Í Þorlákshöfn er þjónustustig mjög gott - hagnýtar upplýsingar:
Verslun og þjónusta: Hér má m.a. finna:
KRÓNU VERSLUN
Apótekarann.
Hárgreiðslustofuna Kompuna (facebook: kompan klippistofa)
Rakarstofu Kjartans (facebook: kjartan rakari)
Vínbúðina.
Veitingastaðina: Thai Sakhon Restaurant (facebook: thai sakhon restaurant)
Svarta Sauðinn (facebook: svarti sauðurinn)
Skálann, sem jafnframt er sölustaður Orkunnar. Einnig er hér ÓB-stöð.
Caffe Bristól.
Hér er mjög góð heilsugæsla.
Hér er tannlæknir.
Í Ráðhúsi bæjarins eru, auk skrifstofu sveitarfélagsins:
Mjög gott bókasafn (facebook: Bæjarbókasafn Ölfuss) Landsbankinn
Tómstundir og afþreying:
Íþróttaiðkun í Þorlákshöfn er gríðarlega öflug og þá helst meðal barna og unglinga og er aðstaða til íþróttaiðkunar öll til mikillar fyrirmyndar.
Frá fjögurra ára aldri er í boði að iðka fótbolta (aegirfc.is), fimleika (facebook: fimleikadeild Þórs), körfubolta (facebook: Þór Þorlákshöfn) og frjálsar, ásamt því að iðkaður er badminton. Hér er svo einnig Litli íþróttaskólinn á vegum fimleikadeildarinnar fyrir börn frá eins árs aldri.
Motorcrossá braut rétt utan við bæinn.
Hestamennska (facebook: hestamannafélagið háfeti) með fallegum reiðleiðum allt um kring
Golf (facebook: golfklúbbur Þorlákshafnar) á rómuðum golfvelli sem staðsettur er í jaðri byggðarinnar, rétt við sjávarsíðuna.
Í íþróttamiðstöðinni er mjög góð líkamsræktar-aðstaða þar sem hægt er að komast í einka- þjálfun, spinning, hóptíma, líkamsrækt fyrir eldri borgara o.m.fl. Þar er að finna góða sundaðstöðumeð útilaug, heitum pottum, vaðlaug og skemmtilegri innilaug fyrir fjölskyldufólk. Jógastúdíó (Jógahornið). Öflug sjúkraþjálfun.
Afþreying er hér af ýmsum toga:
hér má meðal annars finna: Fallegt útivistarsvæði við vitann með útsýnispalli og göngustíg meðfram bjarginu í einstakri náttúrufegurð. Heilsustíg má finna í bænum þar sem líkamsræktartæki eru við göngu/hlaupastíga.
Hér er æðisleg strönd sem mikið er mikið notuð til útivistar og þar má oft sjá menn á brimbrettum, en slíkt er gott að stunda hér. Í sjónum við útsýnispallinn er einn vinsælasta staður til brimbrettaiðkunar á Íslandi.
Blackbeach tours (www.blackbeachtours.is) er afþreyingar fyrirtæki sem býður upp á fjórhjólaferðir bæði í fjöruna og um hraunið, RIB bátaferðir meðfram bjarginu og adrenalínferðir, snekkjuleigu og sjóstöng og jógaferðir úti í náttúrunni.
Einnig er hér: Öflugt leikfélag (facebook: leikfélag ölfuss).
Hinir ýmsu kórar (facebook: Tónar og Trix, Kyrjukórinn, ofl.) Einn stærsti Kiwanisklúbbur landsins (facebook: Kiwanisklúbburinn Ölver) O.sfr. o.s.frv.
** Allar helstu fréttir úr sveitarfélaginu má finna á: w
Ár
Fasteignamat
Kaupverð
Stærð
Fermetraverð
13. mar. 2025
52.500.000 kr.
61.700.000 kr.
10102 m²
6.108 kr.
Byggt á upplýsingum úr Þjóðskrá Íslands frá 2006-2025