Upplýsingar
Verðsaga
Byggt 2023
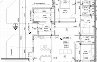
180,5 m²
5 herb.
2 baðherb.
4 svefnh.
Þvottahús
Sérinngangur
Lýsing
Virkilega falleg 6 herbergja hæð með tveimur baðherbergjum og stórum sólpall við Hádegisskarð 14 í Hafnarfirði.
Eignin er alls 180,5 fm og eru allir fm innan eignar.
Nánari lýsing:
Forstofa með flísum á gólfi og skáp
Forstofuherbergi með parketi á gólfi og skáp.
Stofa, borðstofa og eldhús í björtu alrými með útgengt út á stóran sólpall með skjólveggjum.
Eldhús með dökkgrárri innréttingu, tvöföldum ofni í vinnuhæð. Uppþvottavél innfelld og stæði fyrir tvöfaldan ísskáp, falleg eldunareyja.
Baðherbergi ( I) með flísum á gólfi og veggjum, "walk-in sturtu", speglaskáp og upphengdu salerni.
Sjónvarpshol með parketi á gólfi.
Hjónaherbergi afar rúmgott með skápum
Þrjú barnaherbergi með skápum og parketi á gólfi, eitt þeirra er með hurð út á pall.
Baðherbergi (II) með flísum á gólfi og veggjum, upphengt salerni, handklæðaofn og baðkar.
Þvottahús með stæði fyrir þvottavél og þurrkara, flísar á gólfi.
Stór og rúmgóð geymsla með hurð út. Flísar á gólfi og góðar hillur.
* Sólpallur um 70 fm með geymsluskúr og grillskýli.
* Innfelld lýsing í alrýmum.
* Bílaplan hellulagt ásamt gönguleið að húsi.
* Eigendur beggja íbúða hafa gert með sér samkomulag um að lóð vinstra megin við húsið tilheyrir þesari íbúð og lóð hægra megin tilheyri hinni íbúðinni
* Skemmtileg fjölskyldueign þar sem flæði stofu, borðstofu og eldhúss er virkilega skemmtilegt.
* Ekkert starfandi húsfélag er í húsinu.
Burðarvirki húss eru forsteyptar einingar, einangrað að utan og klætt með álklæðningu.
Á lóð eru 2-3 bílastæði fyrir hvora íbúð, bílastæði með rafhleðslumöguleika.
Staðsetning bílastæða á lóð er breytt frá gildandi deiliskipulagi, í gildandi deiliskipulagi eru bílastæðin staðsett hægra megin við byggingarreit.
Húsið er hannað af Jóhanni Einari Jónssyni hjá Teikna Teiknistofa arkitekta
UTANHÚSSFRÁGANGUR
Útveggir eru hefðbundnir forsteyptar einingar einangraðir að utan verðu með 100 mm steinullareinangrun og klæddir álklæðningu á tilheyrandi upphengikerfi.
Meginhluti húss er klæddur lóðréttri 18/76 klassískri báru í dökk gráum og hvítum lit. Til að brjóta ásýnd hússins upp er tveggja hæða massi byggingar í dökk
gráum lit og einnar hæðar massi undir þaksvölum í hvítum lit. Við innganga og innskot er svo byggingin klædd með standandi viðarklæðningu í lit sem tónar með
gluggalit.
Frábær fjölskyldueign og góðum stað í Skarðshlíðinni þar sem stutt er í skóla og leikskóla.
Nánari upplýsingar veitir Eiríkur Svanur Sigfússon löggiltur fasteignasali í s. 862-3377 / eirikur@as.is og Svala Haraldsdóttir löggiltur fasteignasali í s. 820-9699 / svala@as.is
Ás fasteignasala er rótgróið fyrirtæki sem hefur veitt alla almenna þjónustu í fasteignaviðskiptum frá árinu 1988.
www.facebook.com/asfasteignasala
www.instagram.com/as_fasteignasala
www.as.is
Eignin er alls 180,5 fm og eru allir fm innan eignar.
Nánari lýsing:
Forstofa með flísum á gólfi og skáp
Forstofuherbergi með parketi á gólfi og skáp.
Stofa, borðstofa og eldhús í björtu alrými með útgengt út á stóran sólpall með skjólveggjum.
Eldhús með dökkgrárri innréttingu, tvöföldum ofni í vinnuhæð. Uppþvottavél innfelld og stæði fyrir tvöfaldan ísskáp, falleg eldunareyja.
Baðherbergi ( I) með flísum á gólfi og veggjum, "walk-in sturtu", speglaskáp og upphengdu salerni.
Sjónvarpshol með parketi á gólfi.
Hjónaherbergi afar rúmgott með skápum
Þrjú barnaherbergi með skápum og parketi á gólfi, eitt þeirra er með hurð út á pall.
Baðherbergi (II) með flísum á gólfi og veggjum, upphengt salerni, handklæðaofn og baðkar.
Þvottahús með stæði fyrir þvottavél og þurrkara, flísar á gólfi.
Stór og rúmgóð geymsla með hurð út. Flísar á gólfi og góðar hillur.
* Sólpallur um 70 fm með geymsluskúr og grillskýli.
* Innfelld lýsing í alrýmum.
* Bílaplan hellulagt ásamt gönguleið að húsi.
* Eigendur beggja íbúða hafa gert með sér samkomulag um að lóð vinstra megin við húsið tilheyrir þesari íbúð og lóð hægra megin tilheyri hinni íbúðinni
* Skemmtileg fjölskyldueign þar sem flæði stofu, borðstofu og eldhúss er virkilega skemmtilegt.
* Ekkert starfandi húsfélag er í húsinu.
Burðarvirki húss eru forsteyptar einingar, einangrað að utan og klætt með álklæðningu.
Á lóð eru 2-3 bílastæði fyrir hvora íbúð, bílastæði með rafhleðslumöguleika.
Staðsetning bílastæða á lóð er breytt frá gildandi deiliskipulagi, í gildandi deiliskipulagi eru bílastæðin staðsett hægra megin við byggingarreit.
Húsið er hannað af Jóhanni Einari Jónssyni hjá Teikna Teiknistofa arkitekta
UTANHÚSSFRÁGANGUR
Útveggir eru hefðbundnir forsteyptar einingar einangraðir að utan verðu með 100 mm steinullareinangrun og klæddir álklæðningu á tilheyrandi upphengikerfi.
Meginhluti húss er klæddur lóðréttri 18/76 klassískri báru í dökk gráum og hvítum lit. Til að brjóta ásýnd hússins upp er tveggja hæða massi byggingar í dökk
gráum lit og einnar hæðar massi undir þaksvölum í hvítum lit. Við innganga og innskot er svo byggingin klædd með standandi viðarklæðningu í lit sem tónar með
gluggalit.
Frábær fjölskyldueign og góðum stað í Skarðshlíðinni þar sem stutt er í skóla og leikskóla.
Nánari upplýsingar veitir Eiríkur Svanur Sigfússon löggiltur fasteignasali í s. 862-3377 / eirikur@as.is og Svala Haraldsdóttir löggiltur fasteignasali í s. 820-9699 / svala@as.is
Ás fasteignasala er rótgróið fyrirtæki sem hefur veitt alla almenna þjónustu í fasteignaviðskiptum frá árinu 1988.
www.facebook.com/asfasteignasala
www.instagram.com/as_fasteignasala
www.as.is
Ár
Fasteignamat
Kaupverð
Stærð
Fermetraverð
8. maí. 2024
87.800.000 kr.
97.500.000 kr.
10101 m²
9.653 kr.
Byggt á upplýsingum úr Þjóðskrá Íslands frá 2006-2025