Upplýsingar
Verðsaga
83 m²
3 herb.
1 baðherb.
2 svefnh.
Sameiginl. inngangur
Bílastæði
Lyfta
Laus strax
Lýsing
BÓKIÐ SKOÐUN - Vala s. 791-7500, Hlynur s. 698-2603, Helgi s. 893-2233
Hraunhamar kynnir: Glæsilega nýbyggingu á frábærum stað í Hamraneshverfinu í Hafnarfiði, þar sem stutt er í alla helstu þjónustu.
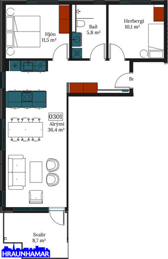
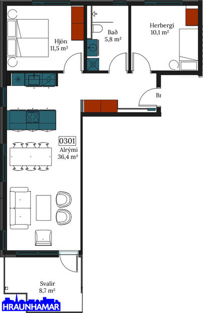
Íbúð 301 er þriggja herbergja íbúð, skráð 83,0 fermetrar með geymslu. Auk þess fylgir stæði með í lokaðri bílageymslu.
Íbúðin er til afhendingar við kaupsamning.
Íbúðirnar skilast fullbúnar með gólfefnum
Sjá nánar um íbúðina hér. Sjá söluvef íbúða hér.
Íbúðirnar afhendast fullbúnar án gólfefna en votrými verða flísalögð.
Húsið er klætt að utan með álklæðningu, og ál/timbur gluggar.
_________________________
3ja og 4ra herb.
Stærð frá 80 fm til 124,3 fm.
_________________________
Áshamar 12-18 verður byggt eftir ströngum eftirlitsstaðli Svansins.
Sjá frekari upplýsingar um Svansvottun nýbygginga með því að smella hér.
Um er að ræða virkilega skemmtilega þriggja herbergja íbúð á 3. hæð með svölum.
Nánari lýsing skv. teikningu:
Forstofa með fataskáp.
Gott opið rými, þar sem eldhús og stofa eru samliggjandi.
Eldhús með smekklegri innréttingu frá HTH og vönduðum eldunartækjum.
Björt stofa og borðstofa og þaðan er útgengt á svalir sem snúa til suðurs.
Gott svefnherbergi með fataskáp.
Hjónaherbergi með fataskápum.
Flísalagt baðherbergi með innréttingu, upphengdu salerni og sturtu.
Geymsla í kjallara.
Sér stæði í bílageymslu.
Áshamar 12-18 er hluti af klasabyggingu þar sem skemmtilegur garður mun tengja húsin saman.
Eykt ehf er byggingaraðili hússins sem er reynslumikið og traust byggingarfyrirtæki með áratuga reynslu.
Kaupandi borgar skipulagsgjald þegar þess verður krafist sem er 0,3 % af væntu brunabótamati eignarinnar.
Smelltu hér til að sjá skilalýsingu.
Bókið skoðun hjá sölumönnum Hraunhamars:
Valgerður Gissurardóttir löggiltur fasteignasali s.791-7500, vala@hraunhamar.is
Hlynur Halldórsson, löggiltur fasteignasali, s. 698-2603, hlynur@hraunhamar.is
Glódís Helgadóttir, löggiltur fasteignasali, s. 659-0510, glodis@hraunhamar.is
Helgi Jón Harðarson, sölust. s. 893-2233, helgi@hraunhamar.is
Gjöld sem kaupandi þarf að standa straum af vegna kaupanna:
1. Stimpilgjald af kaupsamningi, fyrstu kaup (0,4%), almenn kaup (0,8%), lögaðilar (1,6%) af heildarfasteignamati.
2. Þinglýsingargjald af kaupsamningi, veðskuldabréfi, mögulegu veðleyfi o.fl. – kr. 2.700 kr. af hverju skjali.
3. Lántökugjald lánastofnunar er skv. verðskrá viðkomandi lánastofnunar.
4. Umsýslugjald til fasteignasölu skv. þjónustusamningi
Hraunhamar er elsta fasteignasala Hafnarfjarðar, stofnuð 1983 og fagnar því 40 ára afmæli á árinu 2023.
Hraunhamar, í farabroddi í 40 ár ! – Hraunhamar.is
Smelltu hér til að fá frítt söluverðmat.
Hraunhamar kynnir: Glæsilega nýbyggingu á frábærum stað í Hamraneshverfinu í Hafnarfiði, þar sem stutt er í alla helstu þjónustu.
Íbúð 301 er þriggja herbergja íbúð, skráð 83,0 fermetrar með geymslu. Auk þess fylgir stæði með í lokaðri bílageymslu.
Íbúðin er til afhendingar við kaupsamning.
Íbúðirnar skilast fullbúnar með gólfefnum
Sjá nánar um íbúðina hér. Sjá söluvef íbúða hér.
Íbúðirnar afhendast fullbúnar án gólfefna en votrými verða flísalögð.
Húsið er klætt að utan með álklæðningu, og ál/timbur gluggar.
_________________________
3ja og 4ra herb.
Stærð frá 80 fm til 124,3 fm.
_________________________
Áshamar 12-18 verður byggt eftir ströngum eftirlitsstaðli Svansins.
Sjá frekari upplýsingar um Svansvottun nýbygginga með því að smella hér.
Um er að ræða virkilega skemmtilega þriggja herbergja íbúð á 3. hæð með svölum.
Nánari lýsing skv. teikningu:
Forstofa með fataskáp.
Gott opið rými, þar sem eldhús og stofa eru samliggjandi.
Eldhús með smekklegri innréttingu frá HTH og vönduðum eldunartækjum.
Björt stofa og borðstofa og þaðan er útgengt á svalir sem snúa til suðurs.
Gott svefnherbergi með fataskáp.
Hjónaherbergi með fataskápum.
Flísalagt baðherbergi með innréttingu, upphengdu salerni og sturtu.
Geymsla í kjallara.
Sér stæði í bílageymslu.
Áshamar 12-18 er hluti af klasabyggingu þar sem skemmtilegur garður mun tengja húsin saman.
Eykt ehf er byggingaraðili hússins sem er reynslumikið og traust byggingarfyrirtæki með áratuga reynslu.
Kaupandi borgar skipulagsgjald þegar þess verður krafist sem er 0,3 % af væntu brunabótamati eignarinnar.
Smelltu hér til að sjá skilalýsingu.
Bókið skoðun hjá sölumönnum Hraunhamars:
Valgerður Gissurardóttir löggiltur fasteignasali s.791-7500, vala@hraunhamar.is
Hlynur Halldórsson, löggiltur fasteignasali, s. 698-2603, hlynur@hraunhamar.is
Glódís Helgadóttir, löggiltur fasteignasali, s. 659-0510, glodis@hraunhamar.is
Helgi Jón Harðarson, sölust. s. 893-2233, helgi@hraunhamar.is
Gjöld sem kaupandi þarf að standa straum af vegna kaupanna:
1. Stimpilgjald af kaupsamningi, fyrstu kaup (0,4%), almenn kaup (0,8%), lögaðilar (1,6%) af heildarfasteignamati.
2. Þinglýsingargjald af kaupsamningi, veðskuldabréfi, mögulegu veðleyfi o.fl. – kr. 2.700 kr. af hverju skjali.
3. Lántökugjald lánastofnunar er skv. verðskrá viðkomandi lánastofnunar.
4. Umsýslugjald til fasteignasölu skv. þjónustusamningi
Hraunhamar er elsta fasteignasala Hafnarfjarðar, stofnuð 1983 og fagnar því 40 ára afmæli á árinu 2023.
Hraunhamar, í farabroddi í 40 ár ! – Hraunhamar.is
Smelltu hér til að fá frítt söluverðmat.
Ár
Fasteignamat
Kaupverð
Stærð
Fermetraverð
7. ágú. 2025
59.400.000 kr.
69.000.000 kr.
10301 m²
6.698 kr.
Byggt á upplýsingum úr Þjóðskrá Íslands frá 2006-2025