Löggiltir fasteignasalar innan Félags fasteignasala:
Gyða Gerðarsdóttir
Upplýsingar
Verðsaga
Byggt 2006
135,4 m²
4 herb.
1 baðherb.
3 svefnh.
Þvottahús
Bílskúr
Sérinngangur
Lýsing
EIGNIN ER SELD MEÐ HEFÐBUNDNUM FYRIRVARA!
VANTAR ALLAR GERÐIR EIGNA Á SKRÁ!
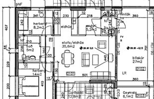
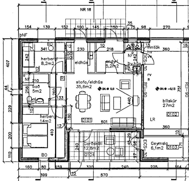
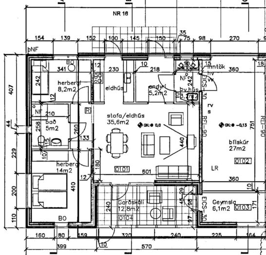
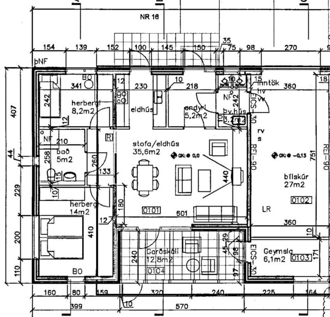
Hrönnin fasteignasala kynnir: Fallegt og bjart 4ra herbergja endaraðhús á einni hæð með bílskúr, alls 135,4 fm, þar af bílskúr 29,7 fm. Góð afgirt verönd og heitur pottur - Frábær staðsetning í göngufæri við skóla og leikskóla - Stutt í stofnæðar.
Nánari lýsing:
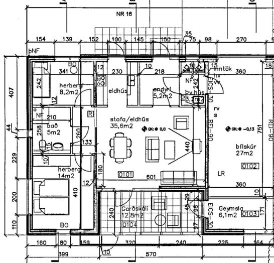
Komið inn í rúmgóða forstofu, skápar og flísar á gólfi.
Stofa, borðstofa og sólkáli í opnu rými. Inn af sólaskála er ágætt svefnhbergi ( á teikningu merkt sem geymsla).
Frá sólskála er gengið út á afgirta skjólsæla verönd með heitum potti.
Eldhús er inn af borðstofu, gott skápapláss, ofn í vinnuhæð og helluborð. Stæði fyrir uppþvottavél og ísskáp. Frá eldhúsi er útgengt út í garð framan við hús..
Svefnherbergisálma með ágætu herbergi og skáp. Rúmgott baðherbergi með sturtuklefa, innréttingu, upphengt salerni og handklæðaofni. Flísar á gólfi og veggjum.
Stórt og bjart hjónaherbergi með góðu skápaplássi.
Inn af forstofu er þvottahús, með vaski, hillum og snúrum. Það er innangengt í bílskúrinn. Bílskúrinn er með rafdrifinni hurð, millilofti og lökkuðu gólfi, ágætt skápapláss. Gott upphitað bílaplan fyrir utan hús fyrir tvo bíla.
Fasteignamat 2026: 80.850.000,-
Sólskáli var yfirfarin og lagaður fyrir rúmu ári og nýlegt harðparket er á allri íbúðinni, að undanskildum bílskúr og votrýmum.
Eignin er laus til afhendingar þremur mánuðum eftir kaupsamning eða skv. samkomulagi.
Húsið hefur verið leigt út til ferðamanna og möguleiki að kaupa hluta innbús með eigninni
Allar nánari upplýsingar veitir Gyða Gerðarsdóttir, lögg. fasteignasali & leigumiðlari í s. 695-1095. gyda@hronnin.is
VANTAR ALLAR GERÐIR EIGNA Á SKRÁ!
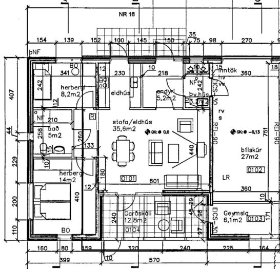
Hrönnin fasteignasala kynnir: Fallegt og bjart 4ra herbergja endaraðhús á einni hæð með bílskúr, alls 135,4 fm, þar af bílskúr 29,7 fm. Góð afgirt verönd og heitur pottur - Frábær staðsetning í göngufæri við skóla og leikskóla - Stutt í stofnæðar.
Nánari lýsing:
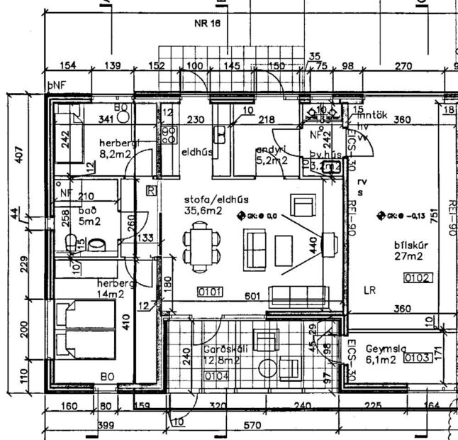
Komið inn í rúmgóða forstofu, skápar og flísar á gólfi.
Stofa, borðstofa og sólkáli í opnu rými. Inn af sólaskála er ágætt svefnhbergi ( á teikningu merkt sem geymsla).
Frá sólskála er gengið út á afgirta skjólsæla verönd með heitum potti.
Eldhús er inn af borðstofu, gott skápapláss, ofn í vinnuhæð og helluborð. Stæði fyrir uppþvottavél og ísskáp. Frá eldhúsi er útgengt út í garð framan við hús..
Svefnherbergisálma með ágætu herbergi og skáp. Rúmgott baðherbergi með sturtuklefa, innréttingu, upphengt salerni og handklæðaofni. Flísar á gólfi og veggjum.
Stórt og bjart hjónaherbergi með góðu skápaplássi.
Inn af forstofu er þvottahús, með vaski, hillum og snúrum. Það er innangengt í bílskúrinn. Bílskúrinn er með rafdrifinni hurð, millilofti og lökkuðu gólfi, ágætt skápapláss. Gott upphitað bílaplan fyrir utan hús fyrir tvo bíla.
Fasteignamat 2026: 80.850.000,-
Sólskáli var yfirfarin og lagaður fyrir rúmu ári og nýlegt harðparket er á allri íbúðinni, að undanskildum bílskúr og votrýmum.
Eignin er laus til afhendingar þremur mánuðum eftir kaupsamning eða skv. samkomulagi.
Húsið hefur verið leigt út til ferðamanna og möguleiki að kaupa hluta innbús með eigninni
Allar nánari upplýsingar veitir Gyða Gerðarsdóttir, lögg. fasteignasali & leigumiðlari í s. 695-1095. gyda@hronnin.is
Ár
Fasteignamat
Kaupverð
Stærð
Fermetraverð
15. okt. 2018
31.700.000 kr.
40.300.000 kr.
135.4 m²
297.637 kr.
23. nóv. 2015
23.550.000 kr.
30.573.000 kr.
135.4 m²
225.798 kr.
5. jan. 2007
18.025.000 kr.
25.600.000 kr.
135.4 m²
189.069 kr.
Byggt á upplýsingum úr Þjóðskrá Íslands frá 2006-2026