Upplýsingar
Verðsaga
Byggt 2006
104,5 m²
3 herb.
1 baðherb.
2 svefnh.
Þvottahús
Útsýni
Sameiginl. inngangur
Lyfta
Laus strax
Lýsing
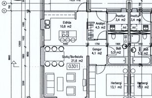
Betri Stofan fasteignasala og Jason Kristinn Ólafsson, sími 7751515 kynnir: Lindargata 27, 101 Reykjavík. 104,5 fermetra, 3ja herbergja endaíbúð.
Eignin skiptist í eftirfarandi: Forstofa, þvottahús, baðherbergi, tvö svefnherbergi, stofa, eldhús, svalir og sérgeymsla.
Fasteignamat um næstu áramót verður kr. 93.000.000-
Nánari lýsing:
Forstofa: flsalagt með fataskáp og gluggum.
Eldhús með eyju innaf stofunni.
Stofa með hurð út á suðursvalir. Góðir gaflgluggar á stofunni og eldhúsinu. Gott hjónaherbergi með skáp.
Svefnherbergi II: Með parketi.
Þvottahús með gólfflísum og innréttingu.
Baðherbergi: Flísalagt með baðkari og innréttingu.
Sérgeymsla: Góð geymsla er í sameign.
Falleg íbúð á 3. hæð í lyftuhúsi. Íbúðin er laus við kaupsamning. Útsýni er frá íbúðinni. Góð bílastæði á lóð norðanmegin við húsið. Eftirsótt staðsetning. Stutt í verslun og þjónustu.
Nánari upplýsingar veita:
Jason Kristinn Ólafsson, sími 775 1515 - löggiltur fasteignasali. - netfang: jason@betristofan.is
Eignin skiptist í eftirfarandi: Forstofa, þvottahús, baðherbergi, tvö svefnherbergi, stofa, eldhús, svalir og sérgeymsla.
Fasteignamat um næstu áramót verður kr. 93.000.000-
Nánari lýsing:
Forstofa: flsalagt með fataskáp og gluggum.
Eldhús með eyju innaf stofunni.
Stofa með hurð út á suðursvalir. Góðir gaflgluggar á stofunni og eldhúsinu. Gott hjónaherbergi með skáp.
Svefnherbergi II: Með parketi.
Þvottahús með gólfflísum og innréttingu.
Baðherbergi: Flísalagt með baðkari og innréttingu.
Sérgeymsla: Góð geymsla er í sameign.
Falleg íbúð á 3. hæð í lyftuhúsi. Íbúðin er laus við kaupsamning. Útsýni er frá íbúðinni. Góð bílastæði á lóð norðanmegin við húsið. Eftirsótt staðsetning. Stutt í verslun og þjónustu.
Nánari upplýsingar veita:
Jason Kristinn Ólafsson, sími 775 1515 - löggiltur fasteignasali. - netfang: jason@betristofan.is
Gjöld sem kaupandi þarf að standa straum af ef að kaupum verður:
1. Stimpilgjald af fasteignamati fasteignar er 0.8%, en 0,4% fyrir fyrstu kaup og 1,6% fyrir lögaðila.
2. Þinglýsingargjald: kaupsamningi, skuldabréfi, veðleyfi, afsali o.s.frv. er kr. 2.700 af hverju skjali.
3. Lántökukostnaður samkvæmt verðskrá viðkomandi lánastofnunar.
4. Umsýslugjald til fasteignasölu skv. gjaldskrá.
Ár
Fasteignamat
Kaupverð
Stærð
Fermetraverð
24. sep. 2018
56.800.000 kr.
56.000.000 kr.
104.5 m²
535.885 kr.
28. maí. 2015
39.250.000 kr.
47.500.000 kr.
104.5 m²
454.545 kr.
14. ágú. 2007
22.660.000 kr.
35.900.000 kr.
104.5 m²
343.541 kr.
Byggt á upplýsingum úr Þjóðskrá Íslands frá 2006-2025