Upplýsingar
Byggt 2025
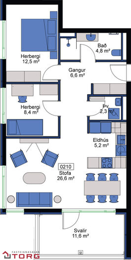
83,7 m²
3 herb.
1 baðherb.
2 svefnh.
Sameiginl. inngangur
Bílastæði
Lyfta
Lýsing
Fasteignasalan TORG og Sigríður Rut, lgfs. kynna: GLÆSILEGA 3JA HERBERGJA ÍBÚÐ Á 2. HÆÐ Í NÝJU GLÆSILEGU LYFTUHÚSI VIÐ BOLHOLT 7-9 Í REYKJAVÍK MEÐ STÆÐI Í LOKAÐRI BÍLAGEYMSLU. BOLTHOLT 7-9 ER VEL STAÐSETT LYFTUHÚS SEM ER STAÐSETT Á VALHALLARREITNUM Á MJÖG GÓÐUM STAÐ MIÐSVÆÐIS Í REYKJAVÍK. ÞAÐ VERÐA 47 ÍBÚÐIR Í HÚSINU AUK VERSLUNARRÝMIS. STÆÐI Í BÍLAKJALLARA FYLGIR FLESTUM ÍBÚÐUNUM. Auk bílakjallara verða 49 bílastæði á sameiginlegri lóð. Traustur byggingaaðili Byggingarfélag Gylfa og Gunnars hf. Allar nánari upplýsingar og skoðun veitir Sigríður Rut löggiltur fasteignasali í gsm- 699-4610 eða siggarut@fstorg.is eða Helgi Jónsson Löggiltur fasteignasali í síma : 780-2700 / Helgi@fstorg.is
Nánari lýsing. Um er ræða glæsilega og vel skipulagða 3ja herbergja íbúð á 2. hæð, merkt 0210 í Bolholti 9 í fallegu nýju álklæddu lyftuhúsi. Allar innréttingar eru frá Axis, raftækin koma frá Ormson og innihurðir eru frá Parka. Eldhúsvaskur og blöndunartæki frá Tengi. Íbúðirnar eru upphitaðar með gólfhita a en í sameign með ofnakerfi. Íbúðin sjálf er 78,4 fm. Sérgeymsla í kjallara er 5,3 fm. Samtals er eignin því skráð 83,7 fm. Stæði í bílakjallara fylgir íbúðinni merkt B-19
Skilalýsing
1. Frágangur íbúða innanhúss
1.1. Gólfefni
Íbúðin sjálf verður afhent án gólfefna, nema á baðherbergi og í þvottahúsi.
1.2. Veggir
Útveggir íbúðarinnar eru sandsparslaðir. Léttir innveggir eru hlaðnir úr vikur- eða gjallplötum, grófpússaðir og sandsparslaðir eða hefðbundnir gipsplötuveggir sparslaðir. Veggir eru grunnaðir og málaðir með tveimur yfirferðum af hvítri akrýlmálningu, gljástig 5 eða sambærilegt. Á baðherbergi og í Þvottahúsi eru veggir málaðir með viðurkenndri votrýmismálningu.
1.3. Loft
Steypt loft eru slípuð, og slétt sandspörtluð. Loft eru grunnuð og máluð með tveimur yfirferðum af hvítri plastmálningu, gljástig 2 eða sambærilegt. Loft á baðherbergi og í þvottahúsi er málað með viðurkenndri votrýmismálningu. Í ákveðnum íbúðum eru loft klædd gipsplötum, grunnuð, spörsluð og máluð með tveimur yfirferðum af hvítri plastmálningu, gljástig 2 eða sambærilegt. Á völdum stöðum í ákveðnum íbúðum á 4-6. hæð eru loft niðurtekin með hljóðdúk.
1.4. Gler
Tvöfalt hefðbundið K-gler, verksmiðjugler er í öllum gluggum. Ábyrgð framleiðanda er samkvæmt skilmálum BYKO glerframleiðanda. Við afhendingu íbúðar yfirtekur/taka kaupandi/kaupendur ábyrgð framleiðanda.
1.5. Sólbekkir
Sólbekkir verða þar sem við á úr plastlögðum spónaplötum.
1.6. Hurðir
Inngangshurð EI30-CS inn í íbúðina verður spónlögð. Innihurðar eru yfirfelldar, sléttar og sprautulakkaðar hvítar. Inngangshurðir inn í íbúðir og innihurðir eru frá Parka.
1.7. Fataskápar
Fataskápar eru í forstofu og í svefnherbergjum. Í sumum hjónaherbergjum eru fataherbergi ýmist með rennihurðum og/eða hefðbundnum skápahurðum. Innréttingar verða úr ljósu Melamin efni og koma frá Axis.
1.8. Eldhús
Eldhúsinnrétting verður úr ljósu Melamin efni og kemur frá Axis. Borðplötur verða plastlagðar og koma þær einnig frá Axis. Eldhúsvaskur og blöndunartæki frá Tengi fylgja, ásamt helluborði með gufugleypi eða helluborði með innbyggðum gufugleypi þar sem við á. Einnig mun fylgja ofn með blæstri, innbyggð uppþvottvél með áklæddum fronti og innbyggður kæliskápur með frysti. Raftæki sem fylgja koma frá Ormsson.
1.9. Baðherbergi
Á baðherbergi er gólf flísalagt og verða veggir flísalagðir upp í loft, flísar koma frá Parka. Baðherbergis innrétting verður úr ljósu Melamin efni og kemur frá Axis. Borðplötur verða plastlagðar og koma þær einnig frá Axis. Á baðherbergi verða ýmist speglaskápar eða speglar eftir því sem við á. Gert er ráð fyrir niðurfalli í gólfi. Handlaug, handlaugartæki og handklæðaofnar fylga þar sem við á ásamt innbyggðu, upphengdu salerni með hæglokandi setu og innbyggt sturtutæki verður í sturtu. Baðherbergis tæki koma frá Tengi. Sturtubotn verður flísalagður. Gert er ráð fyrir sturtuhlið eða sturtuklefa úr gleri eftir því sem við á eða innangengt sturturými eftir því sem við á.
1.10. Þvottahús
Í þvottahúsi er gólf flísalagt og innrétting verður úr hvítu Melamin efni og kemur frá Axis. Borðplötur verða plastlagðar með ræstivask og blöndunartæki frá Tengi. Ekki eru ræstivaskar í þeim íbúðum sem eru með sameiginlegt bað og þvottahús. Niðurfall er í gólfi og tengingar fyrir þvottvél og þurrkara. Gert er ráð fyrir barkalausum þurrkara. Veggir eru grunnaðir og málaði með hvítri viðurkenndri votrýmis málningu.
1.11. Sérgeymsla
Steypt loft, veggir og gólf í sérgeymslum eru hreinsuð og máluð eða lögð epoxy efni þar sem við á. Skilveggir á milli geymslna eru ýmist, steyptir, hlaðnir eða með timburgrind og málaðri plötuklæðningu. Geymslu gangar verða ýmist málaðir eða lagðir epoxy efni. Rafmagnstengill er í sérgeymslu.
1.12. Hitakerfi
Íbúðirnar eru upphitaðar með gólfhita en sameign með ofnakerfi skv. teikningum. Gólfhita- og ofnakerfi í sameign fylgir frágengið og verða hitastýrðir lokar á því.
1.13. Loftræsi-, vatns- og þrifalagnir
Loftræsi-, vatns, - og þrifalagnir fylgja frágengnar skv. teikningum. Forhitari er á heitu neysluvatni.
1.14. Rafmagns- og sjónvarpslagnir
Rafmagns- og sjónvarpslögn fylgir frágengin með einum mynddyrasíma í íbúð. Loftnetstengill verður í alrými ásamt tölvutengli. Tölvutenglar verða í herbergjum. Ljósleiðari verður í húsinu. Innfelld lýsing í alrými ( stofu og eldhúsi) er með dimmum.
2. Frágangur sameignar
2.1. Anddyri og stigahús
Steyptir innveggir í sameign og geymslum eru hreinsaðir og málaðir. Sameign á hverri íbúðarhæð og stigagangur eru sandspartlaðir, grunnaðir og málaðir tveimur yfirferðum af ljósri plastmálningu. Anddyri er flísalagt með uppsettum póstkössum, íbúðartöflu og dyrabjöllu. Stigar og stigapallar eru teppalagðir en það er gert nokkru eftir að íbúðareigendur hafa flutt inn. Stigahlaup að kjallara er flísalagt og brunastúkur. Á stigum og pöllum eru uppsett handrið. Raflögn í sameign fylgir frágengin með ljósakúplum þar sem venja er að hafa þá ásamt lýsingu í lofti þar sem við á. Loftræsilagnir eru lagðar samkvæmt teikningum.
2.2. Hurðir
Allar útihurðar fylgja frágengnar. Aðalhurð er úr áli. Innri anddyrishurðir er úr áli með mótorknúinni hurðarpumpu þar sem við á. Hurðir frá bílgeymslu gegnum brunastúkur verða með rafmagnsopnun.
2.3. Lyftur
Fólkslyftur frá Schindler eru í hvoru stigahúsi og verða tilbúnar til notkunar við afhendingu
2.4. Lokað bílageymsluhús
Bílageymsla er í kjallara hússins með máluðu loft og fermacell klæðningu þar sem við á. Útveggir verða einangraðir ýmist að utan- eða innanverðu eftir því sem við á. Þeir eru hreinsaðir og slípaðir að innanverðu og málaðir. Hitablásar og loftræsikerfi fylgir frágengið í samræmi við teikningar. Gólf er steypt og vélslípað án frekari meðhöndlunar en bílastæði eru merkt. Sprungur geta myndast á yfirborði gólfsins sem verða ekki meðhöndlaðar frekar. Hurð í bílageymslu fylgir frágengin með sjálfvirkum opnunarbúnaði og einni fjarstýringu á hvert stæði. Rafmagnstengill fylgir hverju stæði.
2.5. Hjóla- og vagnageymslur
Steyptir innveggir í hjóla- og vagnageymslu eru hreinsaðir, slípaðir og málaðir. Gólf verða slípuð lögð epoxy efni.
2.6. Sorpgeymslur
Veggir eru með múrfiltun og málaðir. Gólf eru slípuð og lögð epoxy.
3. Frágangur utanhúss
3.1. Klæðning og einangrun
Útveggir verða einangraðir ýmist að utan- eða innanverðu eftir því sem við á og álklætt að mestu að utan. Kjallaraveggir eru múraðir á einangrun og veggir 1. hæðar að hluta með flísaklæðningu. Sprungur geta myndast á yfirborði múrveggja sem verða ekki meðhöndlaðar frekar.
3.2. Steypt þak
Þakplata er staðsteypt eða úr forsteyptum holplötum þar sem við á með vatnshalla að niðurföllum. Ofaná steypta plötu kemur tvöfalt lag af eldsoðnum tjörupappa og 5 mm takkadúk. Einangrun er 200 mm rakaþolin þrýstieinangrun. Ofan á einangrun kemur vatnsvarnardúkur með öndun, einangrun er fergd með sjávarmöl/völusteinum. Niðurföll eru tengd regnvatnslögnum.
3.3. Svalir
Svalagólf eru steypt, slípuð og múrfíltuð eftir því sem við á. Á þaksvölum eru svalir hellulagðar ofan á einangrun. Svalahandrið eru úr áli og gleri. Útiljós og rafmagnstengill er á svölum. Svalaloft eru slípuð, grunnuð og máluð.
3.4. Svalalokun
Möguleiki er á svalalokun samkvæmt aðalteikningum arkitekts. Sjá nánar á aðalteikningum.
3.5. Gluggar
Gluggar eru álklæddir timburgluggar frá BYKO. Opnanleg gluggafög fylgja frágengin, svo og allar úti- og svalahurðir að fullu frágengnar með þéttiköntum.
3.6. Lóð
Lóð verður fullfrágenginn samkvæmt leiðbeinandi teikningu landslagsarkitekts. Stéttar næst húsi verða hellulagðar og snjóbræðslulögn í gangstíg framan við húsið samkvæmt teikningu. Bílastæði eru hellulögð og akbraut malbikuð.
Bygginarfélagið mun leggja til að stofnað verðir lóðarfélag sem byggir á fjöleignarhúsalögum og heldur utan um sameiginlegan kostnað við rekstur lóðarinnar fyrir þá matshluta sem tilheyra lóðinni.
4. Hönnuðir
Arkitekt: THG ARKITEKTAR
Verkfræðihönnun: VEKTOR – hönnun og ráðgjöf
Raflagnahönnun: Tesla ehf
Lóðarhönnun: Landslag ehf.
5. Teikningar
Í kaupsamningi kemur fram hvaða teikningar arkitekts eru í gildi á þeim tíma þegar kaupsamningur er gerður. Á byggingartíma hússins áskilur byggingarfélagið sér rétt til að breyta þessum teikningum í samráði við arkitekt vegna tæknilegra úrfærslna sem upp geta komið upp á meðan framkvæmd stendur. Teikningar annarra hönnuða geta líka breyst vegna tæknilegra útfærslna og/eða breytinga vegna búnaðar sem síðar er valinn inn í eða utan á húsið.
6. Byggingaraðili
Byggingaraðili er Byggingarfélag Gylfa og Gunnars hf.
Byggingarstjóri Bygg, Atli Geir Gunnarsson Atli@bygg.is
Verkefnastjóri Bygg, Skarphéðinn Njálsson Skarphedinn@bygg.is
Frekari upplýsingar um efnisval og önnur mál má nálgast hjá verkefnastjóra Byggingarfélagins
7. Áætlaður afhendingar tími
Áætlað er að íbúðir við Bolholt 7-9 verði afhentar á tímabilinu febrúar 2026 – mars 2026. Bolholt 7 verður afhent í mars 2026 og Bolholt 9 verður afhent í febrúar 2026.
Sameign, lóð og bílageymsla verður afhent samhliða afhendingu síðustu íbúða í Bolholti 7.
Allar breytingar á íbúðinni sjálfri og einstaka hluta í henni að ósk kaupanda hefur áhrif á afhendingartíma til seinkunnar. Allar breytingar sem kaupendur hafa huga á að gera þarf að gera í samráði við verkefnastjóra skriflega og mun hann meta hvort þær séu framkvæmanlegar. Íbúðareigandi er sjálfur ábyrgur fyrir því að bæði söluaðilar efnis ásamt verkefnastjóra byggingarfélagissins séu upplýstir um allar breytingar með pósti. Íbúðareigandi er sjálfur ábyrgur vegna viðbótarkostnaðar sem getur myndast hjá byggingarfélaginu vegna þessara breytinga. Byggingarfélagið tekur ekki á sig ábyrgð vegna skemmda sem kunna að verða á búnaði eða efnum sem íbúðareigandi hefur sjálfur sett inn í íbúðina áður en formleg afhending hefur farið fram.
Nánari lýsing. Um er ræða glæsilega og vel skipulagða 3ja herbergja íbúð á 2. hæð, merkt 0210 í Bolholti 9 í fallegu nýju álklæddu lyftuhúsi. Allar innréttingar eru frá Axis, raftækin koma frá Ormson og innihurðir eru frá Parka. Eldhúsvaskur og blöndunartæki frá Tengi. Íbúðirnar eru upphitaðar með gólfhita a en í sameign með ofnakerfi. Íbúðin sjálf er 78,4 fm. Sérgeymsla í kjallara er 5,3 fm. Samtals er eignin því skráð 83,7 fm. Stæði í bílakjallara fylgir íbúðinni merkt B-19
Skilalýsing
1. Frágangur íbúða innanhúss
1.1. Gólfefni
Íbúðin sjálf verður afhent án gólfefna, nema á baðherbergi og í þvottahúsi.
1.2. Veggir
Útveggir íbúðarinnar eru sandsparslaðir. Léttir innveggir eru hlaðnir úr vikur- eða gjallplötum, grófpússaðir og sandsparslaðir eða hefðbundnir gipsplötuveggir sparslaðir. Veggir eru grunnaðir og málaðir með tveimur yfirferðum af hvítri akrýlmálningu, gljástig 5 eða sambærilegt. Á baðherbergi og í Þvottahúsi eru veggir málaðir með viðurkenndri votrýmismálningu.
1.3. Loft
Steypt loft eru slípuð, og slétt sandspörtluð. Loft eru grunnuð og máluð með tveimur yfirferðum af hvítri plastmálningu, gljástig 2 eða sambærilegt. Loft á baðherbergi og í þvottahúsi er málað með viðurkenndri votrýmismálningu. Í ákveðnum íbúðum eru loft klædd gipsplötum, grunnuð, spörsluð og máluð með tveimur yfirferðum af hvítri plastmálningu, gljástig 2 eða sambærilegt. Á völdum stöðum í ákveðnum íbúðum á 4-6. hæð eru loft niðurtekin með hljóðdúk.
1.4. Gler
Tvöfalt hefðbundið K-gler, verksmiðjugler er í öllum gluggum. Ábyrgð framleiðanda er samkvæmt skilmálum BYKO glerframleiðanda. Við afhendingu íbúðar yfirtekur/taka kaupandi/kaupendur ábyrgð framleiðanda.
1.5. Sólbekkir
Sólbekkir verða þar sem við á úr plastlögðum spónaplötum.
1.6. Hurðir
Inngangshurð EI30-CS inn í íbúðina verður spónlögð. Innihurðar eru yfirfelldar, sléttar og sprautulakkaðar hvítar. Inngangshurðir inn í íbúðir og innihurðir eru frá Parka.
1.7. Fataskápar
Fataskápar eru í forstofu og í svefnherbergjum. Í sumum hjónaherbergjum eru fataherbergi ýmist með rennihurðum og/eða hefðbundnum skápahurðum. Innréttingar verða úr ljósu Melamin efni og koma frá Axis.
1.8. Eldhús
Eldhúsinnrétting verður úr ljósu Melamin efni og kemur frá Axis. Borðplötur verða plastlagðar og koma þær einnig frá Axis. Eldhúsvaskur og blöndunartæki frá Tengi fylgja, ásamt helluborði með gufugleypi eða helluborði með innbyggðum gufugleypi þar sem við á. Einnig mun fylgja ofn með blæstri, innbyggð uppþvottvél með áklæddum fronti og innbyggður kæliskápur með frysti. Raftæki sem fylgja koma frá Ormsson.
1.9. Baðherbergi
Á baðherbergi er gólf flísalagt og verða veggir flísalagðir upp í loft, flísar koma frá Parka. Baðherbergis innrétting verður úr ljósu Melamin efni og kemur frá Axis. Borðplötur verða plastlagðar og koma þær einnig frá Axis. Á baðherbergi verða ýmist speglaskápar eða speglar eftir því sem við á. Gert er ráð fyrir niðurfalli í gólfi. Handlaug, handlaugartæki og handklæðaofnar fylga þar sem við á ásamt innbyggðu, upphengdu salerni með hæglokandi setu og innbyggt sturtutæki verður í sturtu. Baðherbergis tæki koma frá Tengi. Sturtubotn verður flísalagður. Gert er ráð fyrir sturtuhlið eða sturtuklefa úr gleri eftir því sem við á eða innangengt sturturými eftir því sem við á.
1.10. Þvottahús
Í þvottahúsi er gólf flísalagt og innrétting verður úr hvítu Melamin efni og kemur frá Axis. Borðplötur verða plastlagðar með ræstivask og blöndunartæki frá Tengi. Ekki eru ræstivaskar í þeim íbúðum sem eru með sameiginlegt bað og þvottahús. Niðurfall er í gólfi og tengingar fyrir þvottvél og þurrkara. Gert er ráð fyrir barkalausum þurrkara. Veggir eru grunnaðir og málaði með hvítri viðurkenndri votrýmis málningu.
1.11. Sérgeymsla
Steypt loft, veggir og gólf í sérgeymslum eru hreinsuð og máluð eða lögð epoxy efni þar sem við á. Skilveggir á milli geymslna eru ýmist, steyptir, hlaðnir eða með timburgrind og málaðri plötuklæðningu. Geymslu gangar verða ýmist málaðir eða lagðir epoxy efni. Rafmagnstengill er í sérgeymslu.
1.12. Hitakerfi
Íbúðirnar eru upphitaðar með gólfhita en sameign með ofnakerfi skv. teikningum. Gólfhita- og ofnakerfi í sameign fylgir frágengið og verða hitastýrðir lokar á því.
1.13. Loftræsi-, vatns- og þrifalagnir
Loftræsi-, vatns, - og þrifalagnir fylgja frágengnar skv. teikningum. Forhitari er á heitu neysluvatni.
1.14. Rafmagns- og sjónvarpslagnir
Rafmagns- og sjónvarpslögn fylgir frágengin með einum mynddyrasíma í íbúð. Loftnetstengill verður í alrými ásamt tölvutengli. Tölvutenglar verða í herbergjum. Ljósleiðari verður í húsinu. Innfelld lýsing í alrými ( stofu og eldhúsi) er með dimmum.
2. Frágangur sameignar
2.1. Anddyri og stigahús
Steyptir innveggir í sameign og geymslum eru hreinsaðir og málaðir. Sameign á hverri íbúðarhæð og stigagangur eru sandspartlaðir, grunnaðir og málaðir tveimur yfirferðum af ljósri plastmálningu. Anddyri er flísalagt með uppsettum póstkössum, íbúðartöflu og dyrabjöllu. Stigar og stigapallar eru teppalagðir en það er gert nokkru eftir að íbúðareigendur hafa flutt inn. Stigahlaup að kjallara er flísalagt og brunastúkur. Á stigum og pöllum eru uppsett handrið. Raflögn í sameign fylgir frágengin með ljósakúplum þar sem venja er að hafa þá ásamt lýsingu í lofti þar sem við á. Loftræsilagnir eru lagðar samkvæmt teikningum.
2.2. Hurðir
Allar útihurðar fylgja frágengnar. Aðalhurð er úr áli. Innri anddyrishurðir er úr áli með mótorknúinni hurðarpumpu þar sem við á. Hurðir frá bílgeymslu gegnum brunastúkur verða með rafmagnsopnun.
2.3. Lyftur
Fólkslyftur frá Schindler eru í hvoru stigahúsi og verða tilbúnar til notkunar við afhendingu
2.4. Lokað bílageymsluhús
Bílageymsla er í kjallara hússins með máluðu loft og fermacell klæðningu þar sem við á. Útveggir verða einangraðir ýmist að utan- eða innanverðu eftir því sem við á. Þeir eru hreinsaðir og slípaðir að innanverðu og málaðir. Hitablásar og loftræsikerfi fylgir frágengið í samræmi við teikningar. Gólf er steypt og vélslípað án frekari meðhöndlunar en bílastæði eru merkt. Sprungur geta myndast á yfirborði gólfsins sem verða ekki meðhöndlaðar frekar. Hurð í bílageymslu fylgir frágengin með sjálfvirkum opnunarbúnaði og einni fjarstýringu á hvert stæði. Rafmagnstengill fylgir hverju stæði.
2.5. Hjóla- og vagnageymslur
Steyptir innveggir í hjóla- og vagnageymslu eru hreinsaðir, slípaðir og málaðir. Gólf verða slípuð lögð epoxy efni.
2.6. Sorpgeymslur
Veggir eru með múrfiltun og málaðir. Gólf eru slípuð og lögð epoxy.
3. Frágangur utanhúss
3.1. Klæðning og einangrun
Útveggir verða einangraðir ýmist að utan- eða innanverðu eftir því sem við á og álklætt að mestu að utan. Kjallaraveggir eru múraðir á einangrun og veggir 1. hæðar að hluta með flísaklæðningu. Sprungur geta myndast á yfirborði múrveggja sem verða ekki meðhöndlaðar frekar.
3.2. Steypt þak
Þakplata er staðsteypt eða úr forsteyptum holplötum þar sem við á með vatnshalla að niðurföllum. Ofaná steypta plötu kemur tvöfalt lag af eldsoðnum tjörupappa og 5 mm takkadúk. Einangrun er 200 mm rakaþolin þrýstieinangrun. Ofan á einangrun kemur vatnsvarnardúkur með öndun, einangrun er fergd með sjávarmöl/völusteinum. Niðurföll eru tengd regnvatnslögnum.
3.3. Svalir
Svalagólf eru steypt, slípuð og múrfíltuð eftir því sem við á. Á þaksvölum eru svalir hellulagðar ofan á einangrun. Svalahandrið eru úr áli og gleri. Útiljós og rafmagnstengill er á svölum. Svalaloft eru slípuð, grunnuð og máluð.
3.4. Svalalokun
Möguleiki er á svalalokun samkvæmt aðalteikningum arkitekts. Sjá nánar á aðalteikningum.
3.5. Gluggar
Gluggar eru álklæddir timburgluggar frá BYKO. Opnanleg gluggafög fylgja frágengin, svo og allar úti- og svalahurðir að fullu frágengnar með þéttiköntum.
3.6. Lóð
Lóð verður fullfrágenginn samkvæmt leiðbeinandi teikningu landslagsarkitekts. Stéttar næst húsi verða hellulagðar og snjóbræðslulögn í gangstíg framan við húsið samkvæmt teikningu. Bílastæði eru hellulögð og akbraut malbikuð.
Bygginarfélagið mun leggja til að stofnað verðir lóðarfélag sem byggir á fjöleignarhúsalögum og heldur utan um sameiginlegan kostnað við rekstur lóðarinnar fyrir þá matshluta sem tilheyra lóðinni.
4. Hönnuðir
Arkitekt: THG ARKITEKTAR
Verkfræðihönnun: VEKTOR – hönnun og ráðgjöf
Raflagnahönnun: Tesla ehf
Lóðarhönnun: Landslag ehf.
5. Teikningar
Í kaupsamningi kemur fram hvaða teikningar arkitekts eru í gildi á þeim tíma þegar kaupsamningur er gerður. Á byggingartíma hússins áskilur byggingarfélagið sér rétt til að breyta þessum teikningum í samráði við arkitekt vegna tæknilegra úrfærslna sem upp geta komið upp á meðan framkvæmd stendur. Teikningar annarra hönnuða geta líka breyst vegna tæknilegra útfærslna og/eða breytinga vegna búnaðar sem síðar er valinn inn í eða utan á húsið.
6. Byggingaraðili
Byggingaraðili er Byggingarfélag Gylfa og Gunnars hf.
Byggingarstjóri Bygg, Atli Geir Gunnarsson Atli@bygg.is
Verkefnastjóri Bygg, Skarphéðinn Njálsson Skarphedinn@bygg.is
Frekari upplýsingar um efnisval og önnur mál má nálgast hjá verkefnastjóra Byggingarfélagins
7. Áætlaður afhendingar tími
Áætlað er að íbúðir við Bolholt 7-9 verði afhentar á tímabilinu febrúar 2026 – mars 2026. Bolholt 7 verður afhent í mars 2026 og Bolholt 9 verður afhent í febrúar 2026.
Sameign, lóð og bílageymsla verður afhent samhliða afhendingu síðustu íbúða í Bolholti 7.
Allar breytingar á íbúðinni sjálfri og einstaka hluta í henni að ósk kaupanda hefur áhrif á afhendingartíma til seinkunnar. Allar breytingar sem kaupendur hafa huga á að gera þarf að gera í samráði við verkefnastjóra skriflega og mun hann meta hvort þær séu framkvæmanlegar. Íbúðareigandi er sjálfur ábyrgur fyrir því að bæði söluaðilar efnis ásamt verkefnastjóra byggingarfélagissins séu upplýstir um allar breytingar með pósti. Íbúðareigandi er sjálfur ábyrgur vegna viðbótarkostnaðar sem getur myndast hjá byggingarfélaginu vegna þessara breytinga. Byggingarfélagið tekur ekki á sig ábyrgð vegna skemmda sem kunna að verða á búnaði eða efnum sem íbúðareigandi hefur sjálfur sett inn í íbúðina áður en formleg afhending hefur farið fram.