Upplýsingar
Byggt 2022
163,5 m²
4 herb.
1 baðherb.
3 svefnh.
Þvottahús
Bílskúr
Útsýni
Sameiginl. inngangur
Hjólastólaaðgengi
Bílastæði
Lyfta
Opið hús: 26. október 2025
kl. 12:30
til 13:00
Opið hús sunnudaginn 26. okt frá 12:30-13:00. Bókið skoðun í síma 866-1763 eða á dagrun@betristofan.is
Lýsing
Betri Stofan fasteignasala og Jason Kristinn Ólafsson kynnir nýtt til sölu Fálkahlíð 5. Samtals 163,5 fm íbúð og bílskúr. Glæsileg 4ra herbergja 110,1 fm íbúð á 4. hæð með bílskúr + geymslu (53,4 fm) og bílastæði í bílakjallara. Íbúðin og geymsla er 121,9 fm og bílskúr 45,8 fm. Útsýni til suðurs
Íbúðirnar afhendast fullbúnar við kaupsamning, með gólfefnum, innbyggðri uppþvottavél, ísskáp með frysti og lýsing er í loftum. Ljós eru innbyggð að hluta, kubbaljós, ljósakúplar og kastarar fylgja. Baðherbergi eru flísalögð með sturtugleri, vaskur og handklæðaofn. Gólf á þvottahúsi eru flísalögð.
Heimasíða
*** Nánari upplýsingar veitir Jason Kristinn Ólafsson Löggiltur fasteignasali, í síma 775-1515, tölvupóstur jason@betristofan.is ***
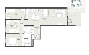
Nánari lýsing eignar 420 - 4ra herbergja íbúð á 4. hæð með svölum til suðurs ásamt bílskúr í bílageymslu. Íbúð með harðparketi á gólfi.
Stofa og opið eldhús, nnrétting með eyju. Gengið er út á svalir sem snúa til suðurs með útsýni til suðurs.
Þrjú svefnherbergi, með fataskápum, Baðherbergi með sturtu, innréttingu, handlaug og upphengdu salerni og handklæðaofn.
Sér þvottahús fyrir þvottavél og þurrkara, flísar á gólfi.
Rúmgóð geymsla innaf bílakjallara (11,4 fm)
Bílskúr og geymsla 53,4 fm.
Bílastæði í lokuðu bílastæðahúsi. B22
Áætluð afhending er febrúar 2025
Nánari upplýsingar:
Jason Kristinn Ólafsson, sími 775 1515 - löggiltur fasteignasali. - netfang: jason@betristofan.is
Dagrún Davíðsdóttir, sími 866-1763, löggiltur fasteignasali -netfang: dagrun@betristofan.is
Guðbjörg Guðmundsdóttir, S: 899 5533 - löggiltur fasteignasali - gudbjorg@betristofan.is
Þórhallur Biering löggiltur fasteignasali í síma 896-8232 eða thorhallur@betristofan.is
Íbúðirnar afhendast fullbúnar við kaupsamning, með gólfefnum, innbyggðri uppþvottavél, ísskáp með frysti og lýsing er í loftum. Ljós eru innbyggð að hluta, kubbaljós, ljósakúplar og kastarar fylgja. Baðherbergi eru flísalögð með sturtugleri, vaskur og handklæðaofn. Gólf á þvottahúsi eru flísalögð.
Heimasíða
*** Nánari upplýsingar veitir Jason Kristinn Ólafsson Löggiltur fasteignasali, í síma 775-1515, tölvupóstur jason@betristofan.is ***
Nánari lýsing eignar 420 - 4ra herbergja íbúð á 4. hæð með svölum til suðurs ásamt bílskúr í bílageymslu. Íbúð með harðparketi á gólfi.
Stofa og opið eldhús, nnrétting með eyju. Gengið er út á svalir sem snúa til suðurs með útsýni til suðurs.
Þrjú svefnherbergi, með fataskápum, Baðherbergi með sturtu, innréttingu, handlaug og upphengdu salerni og handklæðaofn.
Sér þvottahús fyrir þvottavél og þurrkara, flísar á gólfi.
Rúmgóð geymsla innaf bílakjallara (11,4 fm)
Bílskúr og geymsla 53,4 fm.
Bílastæði í lokuðu bílastæðahúsi. B22
Áætluð afhending er febrúar 2025
Nánari upplýsingar:
Jason Kristinn Ólafsson, sími 775 1515 - löggiltur fasteignasali. - netfang: jason@betristofan.is
Dagrún Davíðsdóttir, sími 866-1763, löggiltur fasteignasali -netfang: dagrun@betristofan.is
Guðbjörg Guðmundsdóttir, S: 899 5533 - löggiltur fasteignasali - gudbjorg@betristofan.is
Þórhallur Biering löggiltur fasteignasali í síma 896-8232 eða thorhallur@betristofan.is
Gjöld sem kaupandi þarf að standa straum af ef að kaupum verður:
1. Stimpilgjald af fasteignamati fasteignar er 0.8%, en 0,4% fyrir fyrstu kaup og 1,6% fyrir lögaðila.
2. Þinglýsingargjald: kaupsamningi, skuldabréfi, veðleyfi, afsali o.s.frv. er kr. 2.700 af hverju skjali.
3. Lántökukostnaður samkvæmt verðskrá viðkomandi lánastofnunar.
4. Umsýslugjald til fasteignasölu skv. gjaldskrá.