Upplýsingar
Verðsaga
Byggt 2009
98,9 m²
3 herb.
1 baðherb.
2 svefnh.
Þvottahús
Sérinngangur
Lýsing
SÆKJA SÖLUYFIRLIT HÉR
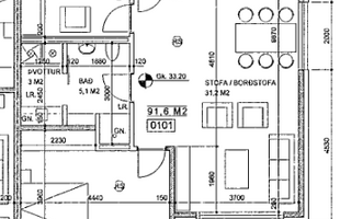
FASTEIGNASALAN TORG KYNNIR Í SÖLU: 98,9 fm, þriggja herbergja endaíbúð á jarðhæð. Íbúðin skiptist í anddyri, alrými með eldhúsi, borðstofu og stofu, tvö svefnherbergi og baðherbergi með þvottahúsi inn af þar sem baðkar hefur verið sett. Útgengt er á 32 fm sérafnotareit til suðurs frá hjónaherbergi. Sérmerkt stæði fylgir íbúð. Geymsla og sameiginleg vagna- og hjólageymsla í sameign. Stutt er í alla þjónustu, skóla, leikskóla, búðir og samgöngur. Eignin getur verið laus eftir samkomulagi. Allar nánari upplýsingar veitir Matthildur Sunna Þorláksdóttir, lögfræðingur og löggiltur fasteignasali, í síma 690-4966 eða matthildur@fstorg.is
Nánari lýsing:
Anddyri er flísalagt, með fataskáp og millihurð inn í íbúð.
Eldhús, borðstofa og stofa eru samliggjandi í opnu og björtu rými. Eldhús er með viðarlitaðri innréttingu og grárri borðplötu.
Hjónaherbergi er rúmgott og bjart, með viðarlituðum fataskápum. Útgengt er á sérafnotapall sem snýr til suðurs.
Barnaherbergi er með viðarlituðum fataskáp.
Baðherbergi er flísalagt í hólf og gólf og með viðarlituðum skáp undir vasku, sturtu og upphengdu salerni. Gengið er inn á þvottaherbergi frá baðherbergi, þar sem sett hefur verið baðkar.
Sérgeymsla (7,3 fm) er staðsett í sameign ásamt hjóla- og vagnageymslu.
Sér bílastæði merkt íbúð rétt við inngang.
Íbúðin er í fjölskylduvænu hverfi þar sem stutt er í leik- og grunnskóla og alla helstu þjónustu
Forsendur söluyfirlits:
Söluyfirlit er samið af fasteignasala í samræmi við ákvæði laga nr. 70/2015. Þær upplýsingar sem fram koma í söluyfirliti þessu eru sóttar í opinberar skrár, til seljanda sjálfs og eftir atvikum til húsfélags. Seljandi veitir upplýsingar um eign í samræmi við upplýsingaskyldu laga um fasteignakaup nr. 40/2002. Fasteignasali sannreynir að þær upplýsingar séu réttar með sjónskoðun á eigninni. Fasteignasali getur ekki fullyrt um ástand og eiginleika þeirra hluta fasteigna sem ekki eru aðgengilegir og sjást ekki berum augum, t.d. lagnir, dren, skólp og þak.
Gjöld sem kaupandi þarf að standa straum af vegna kaupanna:
Stimpilgjald af kaupsamningi sem er hlutfall af fasteignamati. Stimpilgjald er 0,8% fyrir einstaklinga (0,4% við fyrstu kaup m.v. að lágmarki 50% eignarhlut) og 1,6% fyrir lögaðila. Þinglýsingargjald hvers skjals er kr. 2.700,-. Lántökugjald lánastofnunar skv. gjaldskrá viðkomandi lánveitanda. Umsýsluþóknun fasteignasölu skv. gjaldskrá. Ef um nýbyggingu er að ræða greiðir kaupandi skipulagsgjald, 0,3% af brunabótamati, þegar það er lagt á.
TORG fasteignasala bendir fasteignakaupendum á ríka skoðunarskyldu kaupenda sem kveðið er á í lögum um fasteignakaup nr. 40/2002. Skorað er á kaupendur að kynna sér vandlega ástand fasteigna og nýta til þess aðstoð sérfræðinga. Sömuleiðis er bent á upplýsingaskyldu seljanda samanber 26.gr. Laga nr.40/2002 um fasteignakaup og 25.gr. laga nr.26/1994 um fjöleignarhús. Seljanda er bent á að kynna sér tilvitnaðar lagagreinar.
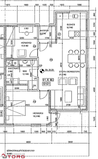
FASTEIGNASALAN TORG KYNNIR Í SÖLU: 98,9 fm, þriggja herbergja endaíbúð á jarðhæð. Íbúðin skiptist í anddyri, alrými með eldhúsi, borðstofu og stofu, tvö svefnherbergi og baðherbergi með þvottahúsi inn af þar sem baðkar hefur verið sett. Útgengt er á 32 fm sérafnotareit til suðurs frá hjónaherbergi. Sérmerkt stæði fylgir íbúð. Geymsla og sameiginleg vagna- og hjólageymsla í sameign. Stutt er í alla þjónustu, skóla, leikskóla, búðir og samgöngur. Eignin getur verið laus eftir samkomulagi. Allar nánari upplýsingar veitir Matthildur Sunna Þorláksdóttir, lögfræðingur og löggiltur fasteignasali, í síma 690-4966 eða matthildur@fstorg.is
Nánari lýsing:
Anddyri er flísalagt, með fataskáp og millihurð inn í íbúð.
Eldhús, borðstofa og stofa eru samliggjandi í opnu og björtu rými. Eldhús er með viðarlitaðri innréttingu og grárri borðplötu.
Hjónaherbergi er rúmgott og bjart, með viðarlituðum fataskápum. Útgengt er á sérafnotapall sem snýr til suðurs.
Barnaherbergi er með viðarlituðum fataskáp.
Baðherbergi er flísalagt í hólf og gólf og með viðarlituðum skáp undir vasku, sturtu og upphengdu salerni. Gengið er inn á þvottaherbergi frá baðherbergi, þar sem sett hefur verið baðkar.
Sérgeymsla (7,3 fm) er staðsett í sameign ásamt hjóla- og vagnageymslu.
Sér bílastæði merkt íbúð rétt við inngang.
Íbúðin er í fjölskylduvænu hverfi þar sem stutt er í leik- og grunnskóla og alla helstu þjónustu
Forsendur söluyfirlits:
Söluyfirlit er samið af fasteignasala í samræmi við ákvæði laga nr. 70/2015. Þær upplýsingar sem fram koma í söluyfirliti þessu eru sóttar í opinberar skrár, til seljanda sjálfs og eftir atvikum til húsfélags. Seljandi veitir upplýsingar um eign í samræmi við upplýsingaskyldu laga um fasteignakaup nr. 40/2002. Fasteignasali sannreynir að þær upplýsingar séu réttar með sjónskoðun á eigninni. Fasteignasali getur ekki fullyrt um ástand og eiginleika þeirra hluta fasteigna sem ekki eru aðgengilegir og sjást ekki berum augum, t.d. lagnir, dren, skólp og þak.
Gjöld sem kaupandi þarf að standa straum af vegna kaupanna:
Stimpilgjald af kaupsamningi sem er hlutfall af fasteignamati. Stimpilgjald er 0,8% fyrir einstaklinga (0,4% við fyrstu kaup m.v. að lágmarki 50% eignarhlut) og 1,6% fyrir lögaðila. Þinglýsingargjald hvers skjals er kr. 2.700,-. Lántökugjald lánastofnunar skv. gjaldskrá viðkomandi lánveitanda. Umsýsluþóknun fasteignasölu skv. gjaldskrá. Ef um nýbyggingu er að ræða greiðir kaupandi skipulagsgjald, 0,3% af brunabótamati, þegar það er lagt á.
TORG fasteignasala bendir fasteignakaupendum á ríka skoðunarskyldu kaupenda sem kveðið er á í lögum um fasteignakaup nr. 40/2002. Skorað er á kaupendur að kynna sér vandlega ástand fasteigna og nýta til þess aðstoð sérfræðinga. Sömuleiðis er bent á upplýsingaskyldu seljanda samanber 26.gr. Laga nr.40/2002 um fasteignakaup og 25.gr. laga nr.26/1994 um fjöleignarhús. Seljanda er bent á að kynna sér tilvitnaðar lagagreinar.
Ár
Fasteignamat
Kaupverð
Stærð
Fermetraverð
23. des. 2016
20.500.000 kr.
23.800.000 kr.
98.9 m²
240.647 kr.
14. des. 2012
19.250.000 kr.
20.635.000 kr.
123 m²
167.764 kr.
4. maí. 2012
133.600.000 kr.
177.000.000 kr.
3174.2 m²
55.762 kr.
Byggt á upplýsingum úr Þjóðskrá Íslands frá 2006-2025